---
title: "Afdeling 707 Karrebækhus/Vesterhus"
description: "1-707"
date: "2026-04-24"
created: "2025-09-25"
---

-
-
-
-
-
-
-
-
-
-

https://maps.google.dk/?q=55.2218408,11.7405836

# Afdeling 707 Karrebækhus/Vesterhus

Afdeling 707

## Velkommen til Afdeling 707 Karrebækhus/Vesterhus

Afdelingen er opført som etagebyggeri bestående af 69 lejligheder fordelt som 2, 3 og 4 vær. Boligerne indeholder komfur, emhætte og ikke andre hårde hvidevarer. Der er adgang til fælles vaskeri samt hyggeligt haveanlæg med legeplads. Til hver bolig hører altan og mindre kælderrum. Der er mulighed for at blive skrevet op til leje af garage. Afdelingen ligger i et alsidigt boligkvarter tæt ved skoler, institutioner, dagligvarebutikker samt offentlig transport. Rimelig afstand til Næstved centrum, den fritlagte Suså, Herlufsholmskoven og Næstved havn.

## Fakta for afdelingen...

Altan/have

Ja

Altan

Antal/størrelse

Se mere

43 stk 2 rums 66-90 m2, 17 stk 3 rums 79-97 m2, 9 stk 4 rums 125-135 m2

Beboerhus

Nej

Byggeår

1947-1950. Renoveret 2011-2012

Carport/garage

Ja

Der er mulighed for at blive skrevet op til garage

Elevator

Nej

Husdyrhold

Se mere

2 katte

Hårde hvidevarer

Ja

Komfur, emhætte og ikke andre hårde hvidevarer.

Kælderrum/udhus

Ja

Der hører mindre kælderrum til hver bolig

Legeplads

Ja

Tv/Internet

Ja

Frit valg blandt udbydere af tv/internet

Vaskeri

Ja

Ja, fællesvaskeri i kælder

Ventetider

Se mere

2 til 5 år

Ældreboliger/ungdomsboliger

Nej/Nej

                        Se flere

## Boliger i afdelingen

Familiebolig

2 værelses

Familiebolig

Familiebolig

3 værelses

Familiebolig

Familiebolig

4 værelses

Familiebolig

Boligtype

Værelser

Størrelse

Husleje u. forbrug

Indskud

Plantegning

Familiebolig

2

72.35 m²

5139 kr.

20186 kr.

![](https://bolignaestved.dk/i/MOLIRIMEDIA/5c337620-3431-4e61-0d30-08ddde57396d?width=800)

Familiebolig

2

90 m²

6389 kr.

25110 kr.

![](https://bolignaestved.dk/i/MOLIRIMEDIA/356c750e-6f13-41df-0aab-08ddde57396d?width=800)

Familiebolig

2

77 m²

5468 kr.

21483 kr.

![](https://bolignaestved.dk/i/MOLIRIMEDIA/071878b4-2649-466f-0957-08ddde57396d?width=800)

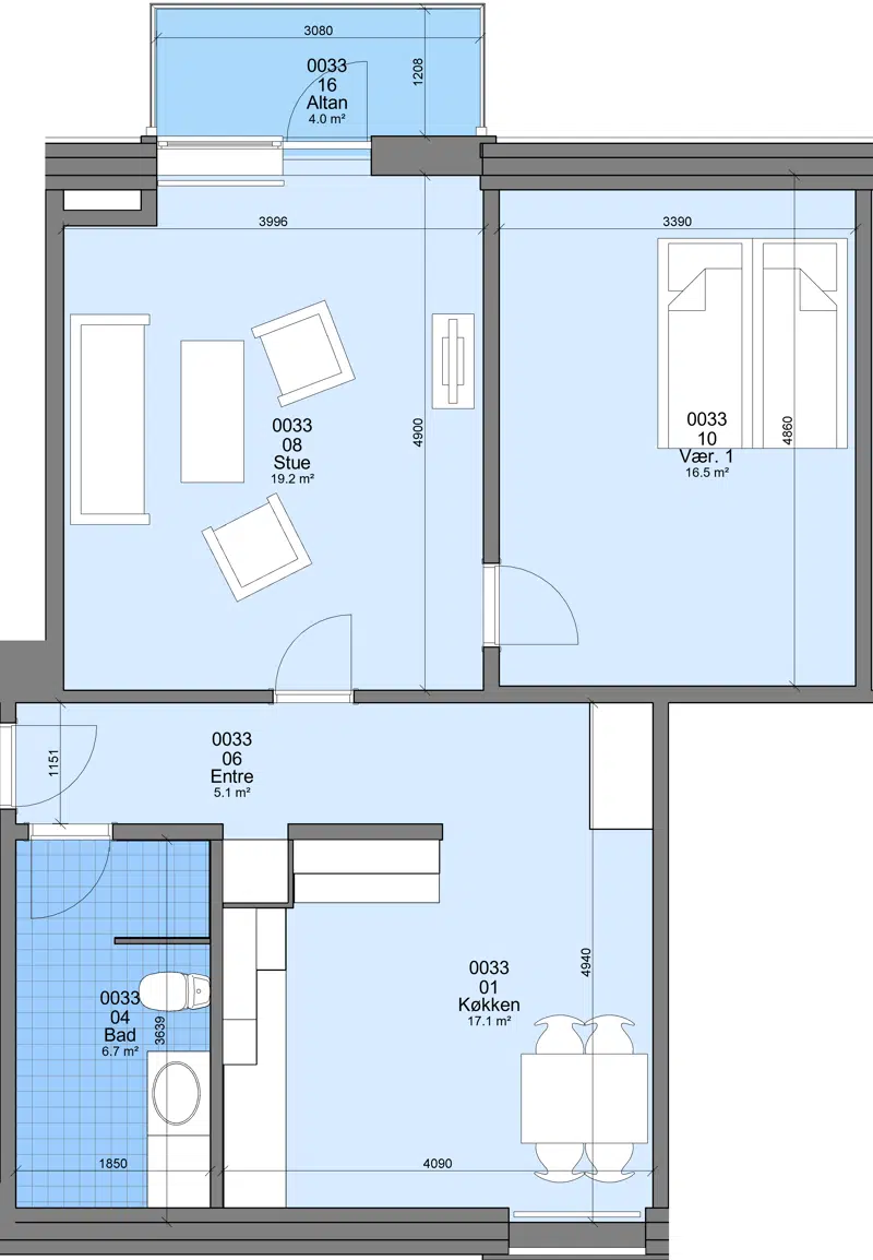
Familiebolig

3

80.2 m²

5696 kr.

22376 kr.

![](https://bolignaestved.dk/i/MOLIRIMEDIA/85198a50-fe3b-4b65-0df9-08ddde57396d?width=800)

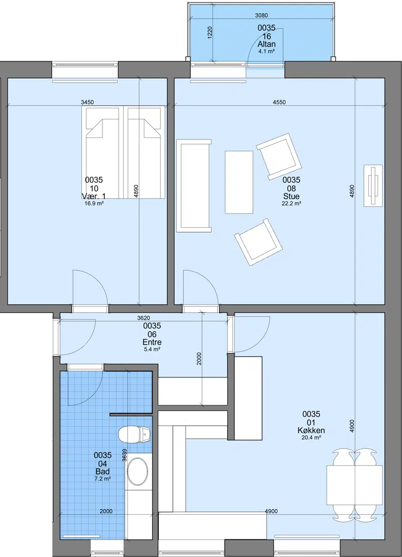
Familiebolig

3

89 m²

6319 kr.

24831 kr.

![](https://bolignaestved.dk/i/MOLIRIMEDIA/5c5a2f37-1037-41ac-0ac4-08ddde57396d?width=800)

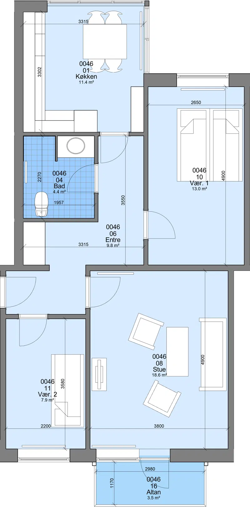
Familiebolig

4

125 m²

8298 kr.

34875 kr.

![](https://bolignaestved.dk/i/MOLIRIMEDIA/17930ecd-3c16-421d-107c-08ddde57396d?width=800)

Familiebolig

4

134 m²

8895 kr.

37386 kr.

![](https://bolignaestved.dk/i/MOLIRIMEDIA/6c35de83-f0e3-40db-0be4-08ddde57396d?width=800)

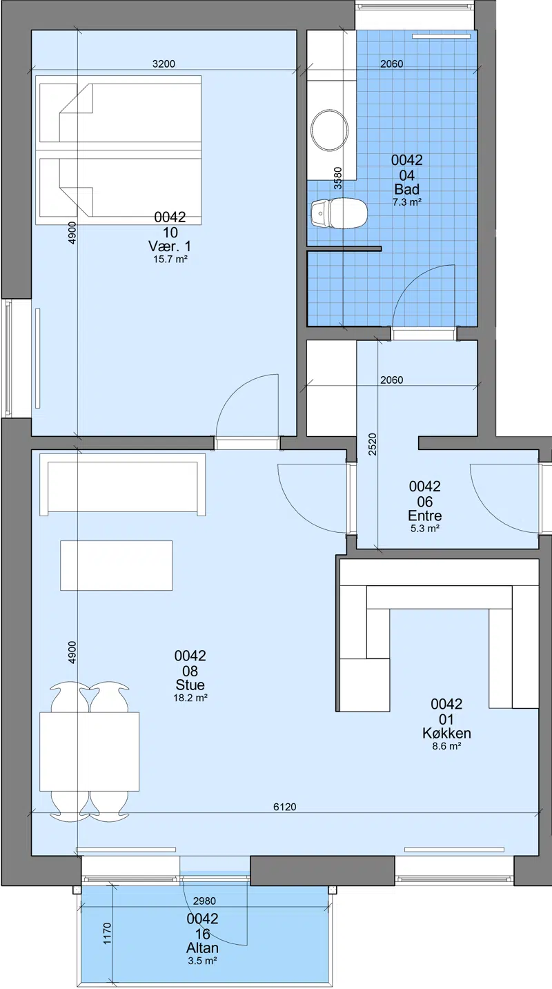
Familiebolig

4

97 m²

6887 kr.

27063 kr.

![](https://bolignaestved.dk/i/MOLIRIMEDIA/f2748e9e-6fa2-40aa-09ab-08ddde57396d?width=800)

## Driftscenter

### Kontakt dit driftscenter

Adresse:

Fodbygårdsvej 16

4700 Næstved

55723497

fodbygaardsvej@bolignaestved.dk

### Åbningstider

Telefonisk henvendelse:

Mandag - fredag kl 8.30-10.00

.............................................

Personlig henvendelse:

Kun efter forudgående aftale (bestil tid)

## Personale

### Jacob Clausen

Driftsleder

### Hans-Henrik Friis Jørgensen

Driftslederassistent

### Gitte Jacobsen

Kontormedarbejder

### Per Larsen

Ejendomsfunktionær

### Sigurdur R. Gislason

Ejendomsfunktionær

### Morten Ambus

Ejendomsfunktionær

### Benny Jensen

Ejendomsfunktionær

### Claus Ove Pedersen

Ejendomsfunktionær

### Jens-Jørgen Klausen

Ejendomsfunktionær

### Bo Pedersen

Ejendomsfunktionær

## Bestyrelsen

Navn

Titel

Kitt Stensgaard

Formand

Freja Lynæs Larsen

Medlem

Anne Mortensen

Medlem

Lissi Clausen

Suppleant 1

## Repræsentantskab

Navn

Titel

Kitt Stensgaard

Medlem

Anita Smidt

Suppleant 1

## Afdelingsmøde

Her finder du nyttig information afdelingsmøder, såsom forslag, referater m.m.

###

                                                Forretningsorden

[Forretningsorden.pdf](https://bolignaestved.dk/p/Files/Boligdata/AfdelingsdokumenterFraEG/01_707/Afdelingsm&#xF8;de/Forretningsorden/Forretningsorden.pdf)

###

                                                Indkaldelse

[2025-08-19 Indkaldelse.pdf](https://bolignaestved.dk/p/Files/Boligdata/AfdelingsdokumenterFraEG/01_707/Afdelingsm&#xF8;de/Indkaldelse/2025-08-19-Indkaldelse.pdf)
                                            [2024-08-20 Indkaldelse.pdf](https://bolignaestved.dk/p/Files/Boligdata/AfdelingsdokumenterFraEG/01_707/Afdelingsm&#xF8;de/Indkaldelse/2024-08-20-Indkaldelse.pdf)
                                            [2023-08-22 Indkaldelse.pdf](https://bolignaestved.dk/p/Files/Boligdata/AfdelingsdokumenterFraEG/01_707/Afdelingsm&#xF8;de/Indkaldelse/2023-08-22-Indkaldelse.pdf)
                                            [2022-08-25 Indkaldelse.pdf](https://bolignaestved.dk/p/Files/Boligdata/AfdelingsdokumenterFraEG/01_707/Afdelingsm&#xF8;de/Indkaldelse/2022-08-25-Indkaldelse.pdf)
                                            [2021-08-26 Indkaldelse.pdf](https://bolignaestved.dk/p/Files/Boligdata/AfdelingsdokumenterFraEG/01_707/Afdelingsm&#xF8;de/Indkaldelse/2021-08-26-Indkaldelse.pdf)
                                            [2020-08-26 Indkaldelse.pdf](https://bolignaestved.dk/p/Files/Boligdata/AfdelingsdokumenterFraEG/01_707/Afdelingsm&#xF8;de/Indkaldelse/2020-08-26-Indkaldelse.pdf)

###

                                                Forslag

[2025-08-19 Forslag.pdf](https://bolignaestved.dk/p/Files/Boligdata/AfdelingsdokumenterFraEG/01_707/Afdelingsm&#xF8;de/Forslag/2025-08-19-Forslag.pdf)
                                            [2024-08-20 Forslag.pdf](https://bolignaestved.dk/p/Files/Boligdata/AfdelingsdokumenterFraEG/01_707/Afdelingsm&#xF8;de/Forslag/2024-08-20-Forslag.pdf)
                                            [2023-08-22 Forslag.pdf](https://bolignaestved.dk/p/Files/Boligdata/AfdelingsdokumenterFraEG/01_707/Afdelingsm&#xF8;de/Forslag/2023-08-22-Forslag.pdf)
                                            [2022-08-25 Forslag.pdf](https://bolignaestved.dk/p/Files/Boligdata/AfdelingsdokumenterFraEG/01_707/Afdelingsm&#xF8;de/Forslag/2022-08-25-Forslag.pdf)
                                            [2021-08-26 Forslag.pdf](https://bolignaestved.dk/p/Files/Boligdata/AfdelingsdokumenterFraEG/01_707/Afdelingsm&#xF8;de/Forslag/2021-08-26-Forslag.pdf)
                                            [2020-08-26 Forslag.pdf](https://bolignaestved.dk/p/Files/Boligdata/AfdelingsdokumenterFraEG/01_707/Afdelingsm&#xF8;de/Forslag/2020-08-26-Forslag.pdf)

###

                                                Referat

[2025-08-19 Referat.pdf](https://bolignaestved.dk/p/Files/Boligdata/AfdelingsdokumenterFraEG/01_707/Afdelingsm&#xF8;de/Referat/2025-08-19-Referat.pdf)
                                            [2024-08-20 Referat.pdf](https://bolignaestved.dk/p/Files/Boligdata/AfdelingsdokumenterFraEG/01_707/Afdelingsm&#xF8;de/Referat/2024-08-20-Referat.pdf)
                                            [2023-08-22 Referat.pdf](https://bolignaestved.dk/p/Files/Boligdata/AfdelingsdokumenterFraEG/01_707/Afdelingsm&#xF8;de/Referat/2023-08-22-Referat.pdf)
                                            [2022-08-25 Referat.pdf](https://bolignaestved.dk/p/Files/Boligdata/AfdelingsdokumenterFraEG/01_707/Afdelingsm&#xF8;de/Referat/2022-08-25-Referat.pdf)
                                            [2021-08-26 Referat.pdf](https://bolignaestved.dk/p/Files/Boligdata/AfdelingsdokumenterFraEG/01_707/Afdelingsm&#xF8;de/Referat/2021-08-26-Referat.pdf)
                                            [2020-08-26 Referat.pdf](https://bolignaestved.dk/p/Files/Boligdata/AfdelingsdokumenterFraEG/01_707/Afdelingsm&#xF8;de/Referat/2020-08-26-Referat.pdf)

## Afdelingens dokumenter

Her finder du nyttig information fra din afdeling, såsom budget, regnskab, ordensreglement m.m.

###

                                                Budget

[Budget 2026.pdf](https://bolignaestved.dk/p/Files/Boligdata/AfdelingsdokumenterFraEG/01_707/Afdelingens%20dokumenter/Budget/Budget-2026.pdf)
                                            [Budget 2025.pdf](https://bolignaestved.dk/p/Files/Boligdata/AfdelingsdokumenterFraEG/01_707/Afdelingens%20dokumenter/Budget/Budget-2025.pdf)
                                            [Budget 2024.pdf](https://bolignaestved.dk/p/Files/Boligdata/AfdelingsdokumenterFraEG/01_707/Afdelingens%20dokumenter/Budget/Budget-2024.pdf)
                                            [Budget 2023.pdf](https://bolignaestved.dk/p/Files/Boligdata/AfdelingsdokumenterFraEG/01_707/Afdelingens%20dokumenter/Budget/Budget-2023.pdf)
                                            [Budget 2022.pdf](https://bolignaestved.dk/p/Files/Boligdata/AfdelingsdokumenterFraEG/01_707/Afdelingens%20dokumenter/Budget/Budget-2022.pdf)

###

                                                Årsregnskab

[Årsregnskab 2025.pdf](https://bolignaestved.dk/p/Files/Boligdata/AfdelingsdokumenterFraEG/01_707/Afdelingens%20dokumenter/&#xC5;rsregnskab/&#xC5;rsregnskab-2025.pdf)
                                            [Årsregnskab 2024.pdf](https://bolignaestved.dk/p/Files/Boligdata/AfdelingsdokumenterFraEG/01_707/Afdelingens%20dokumenter/&#xC5;rsregnskab/&#xC5;rsregnskab-2024.pdf)
                                            [Årsregnskab 2023.pdf](https://bolignaestved.dk/p/Files/Boligdata/AfdelingsdokumenterFraEG/01_707/Afdelingens%20dokumenter/&#xC5;rsregnskab/&#xC5;rsregnskab-2023.pdf)
                                            [Årsregnskab 2022.pdf](https://bolignaestved.dk/p/Files/Boligdata/AfdelingsdokumenterFraEG/01_707/Afdelingens%20dokumenter/&#xC5;rsregnskab/&#xC5;rsregnskab-2022.pdf)
                                            [Årsregnskab 2021.pdf](https://bolignaestved.dk/p/Files/Boligdata/AfdelingsdokumenterFraEG/01_707/Afdelingens%20dokumenter/&#xC5;rsregnskab/&#xC5;rsregnskab-2021.pdf)

###

                                                Ordensreglement

[Ordensreglement.pdf](https://bolignaestved.dk/p/Files/Boligdata/AfdelingsdokumenterFraEG/01_707/Afdelingens%20dokumenter/Ordensreglement/Ordensreglement.pdf)

###

                                                Vedligeholdelsesreglement

[Vedligeholdelsesreglement.pdf](https://bolignaestved.dk/p/Files/Boligdata/AfdelingsdokumenterFraEG/01_707/Afdelingens%20dokumenter/Vedligeholdelsesreglement/Vedligeholdelsesreglement.pdf)

###

                                                Energimærke

[Energimærke Gr100.pdf](https://bolignaestved.dk/p/Files/Boligdata/AfdelingsdokumenterFraEG/01_707/Afdelingens%20dokumenter/Energim&#xE6;rke/Energim&#xE6;rke-Gr100.pdf)
                                            [Energimærke Gr102.pdf](https://bolignaestved.dk/p/Files/Boligdata/AfdelingsdokumenterFraEG/01_707/Afdelingens%20dokumenter/Energim&#xE6;rke/Energim&#xE6;rke-Gr102.pdf)

###

                                                Andre dokumenter

[Info om blødgøringsanlæg.pdf](https://bolignaestved.dk/p/Files/Boligdata/AfdelingsdokumenterFraEG/01_707/Afdelingens%20dokumenter/Andre%20dokumenter/Info-om-bl&#xF8;dg&#xF8;ringsanl&#xE6;g.pdf)
                                            [Vejledning til dørtelefon.pdf](https://bolignaestved.dk/p/Files/Boligdata/AfdelingsdokumenterFraEG/01_707/Afdelingens%20dokumenter/Andre%20dokumenter/Vejledning-til-d&#xF8;rtelefon.pdf)
                                            [Velkomspjece.pdf](https://bolignaestved.dk/p/Files/Boligdata/AfdelingsdokumenterFraEG/01_707/Afdelingens%20dokumenter/Andre%20dokumenter/Velkomspjece.pdf)

## Afdelingsbestyrelse

Her finder du nyttig information fra afdelinsbestyrelse i din afdeling.

###

                                                Forretningsorden

[Forretningsorden 14-01-2022.pdf](https://bolignaestved.dk/p/Files/Boligdata/AfdelingsdokumenterFraEG/01_707/Afdelingsbestyrelse/Forretningsorden/Forretningsorden-14-01-2022.pdf)

###

                                                Referat

[2026-04-13 Referat.pdf](https://bolignaestved.dk/p/Files/Boligdata/AfdelingsdokumenterFraEG/01_707/Afdelingsbestyrelse/Referat/2026-04-13-Referat.pdf)
                                            [2026-02-02-Referat.pdf](https://bolignaestved.dk/p/Files/Boligdata/AfdelingsdokumenterFraEG/01_707/Afdelingsbestyrelse/Referat/2026-02-02-Referat.pdf)
                                            [2025-05-15 Referat.pdf](https://bolignaestved.dk/p/Files/Boligdata/AfdelingsdokumenterFraEG/01_707/Afdelingsbestyrelse/Referat/2025-05-15-Referat.pdf)
                                            [2025-02-06 Referat.pdf](https://bolignaestved.dk/p/Files/Boligdata/AfdelingsdokumenterFraEG/01_707/Afdelingsbestyrelse/Referat/2025-02-06-Referat.pdf)
                                            [2024-11-28 Referat.pdf](https://bolignaestved.dk/p/Files/Boligdata/AfdelingsdokumenterFraEG/01_707/Afdelingsbestyrelse/Referat/2024-11-28-Referat.pdf)
                                            [2023-08-07 Referat.pdf](https://bolignaestved.dk/p/Files/Boligdata/AfdelingsdokumenterFraEG/01_707/Afdelingsbestyrelse/Referat/2023-08-07-Referat.pdf)
                                            [2023-06-06 Referat.pdf](https://bolignaestved.dk/p/Files/Boligdata/AfdelingsdokumenterFraEG/01_707/Afdelingsbestyrelse/Referat/2023-06-06-Referat.pdf)
                                            [2023-05-09 Referat.pdf](https://bolignaestved.dk/p/Files/Boligdata/AfdelingsdokumenterFraEG/01_707/Afdelingsbestyrelse/Referat/2023-05-09-Referat.pdf)
                                            [2023-04-04 Referat.pdf](https://bolignaestved.dk/p/Files/Boligdata/AfdelingsdokumenterFraEG/01_707/Afdelingsbestyrelse/Referat/2023-04-04-Referat.pdf)
                                            [2023-03-07 Referat.pdf](https://bolignaestved.dk/p/Files/Boligdata/AfdelingsdokumenterFraEG/01_707/Afdelingsbestyrelse/Referat/2023-03-07-Referat.pdf)
                                            [2023-02-05 Referat.pdf](https://bolignaestved.dk/p/Files/Boligdata/AfdelingsdokumenterFraEG/01_707/Afdelingsbestyrelse/Referat/2023-02-05-Referat.pdf)
                                            [2022-12-06 Referat.pdf](https://bolignaestved.dk/p/Files/Boligdata/AfdelingsdokumenterFraEG/01_707/Afdelingsbestyrelse/Referat/2022-12-06-Referat.pdf)
                                            [2022-11-08 Referat.pdf](https://bolignaestved.dk/p/Files/Boligdata/AfdelingsdokumenterFraEG/01_707/Afdelingsbestyrelse/Referat/2022-11-08-Referat.pdf)
                                            [2022-10-06 Referat.pdf](https://bolignaestved.dk/p/Files/Boligdata/AfdelingsdokumenterFraEG/01_707/Afdelingsbestyrelse/Referat/2022-10-06-Referat.pdf)
                                            [2022-09-12 Referat.pdf](https://bolignaestved.dk/p/Files/Boligdata/AfdelingsdokumenterFraEG/01_707/Afdelingsbestyrelse/Referat/2022-09-12-Referat.pdf)
                                            [2022-08-14 Referat.pdf](https://bolignaestved.dk/p/Files/Boligdata/AfdelingsdokumenterFraEG/01_707/Afdelingsbestyrelse/Referat/2022-08-14-Referat.pdf)
                                            [2022-08-08 Referat.pdf](https://bolignaestved.dk/p/Files/Boligdata/AfdelingsdokumenterFraEG/01_707/Afdelingsbestyrelse/Referat/2022-08-08-Referat.pdf)
                                            [2022-05-05 Referat.pdf](https://bolignaestved.dk/p/Files/Boligdata/AfdelingsdokumenterFraEG/01_707/Afdelingsbestyrelse/Referat/2022-05-05-Referat.pdf)
                                            [2022-01-27 Referat.pdf](https://bolignaestved.dk/p/Files/Boligdata/AfdelingsdokumenterFraEG/01_707/Afdelingsbestyrelse/Referat/2022-01-27-Referat.pdf)
                                            [2021-11-15 Referat.pdf](https://bolignaestved.dk/p/Files/Boligdata/AfdelingsdokumenterFraEG/01_707/Afdelingsbestyrelse/Referat/2021-11-15-Referat.pdf)
                                            [2021-10-15 Referat.pdf](https://bolignaestved.dk/p/Files/Boligdata/AfdelingsdokumenterFraEG/01_707/Afdelingsbestyrelse/Referat/2021-10-15-Referat.pdf)
                                            [2021-09-13 Referat.pdf](https://bolignaestved.dk/p/Files/Boligdata/AfdelingsdokumenterFraEG/01_707/Afdelingsbestyrelse/Referat/2021-09-13-Referat.pdf)
                                            [2021-08-02 Referat.pdf](https://bolignaestved.dk/p/Files/Boligdata/AfdelingsdokumenterFraEG/01_707/Afdelingsbestyrelse/Referat/2021-08-02-Referat.pdf)
                                            [2021-06-21 Referat.pdf](https://bolignaestved.dk/p/Files/Boligdata/AfdelingsdokumenterFraEG/01_707/Afdelingsbestyrelse/Referat/2021-06-21-Referat.pdf)
                                            [2021-04-07 Referat.pdf](https://bolignaestved.dk/p/Files/Boligdata/AfdelingsdokumenterFraEG/01_707/Afdelingsbestyrelse/Referat/2021-04-07-Referat.pdf)
                                            [2020-11-04 Referat.pdf](https://bolignaestved.dk/p/Files/Boligdata/AfdelingsdokumenterFraEG/01_707/Afdelingsbestyrelse/Referat/2020-11-04-Referat.pdf)
                                            [2020-10-07 Referat.pdf](https://bolignaestved.dk/p/Files/Boligdata/AfdelingsdokumenterFraEG/01_707/Afdelingsbestyrelse/Referat/2020-10-07-Referat.pdf)
                                            [2020-09-07 Referat.pdf](https://bolignaestved.dk/p/Files/Boligdata/AfdelingsdokumenterFraEG/01_707/Afdelingsbestyrelse/Referat/2020-09-07-Referat.pdf)
                                            [2020-08-12 Referat.pdf](https://bolignaestved.dk/p/Files/Boligdata/AfdelingsdokumenterFraEG/01_707/Afdelingsbestyrelse/Referat/2020-08-12-Referat.pdf)
                                            [2020-06-08 Referat.pdf](https://bolignaestved.dk/p/Files/Boligdata/AfdelingsdokumenterFraEG/01_707/Afdelingsbestyrelse/Referat/2020-06-08-Referat.pdf)
                                            [2020-03-02 Referat.pdf](https://bolignaestved.dk/p/Files/Boligdata/AfdelingsdokumenterFraEG/01_707/Afdelingsbestyrelse/Referat/2020-03-02-Referat.pdf)
                                            [2019-11-25 Referat.pdf](https://bolignaestved.dk/p/Files/Boligdata/AfdelingsdokumenterFraEG/01_707/Afdelingsbestyrelse/Referat/2019-11-25-Referat.pdf)

## Placering
