---
title: "Afdeling 705 Digtergården"
description: "1-705"
date: "2026-04-24"
created: "2025-09-25"
---

-
-
-
-
-
-
-
-
-
-

https://maps.google.dk/?q=55.2296979,11.7465591

# Afdeling 705 Digtergården

Afdeling 705

## Velkommen til Afdeling 705 Digtergården

Afdelingen er opført som etagebyggeri bestående af flere blokke med i alt 84 lejligheder fordelt som 1, 2, 3 og 4 vær., opført i 1969 og 26 taglejligheder fordelt som 2 og 3 vær. Boligerne indeholder komfur(undtaget 1. vær.) på 3. sal tillige emhætte og ikke andre hårde hvidevarer. Der er adgang til fælles vaskeri samt hyggeligt haveanlæg med legeplads. Til hver bolig hører mindre kælderrum. Boliger i stueplan har egen mindre have, 1. og 2. sal har lukket altan. Afdelingen ligger i et alsidigt boligkvarter tæt ved skoler, institutioner, dagligvarebutikker samt offentlig transport. Rimelig afstand til Næstved centrum, den fritlagte Suså, Herlufsholmskoven og Næstved havn.

## Fakta for afdelingen...

Altan/have

Ja

Der hører have til stuelejlighederne.
Der hører lukket altan til 1. og 2. sals lejligheder

Antal/størrelse

Se mere

6 stk 1 rums 35 m2, 29 stk 2 rums 60,8-77 m2, 66 stk 3 rums 75,3-82 m2, 9 stk 4 rums 88,6 m2

Beboerhus

Nej

Byggeår

1969. 3. sal: 1996

Carport/garage

Nej

Elevator

Nej

Husdyrhold

Se mere

1 kat

Hårde hvidevarer

Ja

Komfur og ikke andre hårde hvidevarer.

Kælderrum/udhus

Ja

Der hører mindre kælderrum til hver bolig

Legeplads

Ja

Tv/Internet

Ja

Frit valg blandt udbydere af tv/internet

Vaskeri

Ja

Ja, fællesvaskeri i kælder

Ventetider

Se mere

2 til 5 år

Ældreboliger/ungdomsboliger

Nej

                        Se flere

## Boliger i afdelingen

Familiebolig

1 værelses

Familiebolig

Familiebolig

2 værelses

Familiebolig

Familiebolig

3 værelses

Familiebolig

Familiebolig

4 værelses

Familiebolig

Boligtype

Værelser

Størrelse

Husleje u. forbrug

Indskud

Plantegning

Familiebolig

1

35 m²

2260 kr.

9765 kr.

![](https://bolignaestved.dk/i/MOLIRIMEDIA/6b9db992-2729-4182-0ada-08ddde57396d?width=800)

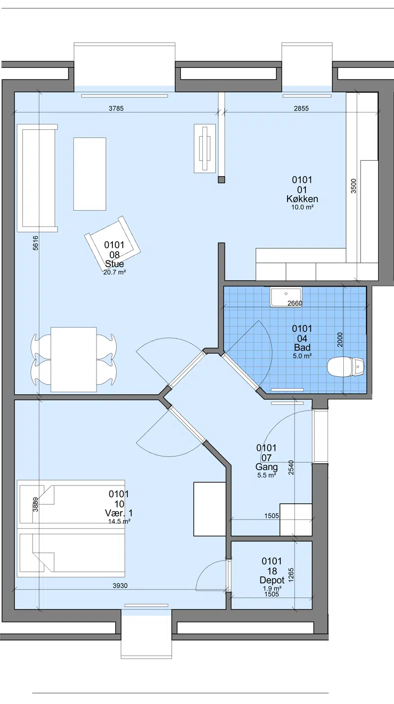
Familiebolig

2

77.86 m²

6858 kr.

21723 kr.

![](https://bolignaestved.dk/i/MOLIRIMEDIA/bfbe0231-0cbb-4965-0d41-08ddde57396d?width=800)

Familiebolig

2

62.2 m²

4069 kr.

17354 kr.

![](https://bolignaestved.dk/i/MOLIRIMEDIA/a7120020-413c-491e-12e3-08ddde57396d?width=800)

Familiebolig

2

60.8 m²

3977 kr.

16963 kr.

![](https://bolignaestved.dk/i/MOLIRIMEDIA/a7a5bf3d-a715-4b45-0980-08ddde57396d?width=800)

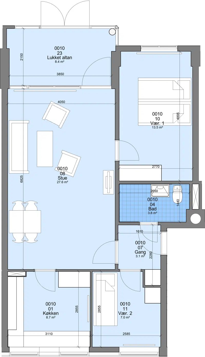
Familiebolig

3

82.26 m²

7244 kr.

22951 kr.

![](https://bolignaestved.dk/i/MOLIRIMEDIA/d9664137-f4a6-4823-0ade-08ddde57396d?width=800)

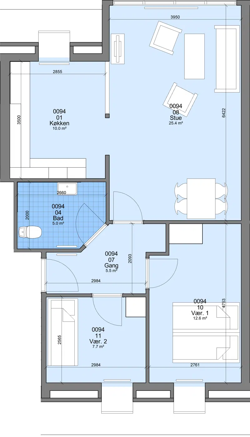
Familiebolig

3

75.3 m²

4946 kr.

21009 kr.

![](https://bolignaestved.dk/i/MOLIRIMEDIA/a368ba5f-a438-42b0-0c3c-08ddde57396d?width=800)

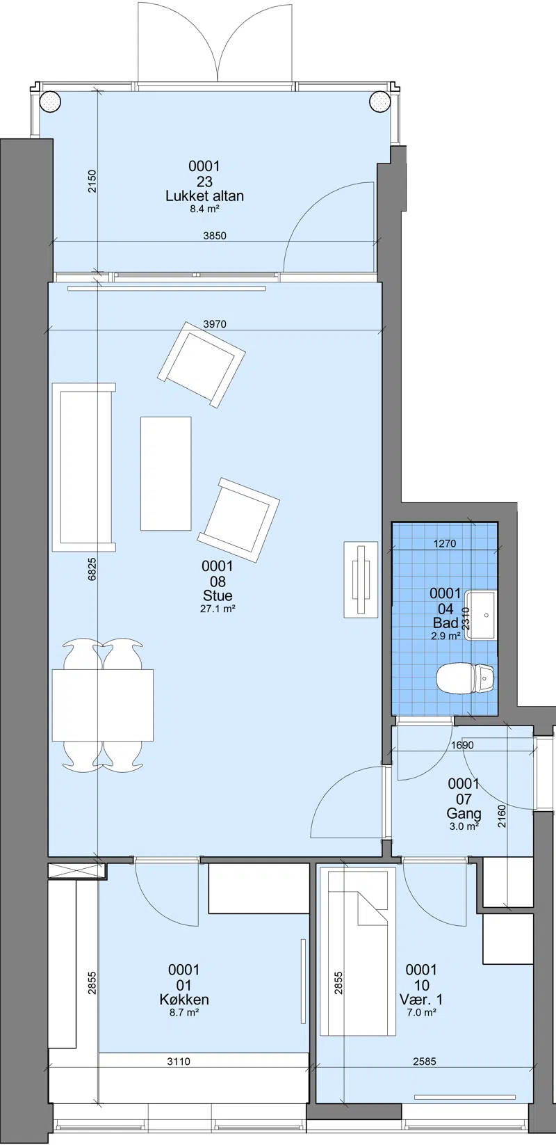
Familiebolig

4

88.6 m²

5829 kr.

24719 kr.

![](https://bolignaestved.dk/i/MOLIRIMEDIA/2d9ef0f6-d64a-492e-0ab1-08ddde57396d?width=800)

## Driftscenter

### Kontakt dit driftscenter

Adresse:

Fodbygårdsvej 16

4700 Næstved

55723497

fodbygaardsvej@bolignaestved.dk

### Åbningstider

Telefonisk henvendelse:

Mandag - fredag kl 8.30-10.00

.............................................

Personlig henvendelse:

Kun efter forudgående aftale (bestil tid)

## Personale

### Jacob Clausen

Driftsleder

### Hans-Henrik Friis Jørgensen

Driftslederassistent

### Gitte Jacobsen

Kontormedarbejder

### Per Larsen

Ejendomsfunktionær

### Sigurdur R. Gislason

Ejendomsfunktionær

### Morten Ambus

Ejendomsfunktionær

### Benny Jensen

Ejendomsfunktionær

### Claus Ove Pedersen

Ejendomsfunktionær

### Jens-Jørgen Klausen

Ejendomsfunktionær

### Bo Pedersen

Ejendomsfunktionær

## Bestyrelsen

Navn

Titel

Ejvind Jørgen Dokkedal

Formand

Mette Line Svendstorp

Medlem

Henrik Jønck

Medlem

Mogens Christiansen

Suppleant 1

Diana Sørensen

Suppleant 2

## Repræsentantskab

Navn

Titel

Ejvind Jørgen Dokkedal

Medlem

Mogens Christiansen

Medlem

Mette Line Svendstorp

Suppleant 1

## Afdelingsmøde

Her finder du nyttig information afdelingsmøder, såsom forslag, referater m.m.

###

                                                Forretningsorden

[Forretningsorden.pdf](https://bolignaestved.dk/p/Files/Boligdata/AfdelingsdokumenterFraEG/01_705/Afdelingsm&#xF8;de/Forretningsorden/Forretningsorden.pdf)

###

                                                Indkaldelse

[2025-09-16 Indkaldelse.pdf](https://bolignaestved.dk/p/Files/Boligdata/AfdelingsdokumenterFraEG/01_705/Afdelingsm&#xF8;de/Indkaldelse/2025-09-16-Indkaldelse.pdf)
                                            [2024-09-12 Indkaldelse.pdf](https://bolignaestved.dk/p/Files/Boligdata/AfdelingsdokumenterFraEG/01_705/Afdelingsm&#xF8;de/Indkaldelse/2024-09-12-Indkaldelse.pdf)
                                            [2024-01-25 Indkaldelse ekstraordinært.pdf](https://bolignaestved.dk/p/Files/Boligdata/AfdelingsdokumenterFraEG/01_705/Afdelingsm&#xF8;de/Indkaldelse/2024-01-25-Indkaldelse-ekstraordin&#xE6;rt.pdf)
                                            [2023-09-14 Indkaldelse.pdf](https://bolignaestved.dk/p/Files/Boligdata/AfdelingsdokumenterFraEG/01_705/Afdelingsm&#xF8;de/Indkaldelse/2023-09-14-Indkaldelse.pdf)
                                            [2022-09-15 Indkaldelse.pdf](https://bolignaestved.dk/p/Files/Boligdata/AfdelingsdokumenterFraEG/01_705/Afdelingsm&#xF8;de/Indkaldelse/2022-09-15-Indkaldelse.pdf)
                                            [2021-09-14 Indkaldelse.pdf](https://bolignaestved.dk/p/Files/Boligdata/AfdelingsdokumenterFraEG/01_705/Afdelingsm&#xF8;de/Indkaldelse/2021-09-14-Indkaldelse.pdf)
                                            [2020-09-09 Indkaldelse.pdf](https://bolignaestved.dk/p/Files/Boligdata/AfdelingsdokumenterFraEG/01_705/Afdelingsm&#xF8;de/Indkaldelse/2020-09-09-Indkaldelse.pdf)
                                            [2020-03-11 Indkaldelse ekstraordinært.pdf](https://bolignaestved.dk/p/Files/Boligdata/AfdelingsdokumenterFraEG/01_705/Afdelingsm&#xF8;de/Indkaldelse/2020-03-11-Indkaldelse-ekstraordin&#xE6;rt.pdf)

###

                                                Forslag

[2025-09-16 Forslag.pdf](https://bolignaestved.dk/p/Files/Boligdata/AfdelingsdokumenterFraEG/01_705/Afdelingsm&#xF8;de/Forslag/2025-09-16-Forslag.pdf)
                                            [2024-09-12 Forslag.pdf](https://bolignaestved.dk/p/Files/Boligdata/AfdelingsdokumenterFraEG/01_705/Afdelingsm&#xF8;de/Forslag/2024-09-12-Forslag.pdf)
                                            [2023-09-14 Forslag.pdf](https://bolignaestved.dk/p/Files/Boligdata/AfdelingsdokumenterFraEG/01_705/Afdelingsm&#xF8;de/Forslag/2023-09-14-Forslag.pdf)
                                            [2022-09-15 Forslag.pdf](https://bolignaestved.dk/p/Files/Boligdata/AfdelingsdokumenterFraEG/01_705/Afdelingsm&#xF8;de/Forslag/2022-09-15-Forslag.pdf)
                                            [2021-09-14 Forslag.pdf](https://bolignaestved.dk/p/Files/Boligdata/AfdelingsdokumenterFraEG/01_705/Afdelingsm&#xF8;de/Forslag/2021-09-14-Forslag.pdf)
                                            [2020-09-09 Forslag.pdf](https://bolignaestved.dk/p/Files/Boligdata/AfdelingsdokumenterFraEG/01_705/Afdelingsm&#xF8;de/Forslag/2020-09-09-Forslag.pdf)

###

                                                Referat

[2025-09-16 Referat.pdf](https://bolignaestved.dk/p/Files/Boligdata/AfdelingsdokumenterFraEG/01_705/Afdelingsm&#xF8;de/Referat/2025-09-16-Referat.pdf)
                                            [2024-09-12 Referat.pdf](https://bolignaestved.dk/p/Files/Boligdata/AfdelingsdokumenterFraEG/01_705/Afdelingsm&#xF8;de/Referat/2024-09-12-Referat.pdf)
                                            [2024-01-25 Referat Ekstra ord. afd. møde.pdf](https://bolignaestved.dk/p/Files/Boligdata/AfdelingsdokumenterFraEG/01_705/Afdelingsm&#xF8;de/Referat/2024-01-25-Referat-Ekstra-ord.-afd.-m&#xF8;de.pdf)
                                            [2023-09-14 Referat.pdf](https://bolignaestved.dk/p/Files/Boligdata/AfdelingsdokumenterFraEG/01_705/Afdelingsm&#xF8;de/Referat/2023-09-14-Referat.pdf)
                                            [2022-09-15 Referat.pdf](https://bolignaestved.dk/p/Files/Boligdata/AfdelingsdokumenterFraEG/01_705/Afdelingsm&#xF8;de/Referat/2022-09-15-Referat.pdf)
                                            [2021-09-14 Referat.pdf](https://bolignaestved.dk/p/Files/Boligdata/AfdelingsdokumenterFraEG/01_705/Afdelingsm&#xF8;de/Referat/2021-09-14-Referat.pdf)
                                            [2020-09-09 Referat.pdf](https://bolignaestved.dk/p/Files/Boligdata/AfdelingsdokumenterFraEG/01_705/Afdelingsm&#xF8;de/Referat/2020-09-09-Referat.pdf)
                                            [2020-03-11 Referat ekstra ordinært afd. møde.pdf](https://bolignaestved.dk/p/Files/Boligdata/AfdelingsdokumenterFraEG/01_705/Afdelingsm&#xF8;de/Referat/2020-03-11-Referat-ekstra-ordin&#xE6;rt-afd.-m&#xF8;de.pdf)

## Afdelingens dokumenter

Her finder du nyttig information fra din afdeling, såsom budget, regnskab, ordensreglement m.m.

###

                                                Budget

[Budget 2026.pdf](https://bolignaestved.dk/p/Files/Boligdata/AfdelingsdokumenterFraEG/01_705/Afdelingens%20dokumenter/Budget/Budget-2026.pdf)
                                            [Budget 2025.pdf](https://bolignaestved.dk/p/Files/Boligdata/AfdelingsdokumenterFraEG/01_705/Afdelingens%20dokumenter/Budget/Budget-2025.pdf)
                                            [Budget 2024.pdf](https://bolignaestved.dk/p/Files/Boligdata/AfdelingsdokumenterFraEG/01_705/Afdelingens%20dokumenter/Budget/Budget-2024.pdf)
                                            [Budget 2023.pdf](https://bolignaestved.dk/p/Files/Boligdata/AfdelingsdokumenterFraEG/01_705/Afdelingens%20dokumenter/Budget/Budget-2023.pdf)
                                            [Budget 2022.pdf](https://bolignaestved.dk/p/Files/Boligdata/AfdelingsdokumenterFraEG/01_705/Afdelingens%20dokumenter/Budget/Budget-2022.pdf)

###

                                                Årsregnskab

[Årsregnskab 2025.pdf](https://bolignaestved.dk/p/Files/Boligdata/AfdelingsdokumenterFraEG/01_705/Afdelingens%20dokumenter/&#xC5;rsregnskab/&#xC5;rsregnskab-2025.pdf)
                                            [Årsregnskab 2024.pdf](https://bolignaestved.dk/p/Files/Boligdata/AfdelingsdokumenterFraEG/01_705/Afdelingens%20dokumenter/&#xC5;rsregnskab/&#xC5;rsregnskab-2024.pdf)
                                            [Årsregnskab 2023.pdf](https://bolignaestved.dk/p/Files/Boligdata/AfdelingsdokumenterFraEG/01_705/Afdelingens%20dokumenter/&#xC5;rsregnskab/&#xC5;rsregnskab-2023.pdf)
                                            [Årsregnskab 2022.pdf](https://bolignaestved.dk/p/Files/Boligdata/AfdelingsdokumenterFraEG/01_705/Afdelingens%20dokumenter/&#xC5;rsregnskab/&#xC5;rsregnskab-2022.pdf)
                                            [Årsregnskab 2021.pdf](https://bolignaestved.dk/p/Files/Boligdata/AfdelingsdokumenterFraEG/01_705/Afdelingens%20dokumenter/&#xC5;rsregnskab/&#xC5;rsregnskab-2021.pdf)
                                            [Årsregnskab 2020.pdf](https://bolignaestved.dk/p/Files/Boligdata/AfdelingsdokumenterFraEG/01_705/Afdelingens%20dokumenter/&#xC5;rsregnskab/&#xC5;rsregnskab-2020.pdf)
                                            [Årsregnskab 2019.pdf](https://bolignaestved.dk/p/Files/Boligdata/AfdelingsdokumenterFraEG/01_705/Afdelingens%20dokumenter/&#xC5;rsregnskab/&#xC5;rsregnskab-2019.pdf)

###

                                                Ordensreglement

[Ordensreglement.pdf](https://bolignaestved.dk/p/Files/Boligdata/AfdelingsdokumenterFraEG/01_705/Afdelingens%20dokumenter/Ordensreglement/Ordensreglement.pdf)

###

                                                Vedligeholdelsesreglement

[Vedligeholdelsesreglement.pdf](https://bolignaestved.dk/p/Files/Boligdata/AfdelingsdokumenterFraEG/01_705/Afdelingens%20dokumenter/Vedligeholdelsesreglement/Vedligeholdelsesreglement.pdf)

###

                                                Råderetskatalog

[Råderetskatalog.pdf](https://bolignaestved.dk/p/Files/Boligdata/AfdelingsdokumenterFraEG/01_705/Afdelingens%20dokumenter/R&#xE5;deretskatalog/R&#xE5;deretskatalog.pdf)

###

                                                Energimærke

[Energimærke afd. 705.pdf](https://bolignaestved.dk/p/Files/Boligdata/AfdelingsdokumenterFraEG/01_705/Afdelingens%20dokumenter/Energim&#xE6;rke/Energim&#xE6;rke-afd.-705.pdf)

###

                                                Andre dokumenter

[Beredskabsplan ved oversvømmelse.pdf](https://bolignaestved.dk/p/Files/Boligdata/AfdelingsdokumenterFraEG/01_705/Afdelingens%20dokumenter/Andre%20dokumenter/Beredskabsplan-ved-oversv&#xF8;mmelse.pdf)
                                            [Info om blødgøringsanlæg.pdf](https://bolignaestved.dk/p/Files/Boligdata/AfdelingsdokumenterFraEG/01_705/Afdelingens%20dokumenter/Andre%20dokumenter/Info-om-bl&#xF8;dg&#xF8;ringsanl&#xE6;g.pdf)
                                            [Vejledning ILOQ låsesystem.pdf](https://bolignaestved.dk/p/Files/Boligdata/AfdelingsdokumenterFraEG/01_705/Afdelingens%20dokumenter/Andre%20dokumenter/Vejledning-ILOQ-l&#xE5;sesystem.pdf)
                                            [Vejledning til dørtelefon.pdf](https://bolignaestved.dk/p/Files/Boligdata/AfdelingsdokumenterFraEG/01_705/Afdelingens%20dokumenter/Andre%20dokumenter/Vejledning-til-d&#xF8;rtelefon.pdf)
                                            [Velkomstbrev Pay Per Wash.pdf](https://bolignaestved.dk/p/Files/Boligdata/AfdelingsdokumenterFraEG/01_705/Afdelingens%20dokumenter/Andre%20dokumenter/Velkomstbrev-Pay-Per-Wash.pdf)
                                            [Velkomstpjece.pdf](https://bolignaestved.dk/p/Files/Boligdata/AfdelingsdokumenterFraEG/01_705/Afdelingens%20dokumenter/Andre%20dokumenter/Velkomstpjece.pdf)

## Afdelingsbestyrelse

Her finder du nyttig information fra afdelinsbestyrelse i din afdeling.

###

                                                Referat

[2026-04-20 Referat.pdf](https://bolignaestved.dk/p/Files/Boligdata/AfdelingsdokumenterFraEG/01_705/Afdelingsbestyrelse/Referat/2026-04-20-Referat.pdf)
                                            [2026-03-19 Referat.pdf](https://bolignaestved.dk/p/Files/Boligdata/AfdelingsdokumenterFraEG/01_705/Afdelingsbestyrelse/Referat/2026-03-19-Referat.pdf)
                                            [2025-03-27 Referat.pdf](https://bolignaestved.dk/p/Files/Boligdata/AfdelingsdokumenterFraEG/01_705/Afdelingsbestyrelse/Referat/2025-03-27-Referat.pdf)
                                            [2025-02-12 Referat.pdf](https://bolignaestved.dk/p/Files/Boligdata/AfdelingsdokumenterFraEG/01_705/Afdelingsbestyrelse/Referat/2025-02-12-Referat.pdf)
                                            [2024-06-19 Referat.pdf](https://bolignaestved.dk/p/Files/Boligdata/AfdelingsdokumenterFraEG/01_705/Afdelingsbestyrelse/Referat/2024-06-19-Referat.pdf)
                                            [2024-04-24 Referat.pdf](https://bolignaestved.dk/p/Files/Boligdata/AfdelingsdokumenterFraEG/01_705/Afdelingsbestyrelse/Referat/2024-04-24-Referat.pdf)
                                            [2024-03-11 Referat.pdf](https://bolignaestved.dk/p/Files/Boligdata/AfdelingsdokumenterFraEG/01_705/Afdelingsbestyrelse/Referat/2024-03-11-Referat.pdf)
                                            [2023-06-29 Referat.pdf](https://bolignaestved.dk/p/Files/Boligdata/AfdelingsdokumenterFraEG/01_705/Afdelingsbestyrelse/Referat/2023-06-29-Referat.pdf)
                                            [2023-02-22 Referat.pdf](https://bolignaestved.dk/p/Files/Boligdata/AfdelingsdokumenterFraEG/01_705/Afdelingsbestyrelse/Referat/2023-02-22-Referat.pdf)

## Placering
