---
title: "Afdeling 704 Sognefogedgården"
description: "1-704"
date: "2026-04-24"
created: "2025-09-25"
---

-
-
-
-
-
-

https://maps.google.dk/?q=55.228094,11.748479

# Afdeling 704 Sognefogedgården

Afdeling 704

## Velkommen til Afdeling 704 Sognefogedgården

Afdelingen er opført som etagebyggeri bestående af 1 blok med i alt 21 lejligheder fordelt som 1, 2, 3 og 4 vær. Boligerne indeholder komfur og ikke andre hårde hvidevarer. Der er adgang til fælles vaskeri samt haveanlæg med legeplads. Til hver bolig hører lukket altan og mindre kælderrum. (Ingen altan for alle 1 vær. og for 2 vær. på 51 m2). Der er mulighed for at blive skrevet op til leje af garage. Afdelingen ligger i et alsidigt boligkvarter tæt ved skoler, institutioner, dagligvarebutikker samt offentlig transport. Rimelig afstand til Næstved centrum, den fritlagte Suså, Herlufsholmskoven og Næstved havn.

## Fakta for afdelingen...

Altan/have

Ja

Der hører lukket altan til alle boliger, undtagen 1 rums boliger

Antal/størrelse

Se mere

6 stk 1 rums 38 m2, 9 stk 2 rums 51-66 m2, 3 stk 3 rums 88 m2, 3 stk 4 rums 95 m2

Beboerhus

Nej

Byggeår

1963

Carport/garage

Ja

Der er mulighed for at blive skrevet op til garage

Elevator

Nej

Husdyrhold

Se mere

1 kat

Hårde hvidevarer

Ja

Komfur og ikke andre hårde hvidevarer.

Kælderrum/udhus

Ja

Der hører mindre kælderrum til hver bolig

Legeplads

Ja

Tv/Internet

Ja

Frit valg blandt udbydere af tv/internet

Vaskeri

Ja

Ja, fællesvaskeri i kælder

Ventetider

Se mere

2 til 5 år

Ældreboliger/ungdomsboliger

Nej/Nej

                        Se flere

## Boliger i afdelingen

Familiebolig

1 værelses

Familiebolig

Familiebolig

2 værelses

Familiebolig

Familiebolig

3 værelses

Familiebolig

Familiebolig

4 værelses

Familiebolig

Boligtype

Værelser

Størrelse

Husleje u. forbrug

Indskud

Plantegning

Familiebolig

1

38 m²

3167 kr.

10602 kr.

![](https://bolignaestved.dk/i/MOLIRIMEDIA/7f94eb7d-2559-4a0f-0f49-08ddde57396d?width=800)

Familiebolig

2

66 m²

5748 kr.

18414 kr.

![](https://bolignaestved.dk/i/MOLIRIMEDIA/aa7c0aee-06b0-46f6-0f03-08ddde57396d?width=800)

Familiebolig

2

51 m²

4325 kr.

14229 kr.

![](https://bolignaestved.dk/i/MOLIRIMEDIA/d8fc0b10-3aa2-4929-0b8f-08ddde57396d?width=800)

Familiebolig

3

88 m²

7822 kr.

24552 kr.

![](https://bolignaestved.dk/i/MOLIRIMEDIA/ddf41d5a-3cea-445f-0a69-08ddde57396d?width=800)

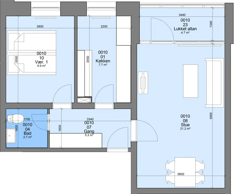
Familiebolig

4

95 m²

8403 kr.

26505 kr.

![](https://bolignaestved.dk/i/MOLIRIMEDIA/0d82a894-8665-45b9-098b-08ddde57396d?width=800)

## Driftscenter

### Kontakt dit driftscenter

Adresse:

Fodbygårdsvej 16

4700 Næstved

55723497

fodbygaardsvej@bolignaestved.dk

### Åbningstider

Telefonisk henvendelse:

Mandag - fredag kl 8.30-10.00

.............................................

Personlig henvendelse:

Kun efter forudgående aftale (bestil tid)

## Personale

### Jacob Clausen

Driftsleder

### Hans-Henrik Friis Jørgensen

Driftslederassistent

### Gitte Jacobsen

Kontormedarbejder

### Per Larsen

Ejendomsfunktionær

### Sigurdur R. Gislason

Ejendomsfunktionær

### Morten Ambus

Ejendomsfunktionær

### Benny Jensen

Ejendomsfunktionær

### Claus Ove Pedersen

Ejendomsfunktionær

### Jens-Jørgen Klausen

Ejendomsfunktionær

### Bo Pedersen

Ejendomsfunktionær

## Bestyrelsen

Navn

Titel

Morten Bæk Larsen

Formand

Tanja Hvitfeldt Andersen

Medlem

Annette Petersen

Medlem

Alfred Thomsen

Suppleant 1

## Repræsentantskab

Navn

Titel

Morten Bæk Larsen

Medlem

## Afdelingsmøde

Her finder du nyttig information afdelingsmøder, såsom forslag, referater m.m.

###

                                                Forretningsorden

[Forretningsorden.pdf](https://bolignaestved.dk/p/Files/Boligdata/AfdelingsdokumenterFraEG/01_704/Afdelingsm&#xF8;de/Forretningsorden/Forretningsorden.pdf)

###

                                                Indkaldelse

[2025-08-26 Indkaldelse.pdf](https://bolignaestved.dk/p/Files/Boligdata/AfdelingsdokumenterFraEG/01_704/Afdelingsm&#xF8;de/Indkaldelse/2025-08-26-Indkaldelse.pdf)
                                            [2024-10-30 Indkaldelse.pdf](https://bolignaestved.dk/p/Files/Boligdata/AfdelingsdokumenterFraEG/01_704/Afdelingsm&#xF8;de/Indkaldelse/2024-10-30-Indkaldelse.pdf)
                                            [2024-09-10 Indkaldelse.pdf](https://bolignaestved.dk/p/Files/Boligdata/AfdelingsdokumenterFraEG/01_704/Afdelingsm&#xF8;de/Indkaldelse/2024-09-10-Indkaldelse.pdf)
                                            [2023-08-24 Indkaldelse.pdf](https://bolignaestved.dk/p/Files/Boligdata/AfdelingsdokumenterFraEG/01_704/Afdelingsm&#xF8;de/Indkaldelse/2023-08-24-Indkaldelse.pdf)
                                            [2023-01-04 Indkaldelse ekstraordinært afdelingsmøde.pdf](https://bolignaestved.dk/p/Files/Boligdata/AfdelingsdokumenterFraEG/01_704/Afdelingsm&#xF8;de/Indkaldelse/2023-01-04-Indkaldelse-ekstraordin&#xE6;rt-afdelingsm&#xF8;de.pdf)
                                            [2022-08-30 Indkaldelse.pdf](https://bolignaestved.dk/p/Files/Boligdata/AfdelingsdokumenterFraEG/01_704/Afdelingsm&#xF8;de/Indkaldelse/2022-08-30-Indkaldelse.pdf)
                                            [2022-07-06 Indkaldelse ekstraordinært afdelingsmøde.pdf](https://bolignaestved.dk/p/Files/Boligdata/AfdelingsdokumenterFraEG/01_704/Afdelingsm&#xF8;de/Indkaldelse/2022-07-06-Indkaldelse-ekstraordin&#xE6;rt-afdelingsm&#xF8;de.pdf)
                                            [2021-08-31 Indkaldelse.pdf](https://bolignaestved.dk/p/Files/Boligdata/AfdelingsdokumenterFraEG/01_704/Afdelingsm&#xF8;de/Indkaldelse/2021-08-31-Indkaldelse.pdf)
                                            [2020-08-27 Indkaldelse.pdf](https://bolignaestved.dk/p/Files/Boligdata/AfdelingsdokumenterFraEG/01_704/Afdelingsm&#xF8;de/Indkaldelse/2020-08-27-Indkaldelse.pdf)

###

                                                Forslag

[2025-08-26 Forslag.pdf](https://bolignaestved.dk/p/Files/Boligdata/AfdelingsdokumenterFraEG/01_704/Afdelingsm&#xF8;de/Forslag/2025-08-26-Forslag.pdf)
                                            [2024-09-10 Forslag.pdf](https://bolignaestved.dk/p/Files/Boligdata/AfdelingsdokumenterFraEG/01_704/Afdelingsm&#xF8;de/Forslag/2024-09-10-Forslag.pdf)
                                            [2023-08-24 Forslag.pdf](https://bolignaestved.dk/p/Files/Boligdata/AfdelingsdokumenterFraEG/01_704/Afdelingsm&#xF8;de/Forslag/2023-08-24-Forslag.pdf)
                                            [2022-08-30 Forslag.pdf](https://bolignaestved.dk/p/Files/Boligdata/AfdelingsdokumenterFraEG/01_704/Afdelingsm&#xF8;de/Forslag/2022-08-30-Forslag.pdf)
                                            [2021-08-31 Forslag.pdf](https://bolignaestved.dk/p/Files/Boligdata/AfdelingsdokumenterFraEG/01_704/Afdelingsm&#xF8;de/Forslag/2021-08-31-Forslag.pdf)
                                            [2020-08-27 Forslag.pdf](https://bolignaestved.dk/p/Files/Boligdata/AfdelingsdokumenterFraEG/01_704/Afdelingsm&#xF8;de/Forslag/2020-08-27-Forslag.pdf)

###

                                                Referat

[2025-08-26 Referat.pdf](https://bolignaestved.dk/p/Files/Boligdata/AfdelingsdokumenterFraEG/01_704/Afdelingsm&#xF8;de/Referat/2025-08-26-Referat.pdf)
                                            [2024-10-30 Referat.pdf](https://bolignaestved.dk/p/Files/Boligdata/AfdelingsdokumenterFraEG/01_704/Afdelingsm&#xF8;de/Referat/2024-10-30-Referat.pdf)
                                            [2024-09-10 Referat.pdf](https://bolignaestved.dk/p/Files/Boligdata/AfdelingsdokumenterFraEG/01_704/Afdelingsm&#xF8;de/Referat/2024-09-10-Referat.pdf)
                                            [2023-08-24 Referat.pdf](https://bolignaestved.dk/p/Files/Boligdata/AfdelingsdokumenterFraEG/01_704/Afdelingsm&#xF8;de/Referat/2023-08-24-Referat.pdf)
                                            [2023-01-04 Referat ekstra ord. afd. møde.pdf](https://bolignaestved.dk/p/Files/Boligdata/AfdelingsdokumenterFraEG/01_704/Afdelingsm&#xF8;de/Referat/2023-01-04-Referat-ekstra-ord.-afd.-m&#xF8;de.pdf)
                                            [2022-08-30 Referat.pdf](https://bolignaestved.dk/p/Files/Boligdata/AfdelingsdokumenterFraEG/01_704/Afdelingsm&#xF8;de/Referat/2022-08-30-Referat.pdf)
                                            [2022-07-06 Referat ekstraordinært afd. møde.pdf](https://bolignaestved.dk/p/Files/Boligdata/AfdelingsdokumenterFraEG/01_704/Afdelingsm&#xF8;de/Referat/2022-07-06-Referat-ekstraordin&#xE6;rt-afd.-m&#xF8;de.pdf)
                                            [2021-08-31 Referat.pdf](https://bolignaestved.dk/p/Files/Boligdata/AfdelingsdokumenterFraEG/01_704/Afdelingsm&#xF8;de/Referat/2021-08-31-Referat.pdf)
                                            [2020-08-27 Referat.pdf](https://bolignaestved.dk/p/Files/Boligdata/AfdelingsdokumenterFraEG/01_704/Afdelingsm&#xF8;de/Referat/2020-08-27-Referat.pdf)

## Afdelingens dokumenter

Her finder du nyttig information fra din afdeling, såsom budget, regnskab, ordensreglement m.m.

###

                                                Budget

[Budget 2026.pdf](https://bolignaestved.dk/p/Files/Boligdata/AfdelingsdokumenterFraEG/01_704/Afdelingens%20dokumenter/Budget/Budget-2026.pdf)
                                            [Budget 2025.pdf](https://bolignaestved.dk/p/Files/Boligdata/AfdelingsdokumenterFraEG/01_704/Afdelingens%20dokumenter/Budget/Budget-2025.pdf)
                                            [Budget 2024.pdf](https://bolignaestved.dk/p/Files/Boligdata/AfdelingsdokumenterFraEG/01_704/Afdelingens%20dokumenter/Budget/Budget-2024.pdf)
                                            [Budget 2023.pdf](https://bolignaestved.dk/p/Files/Boligdata/AfdelingsdokumenterFraEG/01_704/Afdelingens%20dokumenter/Budget/Budget-2023.pdf)
                                            [Budget 2022.pdf](https://bolignaestved.dk/p/Files/Boligdata/AfdelingsdokumenterFraEG/01_704/Afdelingens%20dokumenter/Budget/Budget-2022.pdf)

###

                                                Årsregnskab

[Årsregnskab 2025.pdf](https://bolignaestved.dk/p/Files/Boligdata/AfdelingsdokumenterFraEG/01_704/Afdelingens%20dokumenter/&#xC5;rsregnskab/&#xC5;rsregnskab-2025.pdf)
                                            [Årsregnskab 2024.pdf](https://bolignaestved.dk/p/Files/Boligdata/AfdelingsdokumenterFraEG/01_704/Afdelingens%20dokumenter/&#xC5;rsregnskab/&#xC5;rsregnskab-2024.pdf)
                                            [Årsregnskab 2023.pdf](https://bolignaestved.dk/p/Files/Boligdata/AfdelingsdokumenterFraEG/01_704/Afdelingens%20dokumenter/&#xC5;rsregnskab/&#xC5;rsregnskab-2023.pdf)
                                            [Årsregnskab 2022.pdf](https://bolignaestved.dk/p/Files/Boligdata/AfdelingsdokumenterFraEG/01_704/Afdelingens%20dokumenter/&#xC5;rsregnskab/&#xC5;rsregnskab-2022.pdf)
                                            [Årsregnskab 2021.pdf](https://bolignaestved.dk/p/Files/Boligdata/AfdelingsdokumenterFraEG/01_704/Afdelingens%20dokumenter/&#xC5;rsregnskab/&#xC5;rsregnskab-2021.pdf)

###

                                                Ordensreglement

[Ordensreglement.pdf](https://bolignaestved.dk/p/Files/Boligdata/AfdelingsdokumenterFraEG/01_704/Afdelingens%20dokumenter/Ordensreglement/Ordensreglement.pdf)

###

                                                Vedligeholdelsesreglement

[Vedligeholdelsesreglement.pdf](https://bolignaestved.dk/p/Files/Boligdata/AfdelingsdokumenterFraEG/01_704/Afdelingens%20dokumenter/Vedligeholdelsesreglement/Vedligeholdelsesreglement.pdf)

###

                                                Energimærke

[Energimærke afd. 704.pdf](https://bolignaestved.dk/p/Files/Boligdata/AfdelingsdokumenterFraEG/01_704/Afdelingens%20dokumenter/Energim&#xE6;rke/Energim&#xE6;rke-afd.-704.pdf)

###

                                                Andre dokumenter

[Info om blødgøringsanlæg.pdf](https://bolignaestved.dk/p/Files/Boligdata/AfdelingsdokumenterFraEG/01_704/Afdelingens%20dokumenter/Andre%20dokumenter/Info-om-bl&#xF8;dg&#xF8;ringsanl&#xE6;g.pdf)
                                            [Vejledning til dørtelefon.pdf](https://bolignaestved.dk/p/Files/Boligdata/AfdelingsdokumenterFraEG/01_704/Afdelingens%20dokumenter/Andre%20dokumenter/Vejledning-til-d&#xF8;rtelefon.pdf)
                                            [Velkomstpjece.pdf](https://bolignaestved.dk/p/Files/Boligdata/AfdelingsdokumenterFraEG/01_704/Afdelingens%20dokumenter/Andre%20dokumenter/Velkomstpjece.pdf)

###

                                                Nyheder

[2023 Nyhedsbrev Februar.pdf](https://bolignaestved.dk/p/Files/Boligdata/AfdelingsdokumenterFraEG/01_704/Afdelingens%20dokumenter/Nyheder/2023-Nyhedsbrev-Februar.pdf)
                                            [2022 Nyhedsbrev November.pdf](https://bolignaestved.dk/p/Files/Boligdata/AfdelingsdokumenterFraEG/01_704/Afdelingens%20dokumenter/Nyheder/2022-Nyhedsbrev-November.pdf)

## Afdelingsbestyrelse

Her finder du nyttig information fra afdelinsbestyrelse i din afdeling.

## Placering
