---
title: "Afdeling 503 Tårnparken"
description: "1-503"
date: "2026-04-24"
created: "2025-09-25"
---

-
-
-
-
-
-
-
-

https://maps.google.dk/?q=55.2341,11.7797629

# Afdeling 503 Tårnparken

Afdeling 503

## Velkommen til Afdeling 503 Tårnparken

Afdelingen er opført som etagebyggeri bestående af flere boligblokke med i alt 81 lejligheder fordelt som 2, 3 og 4 vær. Afdelingen ligger i et alsidigt boligkvarter tæt ved skoler, institutioner, dagligvarebutikker samt offentlig transport. Boligerne indeholder komfur og ikke andre hårde hvidevarer. Der er adgang til fælles vaskeri samt haveanlæg med legeplads. Til hver bolig hører altan og kælderrum. Der er mulighed for at blive skrevet op til leje af carport.

## Fakta for afdelingen...

Altan/have

Ja

Altan

Antal/størrelse

Se mere

6 stk 2 rums 61-65 m2, 27 stk 3 rums 72-88 m2, 48 stk rums 86-97 m2

Beboerhus

Ja

Byggeår

1968

Carport/garage

Ja

Carport

Elevator

Nej

Husdyrhold

Se mere

Ingen husdyr

Hårde hvidevarer

Ja

Komfur og ikke andre hårde hvidevarer.

Kælderrum/udhus

Ja

Kælderrum

Legeplads

Ja

Tv/Internet

Ja

Frit valg blandt udbydere af tv/internet

Vaskeri

Ja

Ventetider

Se mere

2 til 5 år

Ældreboliger/ungdomsboliger

Nej/Nej

                        Se flere

## Boliger i afdelingen

Familiebolig

2 værelses

Familiebolig

Familiebolig

3 værelses

Familiebolig

Familiebolig

4 værelses

Familiebolig

Boligtype

Værelser

Størrelse

Husleje u. forbrug

Indskud

Plantegning

Familiebolig

2

61 m²

3525 kr.

17019 kr.

![](https://bolignaestved.dk/i/MOLIRIMEDIA/994c6a3c-e592-4dda-08ba-08ddde57396d?width=800)

Familiebolig

2

65 m²

3525 kr.

18135 kr.

![](https://bolignaestved.dk/i/MOLIRIMEDIA/954dd340-b1ab-4387-0c8a-08ddde57396d?width=800)

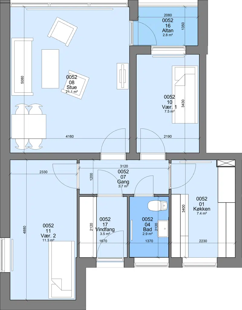
Familiebolig

3

72 m²

4034 kr.

20088 kr.

![](https://bolignaestved.dk/i/MOLIRIMEDIA/6b7ed07c-e35e-4471-0e94-08ddde57396d?width=800)

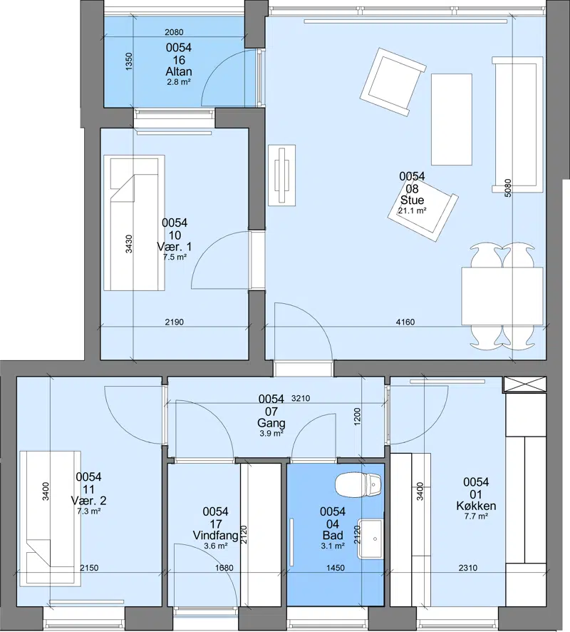
Familiebolig

3

80 m²

4270 kr.

22320 kr.

![](https://bolignaestved.dk/i/MOLIRIMEDIA/53794649-8adf-4ef2-0a65-08ddde57396d?width=800)

Familiebolig

3

97 m²

5751 kr.

27063 kr.

![](https://bolignaestved.dk/i/MOLIRIMEDIA/a6401b6e-edea-4a19-088c-08ddde57396d?width=800)

Familiebolig

3

88 m²

5021 kr.

24552 kr.

![](https://bolignaestved.dk/i/MOLIRIMEDIA/5b7f5269-8fe6-4d9c-0b73-08ddde57396d?width=800)

Familiebolig

3

88 m²

4946 kr.

24552 kr.

![](https://bolignaestved.dk/i/MOLIRIMEDIA/92fe5ace-529b-48d9-0bc0-08ddde57396d?width=800)

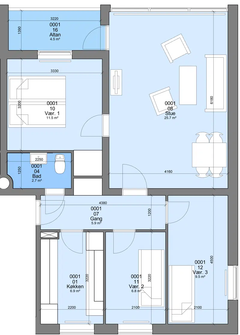
Familiebolig

4

88 m²

4946 kr.

24552 kr.

![](https://bolignaestved.dk/i/MOLIRIMEDIA/1393e933-3c05-49ec-0e46-08ddde57396d?width=800)

## Driftscenter

### Kontakt dit driftscenter

Adresse:

Ejlersvej 34

4700 Næstved

55739357

ejlersvej@bolignaestved.dk

### Åbningstider

Telefonisk henvendelse:

Mandag - fredag kl 8.30-10.00

.............................................

Personlig henvendelse:

Kun efter forudgående aftale (bestil tid)

## Personale

### Claus Kuhre

Driftsleder

### David Mick Nielsen

Driftslederassistent

### Lene F. Nielsen

Kontormedarbejder

### Carsten Kirkebjerg

Ejendomsfunktionær

### Brian Søe Larsen

Ejendomsfunktionær

### Serhij Talatynnik

Ejendomsfunktionær

### Dariusz Jan Rybacki

Ejendomsfunktionær

### Henrik Jørgensen

Ejendomsfunktionær

## Bestyrelsen

Navn

Titel

Ingen afdelingsbestyrelse

Medlem

## Repræsentantskab

Navn

Titel

Merete Buhl

Medlem

Jørgen Hansen

Medlem

## Afdelingsmøde

Her finder du nyttig information afdelingsmøder, såsom forslag, referater m.m.

###

                                                Forretningsorden

[Forretningsorden.pdf](https://bolignaestved.dk/p/Files/Boligdata/AfdelingsdokumenterFraEG/01_503/Afdelingsm&#xF8;de/Forretningsorden/Forretningsorden.pdf)

###

                                                Indkaldelse

[2025-08-28 Indkaldelse.pdf](https://bolignaestved.dk/p/Files/Boligdata/AfdelingsdokumenterFraEG/01_503/Afdelingsm&#xF8;de/Indkaldelse/2025-08-28-Indkaldelse.pdf)
                                            [2025-03-24 Indkaldelse ekstra ordinært afd. møde.pdf](https://bolignaestved.dk/p/Files/Boligdata/AfdelingsdokumenterFraEG/01_503/Afdelingsm&#xF8;de/Indkaldelse/2025-03-24-Indkaldelse-ekstra-ordin&#xE6;rt-afd.-m&#xF8;de.pdf)
                                            [2024-08-27 Indkaldelse.pdf](https://bolignaestved.dk/p/Files/Boligdata/AfdelingsdokumenterFraEG/01_503/Afdelingsm&#xF8;de/Indkaldelse/2024-08-27-Indkaldelse.pdf)
                                            [2023-08-29 Indkaldelse.pdf](https://bolignaestved.dk/p/Files/Boligdata/AfdelingsdokumenterFraEG/01_503/Afdelingsm&#xF8;de/Indkaldelse/2023-08-29-Indkaldelse.pdf)
                                            [2022-10-26 Indkaldelse ekstraordinært afd. møde.pdf](https://bolignaestved.dk/p/Files/Boligdata/AfdelingsdokumenterFraEG/01_503/Afdelingsm&#xF8;de/Indkaldelse/2022-10-26-Indkaldelse-ekstraordin&#xE6;rt-afd.-m&#xF8;de.pdf)
                                            [2022-08-31 Indkaldelse.pdf](https://bolignaestved.dk/p/Files/Boligdata/AfdelingsdokumenterFraEG/01_503/Afdelingsm&#xF8;de/Indkaldelse/2022-08-31-Indkaldelse.pdf)
                                            [2021-08-25 Indkaldelse.pdf](https://bolignaestved.dk/p/Files/Boligdata/AfdelingsdokumenterFraEG/01_503/Afdelingsm&#xF8;de/Indkaldelse/2021-08-25-Indkaldelse.pdf)
                                            [2020-09-08 Indkaldelse.pdf](https://bolignaestved.dk/p/Files/Boligdata/AfdelingsdokumenterFraEG/01_503/Afdelingsm&#xF8;de/Indkaldelse/2020-09-08-Indkaldelse.pdf)

###

                                                Forslag

[2025-08-28 Forslag.pdf](https://bolignaestved.dk/p/Files/Boligdata/AfdelingsdokumenterFraEG/01_503/Afdelingsm&#xF8;de/Forslag/2025-08-28-Forslag.pdf)
                                            [2024-08-27 Forslag.pdf](https://bolignaestved.dk/p/Files/Boligdata/AfdelingsdokumenterFraEG/01_503/Afdelingsm&#xF8;de/Forslag/2024-08-27-Forslag.pdf)
                                            [2023-08-29 Forslag.pdf](https://bolignaestved.dk/p/Files/Boligdata/AfdelingsdokumenterFraEG/01_503/Afdelingsm&#xF8;de/Forslag/2023-08-29-Forslag.pdf)
                                            [2022-08-31 Forslag.pdf](https://bolignaestved.dk/p/Files/Boligdata/AfdelingsdokumenterFraEG/01_503/Afdelingsm&#xF8;de/Forslag/2022-08-31-Forslag.pdf)
                                            [2021-08-25 Forslag.pdf](https://bolignaestved.dk/p/Files/Boligdata/AfdelingsdokumenterFraEG/01_503/Afdelingsm&#xF8;de/Forslag/2021-08-25-Forslag.pdf)
                                            [2020-09-08 Forslag.pdf](https://bolignaestved.dk/p/Files/Boligdata/AfdelingsdokumenterFraEG/01_503/Afdelingsm&#xF8;de/Forslag/2020-09-08-Forslag.pdf)

###

                                                Referat

[2025-08-28 Referat.pdf](https://bolignaestved.dk/p/Files/Boligdata/AfdelingsdokumenterFraEG/01_503/Afdelingsm&#xF8;de/Referat/2025-08-28-Referat.pdf)
                                            [2025-03-24 Referat ekstraordinært afd. møde.pdf](https://bolignaestved.dk/p/Files/Boligdata/AfdelingsdokumenterFraEG/01_503/Afdelingsm&#xF8;de/Referat/2025-03-24-Referat-ekstraordin&#xE6;rt-afd.-m&#xF8;de.pdf)
                                            [2024-08-27 Referat.pdf](https://bolignaestved.dk/p/Files/Boligdata/AfdelingsdokumenterFraEG/01_503/Afdelingsm&#xF8;de/Referat/2024-08-27-Referat.pdf)
                                            [2023-08-29 Referat.pdf](https://bolignaestved.dk/p/Files/Boligdata/AfdelingsdokumenterFraEG/01_503/Afdelingsm&#xF8;de/Referat/2023-08-29-Referat.pdf)
                                            [2023-06-22 Referat.pdf](https://bolignaestved.dk/p/Files/Boligdata/AfdelingsdokumenterFraEG/01_503/Afdelingsm&#xF8;de/Referat/2023-06-22-Referat.pdf)
                                            [2022-10-26 Referat ekstraordinært afd. møde.pdf](https://bolignaestved.dk/p/Files/Boligdata/AfdelingsdokumenterFraEG/01_503/Afdelingsm&#xF8;de/Referat/2022-10-26-Referat-ekstraordin&#xE6;rt-afd.-m&#xF8;de.pdf)
                                            [2022-08-31 Referat.pdf](https://bolignaestved.dk/p/Files/Boligdata/AfdelingsdokumenterFraEG/01_503/Afdelingsm&#xF8;de/Referat/2022-08-31-Referat.pdf)
                                            [2021-08-25 Referat.pdf](https://bolignaestved.dk/p/Files/Boligdata/AfdelingsdokumenterFraEG/01_503/Afdelingsm&#xF8;de/Referat/2021-08-25-Referat.pdf)
                                            [2020-09-08 Referat.pdf](https://bolignaestved.dk/p/Files/Boligdata/AfdelingsdokumenterFraEG/01_503/Afdelingsm&#xF8;de/Referat/2020-09-08-Referat.pdf)

## Afdelingens dokumenter

Her finder du nyttig information fra din afdeling, såsom budget, regnskab, ordensreglement m.m.

###

                                                Budget

[Budget 2026.pdf](https://bolignaestved.dk/p/Files/Boligdata/AfdelingsdokumenterFraEG/01_503/Afdelingens%20dokumenter/Budget/Budget-2026.pdf)
                                            [Budget 2025.pdf](https://bolignaestved.dk/p/Files/Boligdata/AfdelingsdokumenterFraEG/01_503/Afdelingens%20dokumenter/Budget/Budget-2025.pdf)
                                            [Budget 2024.pdf](https://bolignaestved.dk/p/Files/Boligdata/AfdelingsdokumenterFraEG/01_503/Afdelingens%20dokumenter/Budget/Budget-2024.pdf)
                                            [Budget 2023.pdf](https://bolignaestved.dk/p/Files/Boligdata/AfdelingsdokumenterFraEG/01_503/Afdelingens%20dokumenter/Budget/Budget-2023.pdf)
                                            [Budget 2022.pdf](https://bolignaestved.dk/p/Files/Boligdata/AfdelingsdokumenterFraEG/01_503/Afdelingens%20dokumenter/Budget/Budget-2022.pdf)

###

                                                Årsregnskab

[Årsregnskab 2025.pdf](https://bolignaestved.dk/p/Files/Boligdata/AfdelingsdokumenterFraEG/01_503/Afdelingens%20dokumenter/&#xC5;rsregnskab/&#xC5;rsregnskab-2025.pdf)
                                            [Årsregnskab 2024.pdf](https://bolignaestved.dk/p/Files/Boligdata/AfdelingsdokumenterFraEG/01_503/Afdelingens%20dokumenter/&#xC5;rsregnskab/&#xC5;rsregnskab-2024.pdf)
                                            [Årsregnskab 2023.pdf](https://bolignaestved.dk/p/Files/Boligdata/AfdelingsdokumenterFraEG/01_503/Afdelingens%20dokumenter/&#xC5;rsregnskab/&#xC5;rsregnskab-2023.pdf)
                                            [Årsregnskab 2022.pdf](https://bolignaestved.dk/p/Files/Boligdata/AfdelingsdokumenterFraEG/01_503/Afdelingens%20dokumenter/&#xC5;rsregnskab/&#xC5;rsregnskab-2022.pdf)
                                            [Årsregnskab 2021.pdf](https://bolignaestved.dk/p/Files/Boligdata/AfdelingsdokumenterFraEG/01_503/Afdelingens%20dokumenter/&#xC5;rsregnskab/&#xC5;rsregnskab-2021.pdf)

###

                                                Ordensreglement

[Ordensreglement.pdf](https://bolignaestved.dk/p/Files/Boligdata/AfdelingsdokumenterFraEG/01_503/Afdelingens%20dokumenter/Ordensreglement/Ordensreglement.pdf)

###

                                                Vedligeholdelsesreglement

[Vedligeholdelsesreglement.pdf](https://bolignaestved.dk/p/Files/Boligdata/AfdelingsdokumenterFraEG/01_503/Afdelingens%20dokumenter/Vedligeholdelsesreglement/Vedligeholdelsesreglement.pdf)

###

                                                Energimærke

[Energimærke afd. 503.pdf](https://bolignaestved.dk/p/Files/Boligdata/AfdelingsdokumenterFraEG/01_503/Afdelingens%20dokumenter/Energim&#xE6;rke/Energim&#xE6;rke-afd.-503.pdf)

###

                                                Andre dokumenter

[Vejledning ILOQ låsesystem.pdf](https://bolignaestved.dk/p/Files/Boligdata/AfdelingsdokumenterFraEG/01_503/Afdelingens%20dokumenter/Andre%20dokumenter/Vejledning-ILOQ-l&#xE5;sesystem.pdf)
                                            [Velkomstbrev Pay Per Wash.pdf](https://bolignaestved.dk/p/Files/Boligdata/AfdelingsdokumenterFraEG/01_503/Afdelingens%20dokumenter/Andre%20dokumenter/Velkomstbrev-Pay-Per-Wash.pdf)
                                            [Velkomstpjece.pdf](https://bolignaestved.dk/p/Files/Boligdata/AfdelingsdokumenterFraEG/01_503/Afdelingens%20dokumenter/Andre%20dokumenter/Velkomstpjece.pdf)

###

                                                Nyheder

[Ny legeplads.pdf](https://bolignaestved.dk/p/Files/Boligdata/AfdelingsdokumenterFraEG/01_503/Afdelingens%20dokumenter/Nyheder/Ny-legeplads.pdf)

## Afdelingsbestyrelse

Her finder du nyttig information fra afdelinsbestyrelse i din afdeling.

###

                                                Referat

[2024-06-04 Referat.pdf](https://bolignaestved.dk/p/Files/Boligdata/AfdelingsdokumenterFraEG/01_503/Afdelingsbestyrelse/Referat/2024-06-04-Referat.pdf)
                                            [2024-02-21 Referat.pdf](https://bolignaestved.dk/p/Files/Boligdata/AfdelingsdokumenterFraEG/01_503/Afdelingsbestyrelse/Referat/2024-02-21-Referat.pdf)
                                            [2023-09-08 Referat.pdf](https://bolignaestved.dk/p/Files/Boligdata/AfdelingsdokumenterFraEG/01_503/Afdelingsbestyrelse/Referat/2023-09-08-Referat.pdf)

## Placering
