---
title: "Afdeling 502 Bakkegården"
description: "1-502"
date: "2026-04-28"
created: "2025-09-25"
---

-
-
-
-
-
-

https://maps.google.dk/?q=55.2344381,11.7672388

# Afdeling 502 Bakkegården

Afdeling 502

## Velkommen til Afdeling 502 Bakkegården

Afdelingen er opført som etagebyggeri med i alt 48 lejligheder fordelt som 3 og 4 vær. Afdelingen ligger i et alsidigt boligkvarter tæt på skoler, institutioner og dagligvare butikker. Afdelingen ligger tæt på Næstved centrum, stationen og det rekreative/historiske område Munkebakken alt i gåafstand via gangbro. Boligerne indeholder køle/fryseskab, komfur og ikke andre hårde hvidevarer. Der er adgang til fælles vaskeri. Til hver bolig hører altan og kælderrum. Der er mulighed for at blive skrevet op til leje af garage.

## Fakta for afdelingen...

Altan/have

Ja

Altan

Antal/størrelse

Se mere

36 stk 3 rums 71 m2, 12 stk 4 rums 85 m2

Beboerhus

Nej

Byggeår

1951

Carport/garage

Ja

12 stk. garage

Elevator

Nej

Husdyrhold

Se mere

2 katte eller 1 hund

Hårde hvidevarer

Ja

Komfur, køleskab og ikke andre hårde hvidevarer.

Kælderrum/udhus

Ja

Kælderrum

Legeplads

Ja

Tv/Internet

Ja

Frit valg blandt udbydere af tv/internet

Vaskeri

Ja

Ventetider

Se mere

2 til 5 år

Ældreboliger/ungdomsboliger

Nej/Nej

                        Se flere

## Boliger i afdelingen

Familiebolig

3 værelses

Familiebolig

Familiebolig

4 værelses

Familiebolig

Boligtype

Værelser

Størrelse

Husleje u. forbrug

Indskud

Plantegning

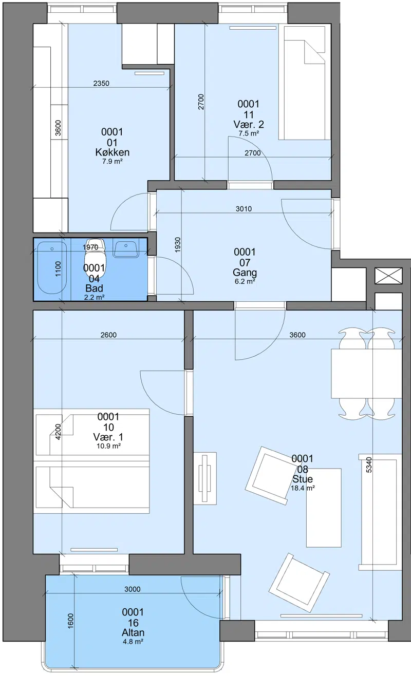
Familiebolig

3

71 m²

4785 kr.

19809 kr.

![](https://bolignaestved.dk/i/MOLIRIMEDIA/b4b090d6-8f31-461b-0ef0-08ddde57396d?width=800)

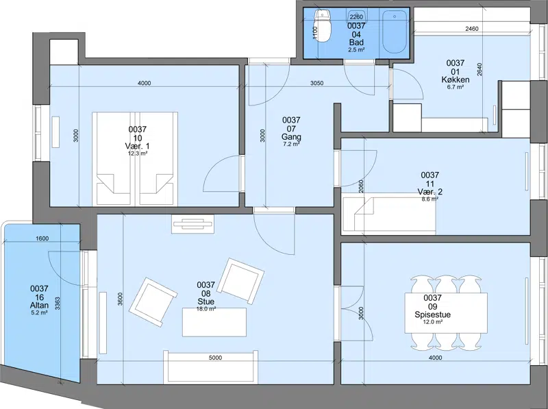
Familiebolig

4

85 m²

5693 kr.

23715 kr.

![](https://bolignaestved.dk/i/MOLIRIMEDIA/8b5cee5f-0609-4322-11c5-08ddde57396d?width=800)

## Driftscenter

### Kontakt dit driftscenter

Adresse:

Ejlersvej 34

4700 Næstved

55739357

ejlersvej@bolignaestved.dk

### Åbningstider

Telefonisk henvendelse:

Mandag - fredag kl 8.30-10.00

.............................................

Personlig henvendelse:

Kun efter forudgående aftale (bestil tid)

## Personale

### Claus Kuhre

Driftsleder

### David Mick Nielsen

Driftslederassistent

### Lene F. Nielsen

Kontormedarbejder

### Carsten Kirkebjerg

Ejendomsfunktionær

### Brian Søe Larsen

Ejendomsfunktionær

### Serhij Talatynnik

Ejendomsfunktionær

### Dariusz Jan Rybacki

Ejendomsfunktionær

### Henrik Jørgensen

Ejendomsfunktionær

## Bestyrelsen

Navn

Titel

Eva Rapp

Formand

Flemming Brandt

Medlem

Morten Blok

Medlem

Sanne Damgaard

Suppleant 1

Nicolai Rich

Suppleant 2

Kamile Satman

Suppleant 3

## Repræsentantskab

Navn

Titel

Eva Rapp

Medlem

## Afdelingsmøde

Her finder du nyttig information afdelingsmøder, såsom forslag, referater m.m.

###

                                                Forretningsorden

[Forretningsorden.pdf](https://bolignaestved.dk/p/Files/Boligdata/AfdelingsdokumenterFraEG/01_502/Afdelingsm&#xF8;de/Forretningsorden/Forretningsorden.pdf)

###

                                                Indkaldelse

[2025-09-23 Indkaldelse.pdf](https://bolignaestved.dk/p/Files/Boligdata/AfdelingsdokumenterFraEG/01_502/Afdelingsm&#xF8;de/Indkaldelse/2025-09-23-Indkaldelse.pdf)
                                            [2024-09-19 Indkaldelse.pdf](https://bolignaestved.dk/p/Files/Boligdata/AfdelingsdokumenterFraEG/01_502/Afdelingsm&#xF8;de/Indkaldelse/2024-09-19-Indkaldelse.pdf)
                                            [2023-09-26 Indkaldelse.pdf](https://bolignaestved.dk/p/Files/Boligdata/AfdelingsdokumenterFraEG/01_502/Afdelingsm&#xF8;de/Indkaldelse/2023-09-26-Indkaldelse.pdf)
                                            [2022-09-22 Indkaldelse.pdf](https://bolignaestved.dk/p/Files/Boligdata/AfdelingsdokumenterFraEG/01_502/Afdelingsm&#xF8;de/Indkaldelse/2022-09-22-Indkaldelse.pdf)
                                            [2021-08-31 Indkaldelse.pdf](https://bolignaestved.dk/p/Files/Boligdata/AfdelingsdokumenterFraEG/01_502/Afdelingsm&#xF8;de/Indkaldelse/2021-08-31-Indkaldelse.pdf)
                                            [2020-08-15 Indkaldelse.pdf](https://bolignaestved.dk/p/Files/Boligdata/AfdelingsdokumenterFraEG/01_502/Afdelingsm&#xF8;de/Indkaldelse/2020-08-15-Indkaldelse.pdf)

###

                                                Forslag

[2025-09-23 Forslag.pdf](https://bolignaestved.dk/p/Files/Boligdata/AfdelingsdokumenterFraEG/01_502/Afdelingsm&#xF8;de/Forslag/2025-09-23-Forslag.pdf)
                                            [2024-19-09 Forslag.pdf](https://bolignaestved.dk/p/Files/Boligdata/AfdelingsdokumenterFraEG/01_502/Afdelingsm&#xF8;de/Forslag/2024-19-09-Forslag.pdf)
                                            [2023-09-26 Forslag.pdf](https://bolignaestved.dk/p/Files/Boligdata/AfdelingsdokumenterFraEG/01_502/Afdelingsm&#xF8;de/Forslag/2023-09-26-Forslag.pdf)
                                            [2022-09-22 Forslag.pdf](https://bolignaestved.dk/p/Files/Boligdata/AfdelingsdokumenterFraEG/01_502/Afdelingsm&#xF8;de/Forslag/2022-09-22-Forslag.pdf)
                                            [2021-09-16 Forslag.pdf](https://bolignaestved.dk/p/Files/Boligdata/AfdelingsdokumenterFraEG/01_502/Afdelingsm&#xF8;de/Forslag/2021-09-16-Forslag.pdf)
                                            [2020-09-15 Forlag.pdf](https://bolignaestved.dk/p/Files/Boligdata/AfdelingsdokumenterFraEG/01_502/Afdelingsm&#xF8;de/Forslag/2020-09-15-Forlag.pdf)

###

                                                Referat

[2025-09-23 Referat.pdf](https://bolignaestved.dk/p/Files/Boligdata/AfdelingsdokumenterFraEG/01_502/Afdelingsm&#xF8;de/Referat/2025-09-23-Referat.pdf)
                                            [2024-09-19 Referat.pdf](https://bolignaestved.dk/p/Files/Boligdata/AfdelingsdokumenterFraEG/01_502/Afdelingsm&#xF8;de/Referat/2024-09-19-Referat.pdf)
                                            [2023-09-26 Referat.pdf](https://bolignaestved.dk/p/Files/Boligdata/AfdelingsdokumenterFraEG/01_502/Afdelingsm&#xF8;de/Referat/2023-09-26-Referat.pdf)
                                            [2022-09-22 Referat.pdf](https://bolignaestved.dk/p/Files/Boligdata/AfdelingsdokumenterFraEG/01_502/Afdelingsm&#xF8;de/Referat/2022-09-22-Referat.pdf)
                                            [2021-09-16 Referat.pdf](https://bolignaestved.dk/p/Files/Boligdata/AfdelingsdokumenterFraEG/01_502/Afdelingsm&#xF8;de/Referat/2021-09-16-Referat.pdf)
                                            [2020-09-15 Referat.pdf](https://bolignaestved.dk/p/Files/Boligdata/AfdelingsdokumenterFraEG/01_502/Afdelingsm&#xF8;de/Referat/2020-09-15-Referat.pdf)

## Afdelingens dokumenter

Her finder du nyttig information fra din afdeling, såsom budget, regnskab, ordensreglement m.m.

###

                                                Budget

[Budget 2026.pdf](https://bolignaestved.dk/p/Files/Boligdata/AfdelingsdokumenterFraEG/01_502/Afdelingens%20dokumenter/Budget/Budget-2026.pdf)
                                            [Budget 2025.pdf](https://bolignaestved.dk/p/Files/Boligdata/AfdelingsdokumenterFraEG/01_502/Afdelingens%20dokumenter/Budget/Budget-2025.pdf)
                                            [Budget 2024.pdf](https://bolignaestved.dk/p/Files/Boligdata/AfdelingsdokumenterFraEG/01_502/Afdelingens%20dokumenter/Budget/Budget-2024.pdf)
                                            [Budget 2022.pdf](https://bolignaestved.dk/p/Files/Boligdata/AfdelingsdokumenterFraEG/01_502/Afdelingens%20dokumenter/Budget/Budget-2022.pdf)

###

                                                Årsregnskab

[Årsregnskab 2025.pdf](https://bolignaestved.dk/p/Files/Boligdata/AfdelingsdokumenterFraEG/01_502/Afdelingens%20dokumenter/&#xC5;rsregnskab/&#xC5;rsregnskab-2025.pdf)
                                            [Årsregnskab 2024.pdf](https://bolignaestved.dk/p/Files/Boligdata/AfdelingsdokumenterFraEG/01_502/Afdelingens%20dokumenter/&#xC5;rsregnskab/&#xC5;rsregnskab-2024.pdf)
                                            [Årsregnskab 2023.pdf](https://bolignaestved.dk/p/Files/Boligdata/AfdelingsdokumenterFraEG/01_502/Afdelingens%20dokumenter/&#xC5;rsregnskab/&#xC5;rsregnskab-2023.pdf)
                                            [Årsregnskab 2022.pdf](https://bolignaestved.dk/p/Files/Boligdata/AfdelingsdokumenterFraEG/01_502/Afdelingens%20dokumenter/&#xC5;rsregnskab/&#xC5;rsregnskab-2022.pdf)
                                            [Årsregnskab 2021.pdf](https://bolignaestved.dk/p/Files/Boligdata/AfdelingsdokumenterFraEG/01_502/Afdelingens%20dokumenter/&#xC5;rsregnskab/&#xC5;rsregnskab-2021.pdf)

###

                                                Ordensreglement

[Ordensreglement.pdf](https://bolignaestved.dk/p/Files/Boligdata/AfdelingsdokumenterFraEG/01_502/Afdelingens%20dokumenter/Ordensreglement/Ordensreglement.pdf)

###

                                                Vedligeholdelsesreglement

[Vedligeholdelsesreglement.pdf](https://bolignaestved.dk/p/Files/Boligdata/AfdelingsdokumenterFraEG/01_502/Afdelingens%20dokumenter/Vedligeholdelsesreglement/Vedligeholdelsesreglement.pdf)

###

                                                Råderetskatalog

[Råderetsdokument.pdf](https://bolignaestved.dk/p/Files/Boligdata/AfdelingsdokumenterFraEG/01_502/Afdelingens%20dokumenter/R&#xE5;deretskatalog/R&#xE5;deretsdokument.pdf)

###

                                                Energimærke

[Energimærke afd. 502.pdf](https://bolignaestved.dk/p/Files/Boligdata/AfdelingsdokumenterFraEG/01_502/Afdelingens%20dokumenter/Energim&#xE6;rke/Energim&#xE6;rke-afd.-502.pdf)

###

                                                Andre dokumenter

[Velkomstbrev Pay Per Wash.pdf](https://bolignaestved.dk/p/Files/Boligdata/AfdelingsdokumenterFraEG/01_502/Afdelingens%20dokumenter/Andre%20dokumenter/Velkomstbrev-Pay-Per-Wash.pdf)
                                            [Velkomstpjece.pdf](https://bolignaestved.dk/p/Files/Boligdata/AfdelingsdokumenterFraEG/01_502/Afdelingens%20dokumenter/Andre%20dokumenter/Velkomstpjece.pdf)

## Afdelingsbestyrelse

Her finder du nyttig information fra afdelinsbestyrelse i din afdeling.

## Placering
