---
title: "Afdeling 314 Skovburren"
description: "1-314"
date: "2026-04-28"
created: "2025-09-25"
---

-
-
-
-
-
-
-
-
-
-
-
-
-
-
-

https://maps.google.dk/?q=55.240683,11.785157

# Afdeling 314 Skovburren

Afdeling 314

## Velkommen til Afdeling 314 Skovburren

Afdelingen består af rækkehuse med i alt 28 boliger fordelt som 2 vær. i 1 plan med bolig ovenpå og 44 boliger med 3 vær i 2 plan. Afdelingen ligger i et alsidigt boligkvarter tæt ved skoler, institutioner, dagligvarebutikker samt offentlig transport, alt tilgængeligt via et veludbygget stisystem samt gangbroer. Kalbyrisskoven er ligeledes i rimelig afstand. Boligerne indeholder komfur, emhætte og ikke andre hårde hvidevarer. Der er adgang til fælles vaskeri samt store grønne områder med legeplads. Til hver bolig hører egen mindre have og 1-2 udhuse.

## Fakta for afdelingen...

Altan/have

Ja

Have til alle boliger i stueplan

Antal/størrelse

Se mere

28 stk 2 rums 68,8 m2, 44 stk 3 rums 91 m2

Beboerhus

Ja

Byggeår

1997

Carport/garage

Nej

Elevator

Nej

Husdyrhold

Se mere

2 husdyr

Hårde hvidevarer

Ja

Komfur, emhætte og ikke andre hårde hvidevarer.

Kælderrum/udhus

Ja

Udhus

Legeplads

Ja

Tv/Internet

Ja

Frit valg blandt udbydere af tv/internet

Vaskeri

Ja

Ventetider

Se mere

2 til 5 år

Ældreboliger/ungdomsboliger

Nej/Nej

                        Se flere

## Boliger i afdelingen

Familiebolig

2 værelses

Familiebolig

Familiebolig

3 værelses

Familiebolig

Boligtype

Værelser

Størrelse

Husleje u. forbrug

Indskud

Plantegning

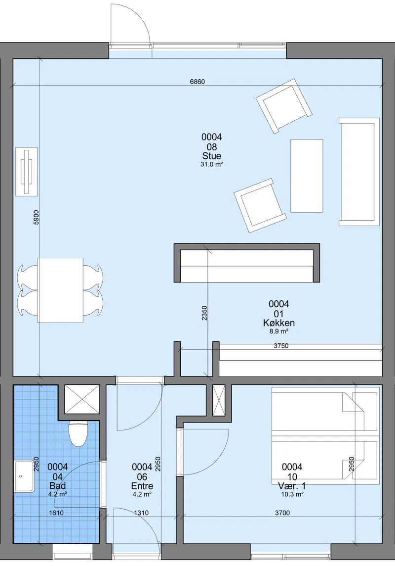
Familiebolig

2

68.85 m²

5642 kr.

19209 kr.

![](https://bolignaestved.dk/i/MOLIRIMEDIA/e463ff06-e1e3-4785-0b8a-08ddde57396d?width=800)

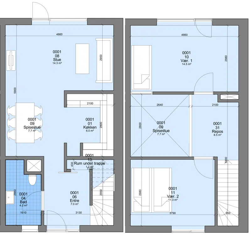
Familiebolig

3

91 m²

7458 kr.

25389 kr.

![](https://bolignaestved.dk/i/MOLIRIMEDIA/4d79b081-e14c-4614-0bfd-08ddde57396d?width=800)

## Driftscenter

### Kontakt dit driftscenter

Adresse:

Birkehegnet 334

4700 Næstved

55735215

birkehegnet@bolignaestved.dk

### Åbningstider

Telefonisk henvendelse:

Mandag - fredag kl. 8.30-10.00

.............................................

Personlig henvendelse:

Kun efter forudgående aftale (bestil tid)

## Personale

### Steen Harting Ibsen

Driftsleder

### Kim Trane Johansen

Driftslederassistent

### Ladigar Ôztürk

Kontormedarbejder

### Henrik Haar

Ejendomsfunktionær

### Henrik Christiansen

Ejendomsfunktionær

### Kenneth Steen Boiken Andersen

Ejendomsfunktionær

### Martin Teglgaard Wichmann

Ejendomsfunktionær

### Sadeq Khedri

Ejendomsfunktionær

### Bent Storch

Ejendomsfunktionær

### Muhidin Salihovic

Ejendomsfunktionær

## Bestyrelsen

Navn

Titel

Reno Ricardo Douglas Sommer

Formand

Janne Lyng Nielsson

Medlem

Charlotte Kjær

Medlem

Lene Mattsson

Suppleant 1

Nickolinne Nilsine Lotuz Thorup

Suppleant 2

## Repræsentantskab

Navn

Titel

Berit Schmøde

Medlem

Reno Ricardo Douglas Sommer

Suppleant 1

## Afdelingsmøde

Her finder du nyttig information afdelingsmøder, såsom forslag, referater m.m.

###

                                                Forretningsorden

[Forretningsorden.pdf](https://bolignaestved.dk/p/Files/Boligdata/AfdelingsdokumenterFraEG/01_314/Afdelingsm&#xF8;de/Forretningsorden/Forretningsorden.pdf)

###

                                                Indkaldelse

[2025-09-02 Indkaldelse.pdf](https://bolignaestved.dk/p/Files/Boligdata/AfdelingsdokumenterFraEG/01_314/Afdelingsm&#xF8;de/Indkaldelse/2025-09-02-Indkaldelse.pdf)
                                            [2025-03-26 Indkaldelse ekstraordinært afd. møde.pdf](https://bolignaestved.dk/p/Files/Boligdata/AfdelingsdokumenterFraEG/01_314/Afdelingsm&#xF8;de/Indkaldelse/2025-03-26-Indkaldelse-ekstraordin&#xE6;rt-afd.-m&#xF8;de.pdf)
                                            [2024-09-10 Indkaldelse.pdf](https://bolignaestved.dk/p/Files/Boligdata/AfdelingsdokumenterFraEG/01_314/Afdelingsm&#xF8;de/Indkaldelse/2024-09-10-Indkaldelse.pdf)
                                            [2023-11-21 Indkaldelse.pdf](https://bolignaestved.dk/p/Files/Boligdata/AfdelingsdokumenterFraEG/01_314/Afdelingsm&#xF8;de/Indkaldelse/2023-11-21-Indkaldelse.pdf)
                                            [2023-09-05 Indkaldelse.pdf](https://bolignaestved.dk/p/Files/Boligdata/AfdelingsdokumenterFraEG/01_314/Afdelingsm&#xF8;de/Indkaldelse/2023-09-05-Indkaldelse.pdf)
                                            [2022-09-15 Indkaldelse.pdf](https://bolignaestved.dk/p/Files/Boligdata/AfdelingsdokumenterFraEG/01_314/Afdelingsm&#xF8;de/Indkaldelse/2022-09-15-Indkaldelse.pdf)
                                            [2021-09-14 Indkaldelse.pdf](https://bolignaestved.dk/p/Files/Boligdata/AfdelingsdokumenterFraEG/01_314/Afdelingsm&#xF8;de/Indkaldelse/2021-09-14-Indkaldelse.pdf)
                                            [2020-09-09 Indkaldelse.pdf](https://bolignaestved.dk/p/Files/Boligdata/AfdelingsdokumenterFraEG/01_314/Afdelingsm&#xF8;de/Indkaldelse/2020-09-09-Indkaldelse.pdf)

###

                                                Forslag

[2025-09-02 Forslag.pdf](https://bolignaestved.dk/p/Files/Boligdata/AfdelingsdokumenterFraEG/01_314/Afdelingsm&#xF8;de/Forslag/2025-09-02-Forslag.pdf)
                                            [2024-09-10 Forslag.pdf](https://bolignaestved.dk/p/Files/Boligdata/AfdelingsdokumenterFraEG/01_314/Afdelingsm&#xF8;de/Forslag/2024-09-10-Forslag.pdf)
                                            [2023-09-05 Forslag.pdf](https://bolignaestved.dk/p/Files/Boligdata/AfdelingsdokumenterFraEG/01_314/Afdelingsm&#xF8;de/Forslag/2023-09-05-Forslag.pdf)
                                            [2022-09-15 Forslag.pdf](https://bolignaestved.dk/p/Files/Boligdata/AfdelingsdokumenterFraEG/01_314/Afdelingsm&#xF8;de/Forslag/2022-09-15-Forslag.pdf)
                                            [2021-09-14 Forslag.pdf](https://bolignaestved.dk/p/Files/Boligdata/AfdelingsdokumenterFraEG/01_314/Afdelingsm&#xF8;de/Forslag/2021-09-14-Forslag.pdf)
                                            [2020-09-09 Forslag.pdf](https://bolignaestved.dk/p/Files/Boligdata/AfdelingsdokumenterFraEG/01_314/Afdelingsm&#xF8;de/Forslag/2020-09-09-Forslag.pdf)

###

                                                Referat

[2025-09-02 Referat.pdf](https://bolignaestved.dk/p/Files/Boligdata/AfdelingsdokumenterFraEG/01_314/Afdelingsm&#xF8;de/Referat/2025-09-02-Referat.pdf)
                                            [2025-03-26 Referat.pdf](https://bolignaestved.dk/p/Files/Boligdata/AfdelingsdokumenterFraEG/01_314/Afdelingsm&#xF8;de/Referat/2025-03-26-Referat.pdf)
                                            [2024-09-10 Referat.pdf](https://bolignaestved.dk/p/Files/Boligdata/AfdelingsdokumenterFraEG/01_314/Afdelingsm&#xF8;de/Referat/2024-09-10-Referat.pdf)
                                            [2023-11-21 Referat.pdf](https://bolignaestved.dk/p/Files/Boligdata/AfdelingsdokumenterFraEG/01_314/Afdelingsm&#xF8;de/Referat/2023-11-21-Referat.pdf)
                                            [2023-10-24 Referat ekstraordinært afd. møde.pdf](https://bolignaestved.dk/p/Files/Boligdata/AfdelingsdokumenterFraEG/01_314/Afdelingsm&#xF8;de/Referat/2023-10-24-Referat-ekstraordin&#xE6;rt-afd.-m&#xF8;de.pdf)
                                            [2023-09-05 Referat.pdf](https://bolignaestved.dk/p/Files/Boligdata/AfdelingsdokumenterFraEG/01_314/Afdelingsm&#xF8;de/Referat/2023-09-05-Referat.pdf)
                                            [2022-09-15 Referat.pdf](https://bolignaestved.dk/p/Files/Boligdata/AfdelingsdokumenterFraEG/01_314/Afdelingsm&#xF8;de/Referat/2022-09-15-Referat.pdf)
                                            [2021-09-14 Referat.pdf](https://bolignaestved.dk/p/Files/Boligdata/AfdelingsdokumenterFraEG/01_314/Afdelingsm&#xF8;de/Referat/2021-09-14-Referat.pdf)
                                            [2020-09-09 Referat.pdf](https://bolignaestved.dk/p/Files/Boligdata/AfdelingsdokumenterFraEG/01_314/Afdelingsm&#xF8;de/Referat/2020-09-09-Referat.pdf)

## Afdelingens dokumenter

Her finder du nyttig information fra din afdeling, såsom budget, regnskab, ordensreglement m.m.

###

                                                Budget

[Budget 2026.pdf](https://bolignaestved.dk/p/Files/Boligdata/AfdelingsdokumenterFraEG/01_314/Afdelingens%20dokumenter/Budget/Budget-2026.pdf)
                                            [Budget 2025.pdf](https://bolignaestved.dk/p/Files/Boligdata/AfdelingsdokumenterFraEG/01_314/Afdelingens%20dokumenter/Budget/Budget-2025.pdf)
                                            [Budget 2024.pdf](https://bolignaestved.dk/p/Files/Boligdata/AfdelingsdokumenterFraEG/01_314/Afdelingens%20dokumenter/Budget/Budget-2024.pdf)
                                            [Budget 2023.pdf](https://bolignaestved.dk/p/Files/Boligdata/AfdelingsdokumenterFraEG/01_314/Afdelingens%20dokumenter/Budget/Budget-2023.pdf)
                                            [Budget 2022.pdf](https://bolignaestved.dk/p/Files/Boligdata/AfdelingsdokumenterFraEG/01_314/Afdelingens%20dokumenter/Budget/Budget-2022.pdf)

###

                                                Årsregnskab

[Årsregnskab 2025.pdf](https://bolignaestved.dk/p/Files/Boligdata/AfdelingsdokumenterFraEG/01_314/Afdelingens%20dokumenter/&#xC5;rsregnskab/&#xC5;rsregnskab-2025.pdf)
                                            [Årsregnskab 2024.pdf](https://bolignaestved.dk/p/Files/Boligdata/AfdelingsdokumenterFraEG/01_314/Afdelingens%20dokumenter/&#xC5;rsregnskab/&#xC5;rsregnskab-2024.pdf)
                                            [Årsregnskab 2023.pdf](https://bolignaestved.dk/p/Files/Boligdata/AfdelingsdokumenterFraEG/01_314/Afdelingens%20dokumenter/&#xC5;rsregnskab/&#xC5;rsregnskab-2023.pdf)
                                            [Årsregnskab 2022.pdf](https://bolignaestved.dk/p/Files/Boligdata/AfdelingsdokumenterFraEG/01_314/Afdelingens%20dokumenter/&#xC5;rsregnskab/&#xC5;rsregnskab-2022.pdf)
                                            [Årsregnskab 2021.pdf](https://bolignaestved.dk/p/Files/Boligdata/AfdelingsdokumenterFraEG/01_314/Afdelingens%20dokumenter/&#xC5;rsregnskab/&#xC5;rsregnskab-2021.pdf)

###

                                                Ordensreglement

[Ordensreglement.pdf](https://bolignaestved.dk/p/Files/Boligdata/AfdelingsdokumenterFraEG/01_314/Afdelingens%20dokumenter/Ordensreglement/Ordensreglement.pdf)

###

                                                Vedligeholdelsesreglement

[Vedligeholdelsesreglement.pdf](https://bolignaestved.dk/p/Files/Boligdata/AfdelingsdokumenterFraEG/01_314/Afdelingens%20dokumenter/Vedligeholdelsesreglement/Vedligeholdelsesreglement.pdf)

###

                                                Råderetskatalog

[Råderetskatalog.pdf](https://bolignaestved.dk/p/Files/Boligdata/AfdelingsdokumenterFraEG/01_314/Afdelingens%20dokumenter/R&#xE5;deretskatalog/R&#xE5;deretskatalog.pdf)

###

                                                Energimærke

[Energimærke.pdf](https://bolignaestved.dk/p/Files/Boligdata/AfdelingsdokumenterFraEG/01_314/Afdelingens%20dokumenter/Energim&#xE6;rke/Energim&#xE6;rke.pdf)

###

                                                Andre dokumenter

[Trailer til udlån.pdf](https://bolignaestved.dk/p/Files/Boligdata/AfdelingsdokumenterFraEG/01_314/Afdelingens%20dokumenter/Andre%20dokumenter/Trailer-til-udl&#xE5;n.pdf)
                                            [Vejledning ILOQ låsesystem.pdf](https://bolignaestved.dk/p/Files/Boligdata/AfdelingsdokumenterFraEG/01_314/Afdelingens%20dokumenter/Andre%20dokumenter/Vejledning-ILOQ-l&#xE5;sesystem.pdf)
                                            [Velkomstpjece.pdf](https://bolignaestved.dk/p/Files/Boligdata/AfdelingsdokumenterFraEG/01_314/Afdelingens%20dokumenter/Andre%20dokumenter/Velkomstpjece.pdf)

## Afdelingsbestyrelse

Her finder du nyttig information fra afdelinsbestyrelse i din afdeling.

###

                                                Referat

[2023-10-17 Referat.pdf](https://bolignaestved.dk/p/Files/Boligdata/AfdelingsdokumenterFraEG/01_314/Afdelingsbestyrelse/Referat/2023-10-17-Referat.pdf)
                                            [2023-09-28 Referat.pdf](https://bolignaestved.dk/p/Files/Boligdata/AfdelingsdokumenterFraEG/01_314/Afdelingsbestyrelse/Referat/2023-09-28-Referat.pdf)
                                            [2023-09-07 Referat.pdf](https://bolignaestved.dk/p/Files/Boligdata/AfdelingsdokumenterFraEG/01_314/Afdelingsbestyrelse/Referat/2023-09-07-Referat.pdf)
                                            [2023-03-01 Referat.pdf](https://bolignaestved.dk/p/Files/Boligdata/AfdelingsdokumenterFraEG/01_314/Afdelingsbestyrelse/Referat/2023-03-01-Referat.pdf)
                                            [2023-02-01 Referat.pdf](https://bolignaestved.dk/p/Files/Boligdata/AfdelingsdokumenterFraEG/01_314/Afdelingsbestyrelse/Referat/2023-02-01-Referat.pdf)
                                            [2022-10-11 Referat.pdf](https://bolignaestved.dk/p/Files/Boligdata/AfdelingsdokumenterFraEG/01_314/Afdelingsbestyrelse/Referat/2022-10-11-Referat.pdf)
                                            [2022-09-22 Referat.pdf](https://bolignaestved.dk/p/Files/Boligdata/AfdelingsdokumenterFraEG/01_314/Afdelingsbestyrelse/Referat/2022-09-22-Referat.pdf)

## Placering
