---
title: "Afdeling 313 Holsted Nord"
description: "1-313"
date: "2026-04-24"
created: "2025-09-25"
---

-
-
-
-
-
-
-
-
-
-
-
-
-
-
-

https://maps.google.dk/?q=55.2570133,11.7633163

# Afdeling 313 Holsted Nord

Afdeling 313

## Velkommen til Afdeling 313 Holsted Nord

Afdelingen består af 130 boliger, fordelt på 1-rums ungdomsboliger, 2-rums ældreboliger som udlejes via Næstved Kommune´s myndighedsafdeling og visitation samt 2-, 3- og 4 rums familieboliger fordelt som hhv. rækkehuse i 1 og 1½ plan samt enkelte 1. salslejligheder i 1 plan. Boligerne er beliggende på henholdsvis Niels W. Gades vej, H.C. Lumbyes Vej samt på Fagotvej. Boligerne indeholder køle/fryseskab, komfur, emhætte og ikke andre hårde hvidevarer. I afdelingen forefindes fællesvaskeri samt flotte fællesarealer med legepladser .Til hver bolig hører egen mindre have samt udhus. Undtaget 1. sals boliger på Fagotvej, disse har altan. Afdelingen ligger tæt på skole, institution, dagligvarebutik, Næstved Storcenter og offentlig transport, alt tilgængeligt via veludbygget stisystem. Tæt ved forefindes stort rekreativt område.

OBS: I ungdomsboligerne betales ikke indskud, men derimod depositum, hvorfor der ikke kan søges om indskudslån.

## Fakta for afdelingen...

Altan/have

Ja

Niels W. Gades Vej og H.C. Lumbyesvej:
Der hører have til hver bolig.

Fagotvej:
Der hører have til stuelejligheder.
Der hører altan til 1. sals lejligheder.

Antal/størrelse

Se mere

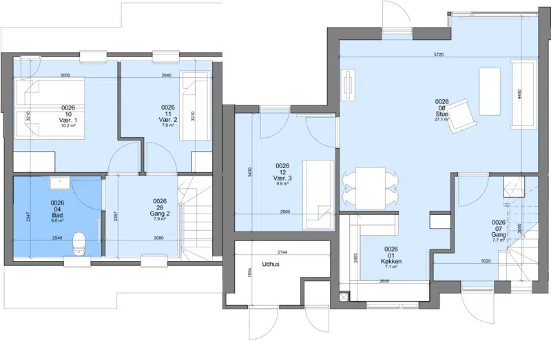
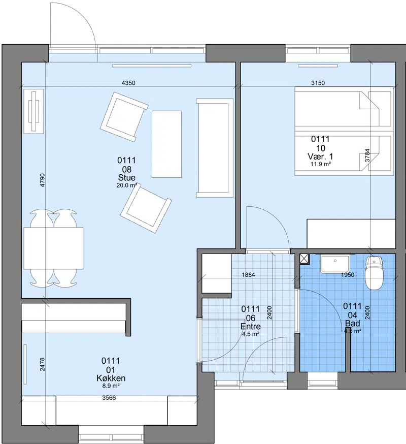
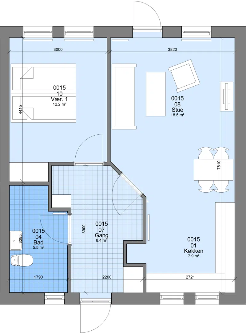
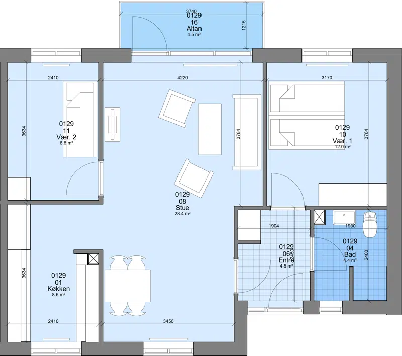
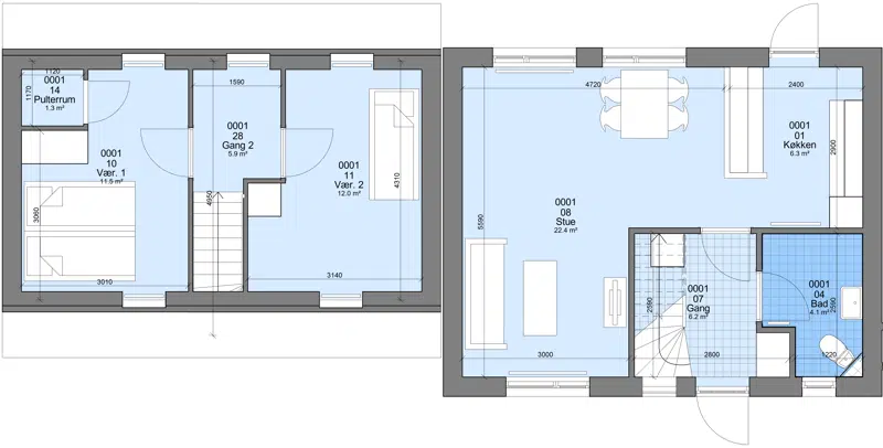
Gl. afd: 34 stk 2 rums 63,4 m2, 30 stk 3 rums 81,4 m2, 11 stk 4 rums 95,6 m2. Ny afd: 10 stk 2 rums 64,2-70,1 m2, 9 stk 3 rums 78,8-93,6 m2, 6 stk 4 rums 93,1 m2

Beboerhus

Ja

Byggeår

1988-1989 og 2004

Carport/garage

Nej

Elevator

Nej

Husdyrhold

Se mere

Familie bolig: 2 husdyr Ungdomsbolig: 2 husdyr

Hårde hvidevarer

Ja

Køle/fryseskab, komfur, emhætte og ikke andre hårde hvidevarer.

Kælderrum/udhus

Ja

Der hører udhus til hver bolig

Legeplads

Ja

Tv/Internet

Ja

Frit valg blandt udbydere af tv/internet

Vaskeri

Ja

Ventetider

Se mere

2 til 5 år

Ældreboliger/ungdomsboliger

Se mere

18 stk. ældreboliger, visiteres af Næstved Kommune.
12 stk. ungdomsboliger.

                        Se flere

## Boliger i afdelingen

Ungdomsboliger

1 værelses

Ungdomsboliger

Familiebolig

2 værelses

Familiebolig

Ældreboliger

2 værelses

Ældreboliger

Familiebolig

3 værelses

Familiebolig

Familiebolig

4 værelses

Familiebolig

Boligtype

Værelser

Størrelse

Husleje u. forbrug

Indskud

Plantegning

Familiebolig

2

64.2 m²

6239 kr.

18221 kr.

![](https://bolignaestved.dk/i/MOLIRIMEDIA/fa9366df-c3ab-4409-0cbb-08ddde57396d?width=800)

Familiebolig

2

70.1 m²

6812 kr.

19895 kr.

![](https://bolignaestved.dk/i/MOLIRIMEDIA/d6bdf8bc-fa51-4b7f-0b01-08ddde57396d?width=800)

Familiebolig

2

63.45 m²

5677 kr.

17703 kr.

![](https://bolignaestved.dk/i/MOLIRIMEDIA/d0a18eab-d01a-445f-0901-08ddde57396d?width=800)

Familiebolig

3

83.5 m²

8111 kr.

23698 kr.

![](https://bolignaestved.dk/i/MOLIRIMEDIA/d7384394-aeb5-457b-095f-08ddde57396d?width=800)

Familiebolig

3

93.6 m²

9094 kr.

26565 kr.

![](https://bolignaestved.dk/i/MOLIRIMEDIA/e969c308-7b22-4393-0c73-08ddde57396d?width=800)

Familiebolig

3

78.8 m²

7655 kr.

22364 kr.

![](https://bolignaestved.dk/i/MOLIRIMEDIA/5997ec26-bc0a-4d0d-11b5-08ddde57396d?width=800)

Familiebolig

3

81.48 m²

7280 kr.

22733 kr.

![](https://bolignaestved.dk/i/MOLIRIMEDIA/1498b358-3c00-4eae-0e55-08ddde57396d?width=800)

Familiebolig

4

93.1 m²

9043 kr.

26423 kr.

![](https://bolignaestved.dk/i/MOLIRIMEDIA/274a306d-5832-4f83-0c97-08ddde57396d?width=800)

Familiebolig

4

95.66 m²

8545 kr.

26689 kr.

![](https://bolignaestved.dk/i/MOLIRIMEDIA/8e71c03d-b5cf-49ec-084a-08ddde57396d?width=800)

Ungdomsboliger

1

29.96 m²

2469 kr.

8359 kr.

![](https://bolignaestved.dk/i/MOLIRIMEDIA/52464bff-7d76-4634-09d3-08ddde57396d?width=800)

Ældreboliger

2

62.43 m²

5608 kr.

17418 kr.

![](https://bolignaestved.dk/i/MOLIRIMEDIA/96917880-03cc-4daf-0935-08ddde57396d?width=800)

## Driftscenter

### Kontakt dit driftscenter

Adresse:

Fodbygårdsvej 16

4700 Næstved

55723497

fodbygaardsvej@bolignaestved.dk

### Åbningstider

Telefonisk henvendelse:

Mandag - fredag kl 8.30-10.00

.............................................

Personlig henvendelse:

Kun efter forudgående aftale (bestil tid)

## Personale

### Jacob Clausen

Driftsleder

### Hans-Henrik Friis Jørgensen

Driftslederassistent

### Gitte Jacobsen

Kontormedarbejder

### Per Larsen

Ejendomsfunktionær

### Sigurdur R. Gislason

Ejendomsfunktionær

### Morten Ambus

Ejendomsfunktionær

### Benny Jensen

Ejendomsfunktionær

### Claus Ove Pedersen

Ejendomsfunktionær

### Jens-Jørgen Klausen

Ejendomsfunktionær

### Bo Pedersen

Ejendomsfunktionær

## Bestyrelsen

Navn

Titel

Helle Friis

Formand

Jane Lohse

Medlem

Karina Jørgensen

Medlem

Kasper Bruselius

Suppleant 1

## Repræsentantskab

Navn

Titel

Jane Lohse

Medlem

Karina Jørgensen

Medlem

Helle Friis

Suppleant 1

## Afdelingsmøde

Her finder du nyttig information afdelingsmøder, såsom forslag, referater m.m.

###

                                                Forretningsorden

[Forretningsorden.pdf](https://bolignaestved.dk/p/Files/Boligdata/AfdelingsdokumenterFraEG/01_313/Afdelingsm&#xF8;de/Forretningsorden/Forretningsorden.pdf)

###

                                                Indkaldelse

[2025-11-25 Indkaldelse.pdf](https://bolignaestved.dk/p/Files/Boligdata/AfdelingsdokumenterFraEG/01_313/Afdelingsm&#xF8;de/Indkaldelse/2025-11-25-Indkaldelse.pdf)
                                            [2025-09-02 Indkaldelse.pdf](https://bolignaestved.dk/p/Files/Boligdata/AfdelingsdokumenterFraEG/01_313/Afdelingsm&#xF8;de/Indkaldelse/2025-09-02-Indkaldelse.pdf)
                                            [2024-09-05 Indkaldelse.pdf](https://bolignaestved.dk/p/Files/Boligdata/AfdelingsdokumenterFraEG/01_313/Afdelingsm&#xF8;de/Indkaldelse/2024-09-05-Indkaldelse.pdf)
                                            [2023-09-06 Indkaldelse.pdf](https://bolignaestved.dk/p/Files/Boligdata/AfdelingsdokumenterFraEG/01_313/Afdelingsm&#xF8;de/Indkaldelse/2023-09-06-Indkaldelse.pdf)
                                            [2022-09-07 Indkaldelse.pdf](https://bolignaestved.dk/p/Files/Boligdata/AfdelingsdokumenterFraEG/01_313/Afdelingsm&#xF8;de/Indkaldelse/2022-09-07-Indkaldelse.pdf)
                                            [2022-02-22 Indkaldelse ekstra ordinært afd. møde.pdf](https://bolignaestved.dk/p/Files/Boligdata/AfdelingsdokumenterFraEG/01_313/Afdelingsm&#xF8;de/Indkaldelse/2022-02-22-Indkaldelse-ekstra-ordin&#xE6;rt-afd.-m&#xF8;de.pdf)
                                            [2021-12-08 Ekstraordinært afdelingsmøde.pdf](https://bolignaestved.dk/p/Files/Boligdata/AfdelingsdokumenterFraEG/01_313/Afdelingsm&#xF8;de/Indkaldelse/2021-12-08-Ekstraordin&#xE6;rt-afdelingsm&#xF8;de.pdf)
                                            [2021-09-07 Indkaldelse.pdf](https://bolignaestved.dk/p/Files/Boligdata/AfdelingsdokumenterFraEG/01_313/Afdelingsm&#xF8;de/Indkaldelse/2021-09-07-Indkaldelse.pdf)
                                            [2020-09-03 Indkaldelse.pdf](https://bolignaestved.dk/p/Files/Boligdata/AfdelingsdokumenterFraEG/01_313/Afdelingsm&#xF8;de/Indkaldelse/2020-09-03-Indkaldelse.pdf)

###

                                                Forslag

[2025-09-02 Forslag.pdf](https://bolignaestved.dk/p/Files/Boligdata/AfdelingsdokumenterFraEG/01_313/Afdelingsm&#xF8;de/Forslag/2025-09-02-Forslag.pdf)
                                            [2024-09-05 Forslag.pdf](https://bolignaestved.dk/p/Files/Boligdata/AfdelingsdokumenterFraEG/01_313/Afdelingsm&#xF8;de/Forslag/2024-09-05-Forslag.pdf)
                                            [2023-09-06 Forslag.pdf](https://bolignaestved.dk/p/Files/Boligdata/AfdelingsdokumenterFraEG/01_313/Afdelingsm&#xF8;de/Forslag/2023-09-06-Forslag.pdf)
                                            [2022-09-07 Forslag.pdf](https://bolignaestved.dk/p/Files/Boligdata/AfdelingsdokumenterFraEG/01_313/Afdelingsm&#xF8;de/Forslag/2022-09-07-Forslag.pdf)
                                            [2021-09-07 Forslag.pdf](https://bolignaestved.dk/p/Files/Boligdata/AfdelingsdokumenterFraEG/01_313/Afdelingsm&#xF8;de/Forslag/2021-09-07-Forslag.pdf)
                                            [2020-09-03 Forslag.pdf](https://bolignaestved.dk/p/Files/Boligdata/AfdelingsdokumenterFraEG/01_313/Afdelingsm&#xF8;de/Forslag/2020-09-03-Forslag.pdf)

###

                                                Referat

[2025-11-25 Referat.pdf](https://bolignaestved.dk/p/Files/Boligdata/AfdelingsdokumenterFraEG/01_313/Afdelingsm&#xF8;de/Referat/2025-11-25-Referat.pdf)
                                            [2025-09-02 Referat.pdf](https://bolignaestved.dk/p/Files/Boligdata/AfdelingsdokumenterFraEG/01_313/Afdelingsm&#xF8;de/Referat/2025-09-02-Referat.pdf)
                                            [2024-09-05 Referat.pdf](https://bolignaestved.dk/p/Files/Boligdata/AfdelingsdokumenterFraEG/01_313/Afdelingsm&#xF8;de/Referat/2024-09-05-Referat.pdf)
                                            [2023-09-06 Referat.pdf](https://bolignaestved.dk/p/Files/Boligdata/AfdelingsdokumenterFraEG/01_313/Afdelingsm&#xF8;de/Referat/2023-09-06-Referat.pdf)
                                            [2022-09-07 Referat.pdf](https://bolignaestved.dk/p/Files/Boligdata/AfdelingsdokumenterFraEG/01_313/Afdelingsm&#xF8;de/Referat/2022-09-07-Referat.pdf)
                                            [2022-02-22 Referat.pdf](https://bolignaestved.dk/p/Files/Boligdata/AfdelingsdokumenterFraEG/01_313/Afdelingsm&#xF8;de/Referat/2022-02-22-Referat.pdf)
                                            [2021-09-07 Referat.pdf](https://bolignaestved.dk/p/Files/Boligdata/AfdelingsdokumenterFraEG/01_313/Afdelingsm&#xF8;de/Referat/2021-09-07-Referat.pdf)
                                            [2020-09-03 Referat.pdf](https://bolignaestved.dk/p/Files/Boligdata/AfdelingsdokumenterFraEG/01_313/Afdelingsm&#xF8;de/Referat/2020-09-03-Referat.pdf)

## Afdelingens dokumenter

Her finder du nyttig information fra din afdeling, såsom budget, regnskab, ordensreglement m.m.

###

                                                Budget

[Budget 2026.pdf](https://bolignaestved.dk/p/Files/Boligdata/AfdelingsdokumenterFraEG/01_313/Afdelingens%20dokumenter/Budget/Budget-2026.pdf)
                                            [Budget 2025.pdf](https://bolignaestved.dk/p/Files/Boligdata/AfdelingsdokumenterFraEG/01_313/Afdelingens%20dokumenter/Budget/Budget-2025.pdf)
                                            [Budget 2024.pdf](https://bolignaestved.dk/p/Files/Boligdata/AfdelingsdokumenterFraEG/01_313/Afdelingens%20dokumenter/Budget/Budget-2024.pdf)
                                            [Budget 2023.pdf](https://bolignaestved.dk/p/Files/Boligdata/AfdelingsdokumenterFraEG/01_313/Afdelingens%20dokumenter/Budget/Budget-2023.pdf)
                                            [Budget 2022.pdf](https://bolignaestved.dk/p/Files/Boligdata/AfdelingsdokumenterFraEG/01_313/Afdelingens%20dokumenter/Budget/Budget-2022.pdf)

###

                                                Årsregnskab

[Årsregnskab 2025.pdf](https://bolignaestved.dk/p/Files/Boligdata/AfdelingsdokumenterFraEG/01_313/Afdelingens%20dokumenter/&#xC5;rsregnskab/&#xC5;rsregnskab-2025.pdf)
                                            [Årsregnskab 2024.pdf](https://bolignaestved.dk/p/Files/Boligdata/AfdelingsdokumenterFraEG/01_313/Afdelingens%20dokumenter/&#xC5;rsregnskab/&#xC5;rsregnskab-2024.pdf)
                                            [Årsregnskab 2023.pdf](https://bolignaestved.dk/p/Files/Boligdata/AfdelingsdokumenterFraEG/01_313/Afdelingens%20dokumenter/&#xC5;rsregnskab/&#xC5;rsregnskab-2023.pdf)
                                            [Årsregnskab 2022.pdf](https://bolignaestved.dk/p/Files/Boligdata/AfdelingsdokumenterFraEG/01_313/Afdelingens%20dokumenter/&#xC5;rsregnskab/&#xC5;rsregnskab-2022.pdf)
                                            [Årsregnskab 2021.pdf](https://bolignaestved.dk/p/Files/Boligdata/AfdelingsdokumenterFraEG/01_313/Afdelingens%20dokumenter/&#xC5;rsregnskab/&#xC5;rsregnskab-2021.pdf)

###

                                                Ordensreglement

[Ordensreglement.pdf](https://bolignaestved.dk/p/Files/Boligdata/AfdelingsdokumenterFraEG/01_313/Afdelingens%20dokumenter/Ordensreglement/Ordensreglement.pdf)

###

                                                Vedligeholdelsesreglement

[Vedligeholdelsesreglement.pdf](https://bolignaestved.dk/p/Files/Boligdata/AfdelingsdokumenterFraEG/01_313/Afdelingens%20dokumenter/Vedligeholdelsesreglement/Vedligeholdelsesreglement.pdf)

###

                                                Råderetskatalog

[Råderetskatalog.pdf](https://bolignaestved.dk/p/Files/Boligdata/AfdelingsdokumenterFraEG/01_313/Afdelingens%20dokumenter/R&#xE5;deretskatalog/R&#xE5;deretskatalog.pdf)

###

                                                Energimærke

[Energimærke, NWG 140.pdf](https://bolignaestved.dk/p/Files/Boligdata/AfdelingsdokumenterFraEG/01_313/Afdelingens%20dokumenter/Energim&#xE6;rke/Energim&#xE6;rke--NWG-140.pdf)
                                            [Energimærke Fagotvej 79-87.pdf](https://bolignaestved.dk/p/Files/Boligdata/AfdelingsdokumenterFraEG/01_313/Afdelingens%20dokumenter/Energim&#xE6;rke/Energim&#xE6;rke-Fagotvej-79-87.pdf)
                                            [Energimærke Fagotvej 89-119.pdf](https://bolignaestved.dk/p/Files/Boligdata/AfdelingsdokumenterFraEG/01_313/Afdelingens%20dokumenter/Energim&#xE6;rke/Energim&#xE6;rke-Fagotvej-89-119.pdf)
                                            [Energimærke HCL 22-27, 44-51, 70-74.pdf](https://bolignaestved.dk/p/Files/Boligdata/AfdelingsdokumenterFraEG/01_313/Afdelingens%20dokumenter/Energim&#xE6;rke/Energim&#xE6;rke-HCL-22-27--44-51--70-74.pdf)
                                            [Energimærke NWG 141.pdf](https://bolignaestved.dk/p/Files/Boligdata/AfdelingsdokumenterFraEG/01_313/Afdelingens%20dokumenter/Energim&#xE6;rke/Energim&#xE6;rke-NWG-141.pdf)
                                            [Energimærke NWG 47-59, 66-68.pdf](https://bolignaestved.dk/p/Files/Boligdata/AfdelingsdokumenterFraEG/01_313/Afdelingens%20dokumenter/Energim&#xE6;rke/Energim&#xE6;rke-NWG-47-59--66-68.pdf)
                                            [Energimærke NWG 64-65.pdf](https://bolignaestved.dk/p/Files/Boligdata/AfdelingsdokumenterFraEG/01_313/Afdelingens%20dokumenter/Energim&#xE6;rke/Energim&#xE6;rke-NWG-64-65.pdf)
                                            [Energimærke NWG 69-71, 101-107, 112-119 + 144-146.pdf](https://bolignaestved.dk/p/Files/Boligdata/AfdelingsdokumenterFraEG/01_313/Afdelingens%20dokumenter/Energim&#xE6;rke/Energim&#xE6;rke-NWG-69-71--101-107--112-119---144-146.pdf)
                                            [Energimærke NWG 77-78, 97-100, 108-111, 120-121, 123-126, 128-139, 142-143.pdf](https://bolignaestved.dk/p/Files/Boligdata/AfdelingsdokumenterFraEG/01_313/Afdelingens%20dokumenter/Energim&#xE6;rke/Energim&#xE6;rke-NWG-77-78--97-100--108-111--120-121--123-126--128-139--142-143.pdf)
                                            [Energimærke NWG 84-95.pdf](https://bolignaestved.dk/p/Files/Boligdata/AfdelingsdokumenterFraEG/01_313/Afdelingens%20dokumenter/Energim&#xE6;rke/Energim&#xE6;rke-NWG-84-95.pdf)
                                            [Energimærke NWG 96, 122, 127 + HCL 21 + 28.pdf](https://bolignaestved.dk/p/Files/Boligdata/AfdelingsdokumenterFraEG/01_313/Afdelingens%20dokumenter/Energim&#xE6;rke/Energim&#xE6;rke-NWG-96--122--127---HCL-21---28.pdf)

###

                                                Andre dokumenter

[Storskraldsordning.pdf](https://bolignaestved.dk/p/Files/Boligdata/AfdelingsdokumenterFraEG/01_313/Afdelingens%20dokumenter/Andre%20dokumenter/Storskraldsordning.pdf)
                                            [Vejledning ILOQ låsesystem.pdf](https://bolignaestved.dk/p/Files/Boligdata/AfdelingsdokumenterFraEG/01_313/Afdelingens%20dokumenter/Andre%20dokumenter/Vejledning-ILOQ-l&#xE5;sesystem.pdf)
                                            [Vejledning vedr. påfyldning af vand på gasfyr.pdf](https://bolignaestved.dk/p/Files/Boligdata/AfdelingsdokumenterFraEG/01_313/Afdelingens%20dokumenter/Andre%20dokumenter/Vejledning-vedr.-p&#xE5;fyldning-af-vand-p&#xE5;-gasfyr.pdf)
                                            [Velkomstpjece.pdf](https://bolignaestved.dk/p/Files/Boligdata/AfdelingsdokumenterFraEG/01_313/Afdelingens%20dokumenter/Andre%20dokumenter/Velkomstpjece.pdf)

## Afdelingsbestyrelse

Her finder du nyttig information fra afdelinsbestyrelse i din afdeling.

###

                                                Referat

[2025-11-13 Referat.pdf](https://bolignaestved.dk/p/Files/Boligdata/AfdelingsdokumenterFraEG/01_313/Afdelingsbestyrelse/Referat/2025-11-13-Referat.pdf)
                                            [2022-05-15 Referat.pdf](https://bolignaestved.dk/p/Files/Boligdata/AfdelingsdokumenterFraEG/01_313/Afdelingsbestyrelse/Referat/2022-05-15-Referat.pdf)
                                            [2021-12-01 Referat.pdf](https://bolignaestved.dk/p/Files/Boligdata/AfdelingsdokumenterFraEG/01_313/Afdelingsbestyrelse/Referat/2021-12-01-Referat.pdf)
                                            [2021-10-11 Referat.pdf](https://bolignaestved.dk/p/Files/Boligdata/AfdelingsdokumenterFraEG/01_313/Afdelingsbestyrelse/Referat/2021-10-11-Referat.pdf)

## Placering
