---
title: "Afdeling 311 Appenæs"
description: "1-311"
date: "2026-04-28"
created: "2025-09-25"
---

-
-
-
-
-
-

https://maps.google.dk/?q=55.1951186,11.7475819

# Afdeling 311 Appenæs

Afdeling 311

## Velkommen til Afdeling 311 Appenæs

Afdelingen består af rækkehuse med i alt 14 boliger fordelt som 2 vær i 1 plan og 3 vær i 2 plan. Afdelingen ligger med rimelig afstand til skole, institution, og offentlig transport i det hyggelige Appenæs ca. 5 km syd for Næstved centrum. I nærområdet forefindes skov, Karrebæk Fjord, marker, Jacobs Havn og Gavnø Slot med rig mulighed for gode naturoplevelser. Boligerne indeholder køle/fryseskab, komfur, emhætte og ikke andre hårde hvidevarer. Afdelingen har en del grønne områder med legepladser. Til hver bolig hører egen mindre have samt udhus.

## Fakta for afdelingen...

Altan/have

Ja

Have

Antal/størrelse

Se mere

6 stk 2 rums 64,3 m2, 8 stk 3 rums 81 m2

Beboerhus

Nej

Byggeår

1984

Carport/garage

Ja

Der er mulighed for at leje carport

Elevator

Nej

Husdyrhold

Se mere

1 husdyr

Hårde hvidevarer

Ja

Køle/fryseskab, komfur, emhætte og ikke andre hårde hvidevarer.

Kælderrum/udhus

Ja

Udhus

Legeplads

Ja

Tv/Internet

Ja

Frit valg blandt udbydere af tv/internet

Vaskeri

Nej

Ventetider

Se mere

Mere end 5 år

Ældreboliger/ungdomsboliger

Nej/Nej

                        Se flere

## Boliger i afdelingen

Familiebolig

2 værelses

Familiebolig

Familiebolig

3 værelses

Familiebolig

Boligtype

Værelser

Størrelse

Husleje u. forbrug

Indskud

Plantegning

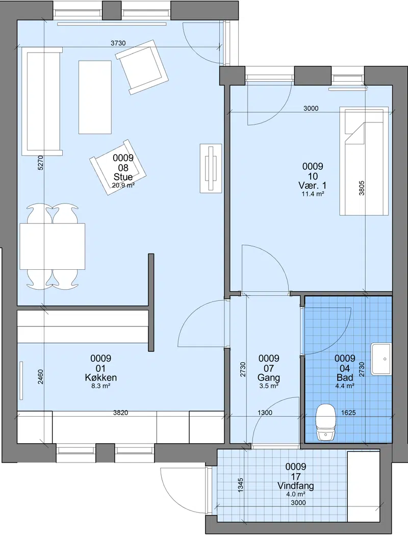
Familiebolig

2

64.33 m²

4692 kr.

17948 kr.

![](https://bolignaestved.dk/i/MOLIRIMEDIA/49bfc36a-c604-4411-0b54-08ddde57396d?width=800)

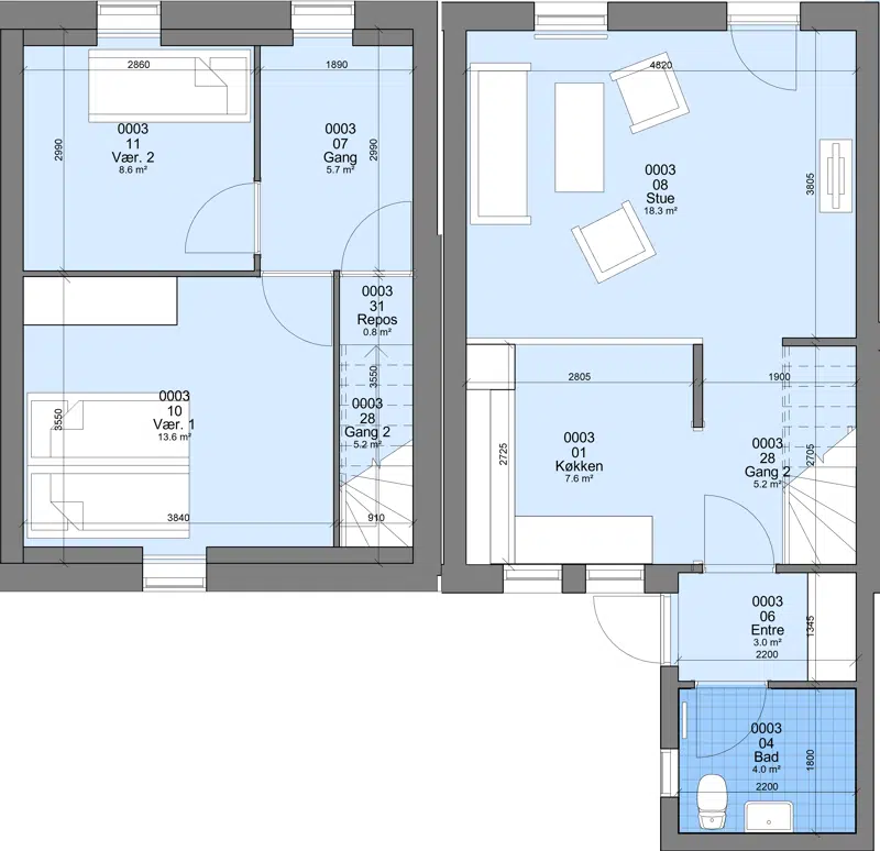
Familiebolig

3

81 m²

5915 kr.

22599 kr.

![](https://bolignaestved.dk/i/MOLIRIMEDIA/032f15d0-2d6a-42ca-11aa-08ddde57396d?width=800)

## Driftscenter

### Kontakt dit driftscenter

Adresse:

Birkehegnet 334

4700 Næstved

55735215

birkehegnet@bolignaestved.dk

### Åbningstider

Telefonisk henvendelse:

Mandag - fredag kl. 8.30-10.00

.............................................

Personlig henvendelse:

Kun efter forudgående aftale (bestil tid)

## Personale

### Steen Harting Ibsen

Driftsleder

### Kim Trane Johansen

Driftslederassistent

### Ladigar Ôztürk

Kontormedarbejder

### Henrik Haar

Ejendomsfunktionær

### Henrik Christiansen

Ejendomsfunktionær

### Kenneth Steen Boiken Andersen

Ejendomsfunktionær

### Martin Teglgaard Wichmann

Ejendomsfunktionær

### Sadeq Khedri

Ejendomsfunktionær

### Bent Storch

Ejendomsfunktionær

### Muhidin Salihovic

Ejendomsfunktionær

## Bestyrelsen

Navn

Titel

Inge-Lise Sørensen

Formand

Litta Ringstrømm

Medlem

Dorte Ragnhild Larsen

Medlem

Louise Arvidsen

Suppleant 1

## Repræsentantskab

Navn

Titel

Inge-Lise Sørensen

Medlem

## Afdelingsmøde

Her finder du nyttig information afdelingsmøder, såsom forslag, referater m.m.

###

                                                Forretningsorden

[Forretningsorden.pdf](https://bolignaestved.dk/p/Files/Boligdata/AfdelingsdokumenterFraEG/01_311/Afdelingsm&#xF8;de/Forretningsorden/Forretningsorden.pdf)

###

                                                Indkaldelse

[2025-09-23 Indkaldelse.pdf](https://bolignaestved.dk/p/Files/Boligdata/AfdelingsdokumenterFraEG/01_311/Afdelingsm&#xF8;de/Indkaldelse/2025-09-23-Indkaldelse.pdf)
                                            [2024-09-24 Indkaldelse.pdf](https://bolignaestved.dk/p/Files/Boligdata/AfdelingsdokumenterFraEG/01_311/Afdelingsm&#xF8;de/Indkaldelse/2024-09-24-Indkaldelse.pdf)
                                            [2023-09-26 Indkaldelse.pdf](https://bolignaestved.dk/p/Files/Boligdata/AfdelingsdokumenterFraEG/01_311/Afdelingsm&#xF8;de/Indkaldelse/2023-09-26-Indkaldelse.pdf)
                                            [2021-09-23 Indkaldelse.pdf](https://bolignaestved.dk/p/Files/Boligdata/AfdelingsdokumenterFraEG/01_311/Afdelingsm&#xF8;de/Indkaldelse/2021-09-23-Indkaldelse.pdf)
                                            [2020-09-15 Indkaldelse.pdf](https://bolignaestved.dk/p/Files/Boligdata/AfdelingsdokumenterFraEG/01_311/Afdelingsm&#xF8;de/Indkaldelse/2020-09-15-Indkaldelse.pdf)

###

                                                Forslag

[2025-09-23 Forslag.pdf](https://bolignaestved.dk/p/Files/Boligdata/AfdelingsdokumenterFraEG/01_311/Afdelingsm&#xF8;de/Forslag/2025-09-23-Forslag.pdf)
                                            [2024-09-24 Forslag.pdf](https://bolignaestved.dk/p/Files/Boligdata/AfdelingsdokumenterFraEG/01_311/Afdelingsm&#xF8;de/Forslag/2024-09-24-Forslag.pdf)
                                            [2023-09-26 Forslag.pdf](https://bolignaestved.dk/p/Files/Boligdata/AfdelingsdokumenterFraEG/01_311/Afdelingsm&#xF8;de/Forslag/2023-09-26-Forslag.pdf)
                                            [2021-09-23 Forslag.pdf](https://bolignaestved.dk/p/Files/Boligdata/AfdelingsdokumenterFraEG/01_311/Afdelingsm&#xF8;de/Forslag/2021-09-23-Forslag.pdf)
                                            [2020-09-15 Forslag.pdf](https://bolignaestved.dk/p/Files/Boligdata/AfdelingsdokumenterFraEG/01_311/Afdelingsm&#xF8;de/Forslag/2020-09-15-Forslag.pdf)

###

                                                Referat

[2025-09-23 Referat.pdf](https://bolignaestved.dk/p/Files/Boligdata/AfdelingsdokumenterFraEG/01_311/Afdelingsm&#xF8;de/Referat/2025-09-23-Referat.pdf)
                                            [2024-09-24 Referat.pdf](https://bolignaestved.dk/p/Files/Boligdata/AfdelingsdokumenterFraEG/01_311/Afdelingsm&#xF8;de/Referat/2024-09-24-Referat.pdf)
                                            [2023-09-26 Referat.pdf](https://bolignaestved.dk/p/Files/Boligdata/AfdelingsdokumenterFraEG/01_311/Afdelingsm&#xF8;de/Referat/2023-09-26-Referat.pdf)
                                            [2022-09-27 Referat.pdf](https://bolignaestved.dk/p/Files/Boligdata/AfdelingsdokumenterFraEG/01_311/Afdelingsm&#xF8;de/Referat/2022-09-27-Referat.pdf)
                                            [2021-09-23 Referat.pdf](https://bolignaestved.dk/p/Files/Boligdata/AfdelingsdokumenterFraEG/01_311/Afdelingsm&#xF8;de/Referat/2021-09-23-Referat.pdf)
                                            [2020-09-15 Referat.pdf](https://bolignaestved.dk/p/Files/Boligdata/AfdelingsdokumenterFraEG/01_311/Afdelingsm&#xF8;de/Referat/2020-09-15-Referat.pdf)

## Afdelingens dokumenter

Her finder du nyttig information fra din afdeling, såsom budget, regnskab, ordensreglement m.m.

###

                                                Budget

[Budget 2026.pdf](https://bolignaestved.dk/p/Files/Boligdata/AfdelingsdokumenterFraEG/01_311/Afdelingens%20dokumenter/Budget/Budget-2026.pdf)
                                            [Budget 2025.pdf](https://bolignaestved.dk/p/Files/Boligdata/AfdelingsdokumenterFraEG/01_311/Afdelingens%20dokumenter/Budget/Budget-2025.pdf)
                                            [Budget 2024.pdf](https://bolignaestved.dk/p/Files/Boligdata/AfdelingsdokumenterFraEG/01_311/Afdelingens%20dokumenter/Budget/Budget-2024.pdf)
                                            [Budget 2023.pdf](https://bolignaestved.dk/p/Files/Boligdata/AfdelingsdokumenterFraEG/01_311/Afdelingens%20dokumenter/Budget/Budget-2023.pdf)
                                            [Budget 2022.pdf](https://bolignaestved.dk/p/Files/Boligdata/AfdelingsdokumenterFraEG/01_311/Afdelingens%20dokumenter/Budget/Budget-2022.pdf)

###

                                                Årsregnskab

[Årsregnskab 2025.pdf](https://bolignaestved.dk/p/Files/Boligdata/AfdelingsdokumenterFraEG/01_311/Afdelingens%20dokumenter/&#xC5;rsregnskab/&#xC5;rsregnskab-2025.pdf)
                                            [Årsregnskab 2024.pdf](https://bolignaestved.dk/p/Files/Boligdata/AfdelingsdokumenterFraEG/01_311/Afdelingens%20dokumenter/&#xC5;rsregnskab/&#xC5;rsregnskab-2024.pdf)
                                            [Årsregnskab 2023.pdf](https://bolignaestved.dk/p/Files/Boligdata/AfdelingsdokumenterFraEG/01_311/Afdelingens%20dokumenter/&#xC5;rsregnskab/&#xC5;rsregnskab-2023.pdf)
                                            [Årsregnskab 2022.pdf](https://bolignaestved.dk/p/Files/Boligdata/AfdelingsdokumenterFraEG/01_311/Afdelingens%20dokumenter/&#xC5;rsregnskab/&#xC5;rsregnskab-2022.pdf)
                                            [Årsregnskab 2021.pdf](https://bolignaestved.dk/p/Files/Boligdata/AfdelingsdokumenterFraEG/01_311/Afdelingens%20dokumenter/&#xC5;rsregnskab/&#xC5;rsregnskab-2021.pdf)

###

                                                Vedligeholdelsesreglement

[Vedligeholdelsesreglement.pdf](https://bolignaestved.dk/p/Files/Boligdata/AfdelingsdokumenterFraEG/01_311/Afdelingens%20dokumenter/Vedligeholdelsesreglement/Vedligeholdelsesreglement.pdf)

###

                                                Råderetskatalog

[Råderetskatalog.pdf](https://bolignaestved.dk/p/Files/Boligdata/AfdelingsdokumenterFraEG/01_311/Afdelingens%20dokumenter/R&#xE5;deretskatalog/R&#xE5;deretskatalog.pdf)

###

                                                Energimærke

[Energimærke.pdf](https://bolignaestved.dk/p/Files/Boligdata/AfdelingsdokumenterFraEG/01_311/Afdelingens%20dokumenter/Energim&#xE6;rke/Energim&#xE6;rke.pdf)

###

                                                Andre dokumenter

[Vejledning ILOQ låsesystem.pdf](https://bolignaestved.dk/p/Files/Boligdata/AfdelingsdokumenterFraEG/01_311/Afdelingens%20dokumenter/Andre%20dokumenter/Vejledning-ILOQ-l&#xE5;sesystem.pdf)
                                            [Velkomstpjece.pdf](https://bolignaestved.dk/p/Files/Boligdata/AfdelingsdokumenterFraEG/01_311/Afdelingens%20dokumenter/Andre%20dokumenter/Velkomstpjece.pdf)

## Afdelingsbestyrelse

Her finder du nyttig information fra afdelinsbestyrelse i din afdeling.

## Placering
