---
title: "Afdeling 310 Holme-Olstrup"
description: "1-310"
date: "2026-04-28"
created: "2025-09-25"
---

-
-
-
-
-
-
-
-
-
-
-
-
-

https://maps.google.dk/?q=55.2582862,11.8509594

# Afdeling 310 Holme-Olstrup

Afdeling 310

## Velkommen til Afdeling 310 Holme-Olstrup

Afdelingen består af 72 rækkehuse, fordelt på 2-, 3- og 4-rums boliger, belliggende Olstrupvej 3-147. Boligerne indeholder køle/fryseskab, komfur, emhætte og ikke andre hårde hvidevarer. Til hver bolig hører mindre for- og baghave og udhus. I afdelingen forefindes haveanlæg med legepladser. Afdelingen ligger tæt på skole, institution, dagligvarebutik og offentlig transport i det hyggelige Holme Olstrup ca. 12 km øst for Næstved og Næstved Storcenter. Holme Olstrup er en by med ca. 1200 indbyggere og har et godt foreningsliv. I nærområdet forefindes desuden forlystelsesparken Bon Bon land.

## Fakta for afdelingen...

Altan/have

Ja

Have

Antal/størrelse

Se mere

Gl. afd: 20 stk 2 rums 64,3 m2, 20 stk 3 rums 81 m2, 10 stk 4 rums 89,3 m2. Ny afd: 8 stk 2 rums 68 m2, 10 stk 3 rums 87 m2, 4 stk 4 rums 96,8 m2

Beboerhus

Ja

Byggeår

1984-1988 og 2003

Carport/garage

Nej

Elevator

Nej

Husdyrhold

Se mere

1 husdyr

Hårde hvidevarer

Ja

Køle/fryseskab, komfur, emhætte og ikke andre hårde hvidevarer.

Kælderrum/udhus

Ja

Udhus

Legeplads

Ja

Tv/Internet

Ja

Frit valg blandt udbydere af tv/internet

Vaskeri

Nej

Ventetider

Se mere

2 til 5 år

Ældreboliger/ungdomsboliger

Nej/Nej

                        Se flere

## Boliger i afdelingen

Familiebolig

2 værelses

Familiebolig

Familiebolig

3 værelses

Familiebolig

Familiebolig

4 værelses

Familiebolig

Boligtype

Værelser

Størrelse

Husleje u. forbrug

Indskud

Plantegning

Familiebolig

2

68.02 m²

6131 kr.

20350 kr.

![](https://bolignaestved.dk/i/MOLIRIMEDIA/a0e163c6-70bd-4149-0cee-08ddde57396d?width=800)

Familiebolig

2

63.3 m²

4965 kr.

17661 kr.

![](https://bolignaestved.dk/i/MOLIRIMEDIA/968d2ab8-75ee-4d7d-0c1c-08ddde57396d?width=800)

Familiebolig

3

87 m²

7838 kr.

26028 kr.

![](https://bolignaestved.dk/i/MOLIRIMEDIA/3de1aae5-c0e6-4980-0fd6-08ddde57396d?width=800)

Familiebolig

3

81.09 m²

6354 kr.

22624 kr.

![](https://bolignaestved.dk/i/MOLIRIMEDIA/1787b6b5-0495-4e74-0c64-08ddde57396d?width=800)

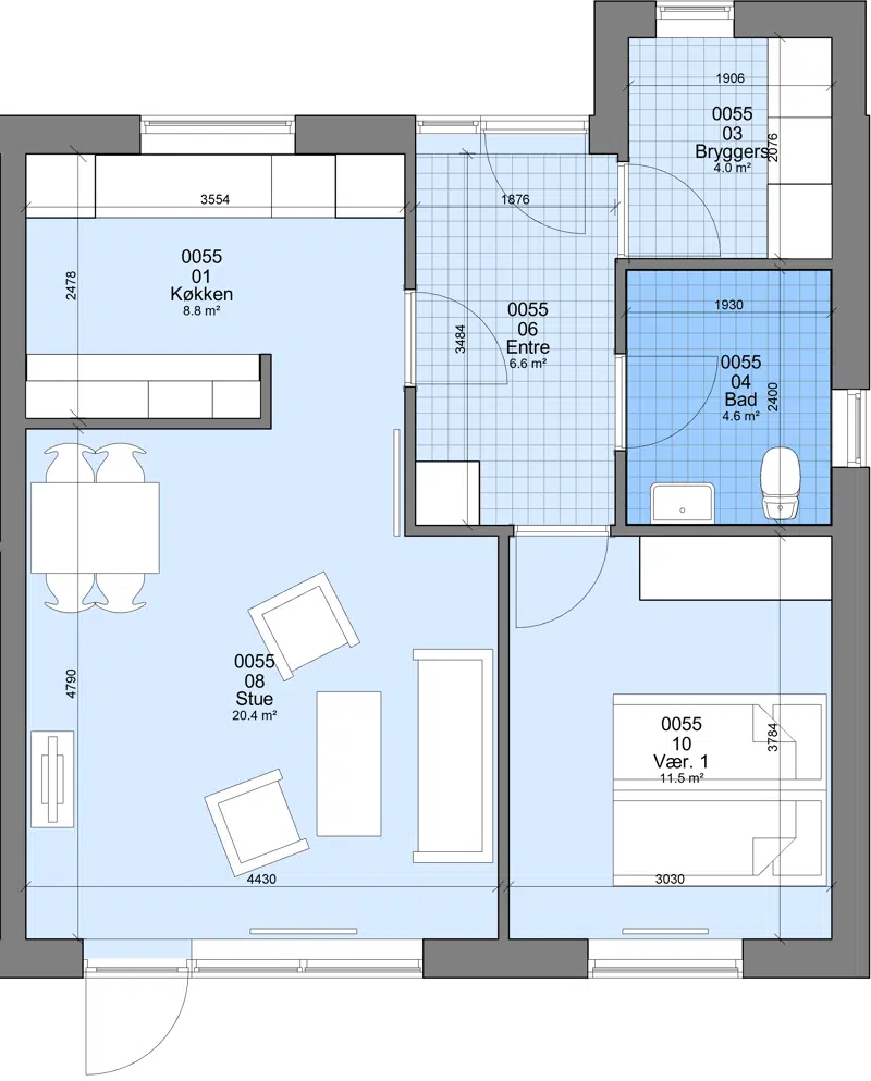
Familiebolig

4

96.89 m²

8729 kr.

28987 kr.

![](https://bolignaestved.dk/i/MOLIRIMEDIA/cf160f6d-aed8-4af7-1035-08ddde57396d?width=800)

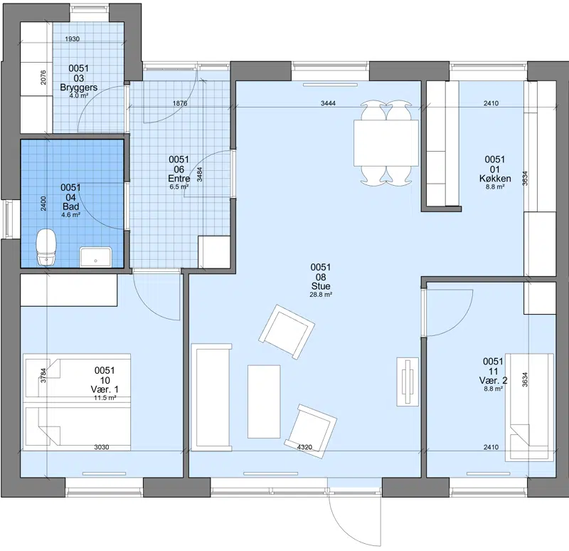
Familiebolig

4

89.38 m²

6977 kr.

24937 kr.

![](https://bolignaestved.dk/i/MOLIRIMEDIA/9fccd2dc-4e87-4581-0ae4-08ddde57396d?width=800)

## Driftscenter

### Kontakt dit driftscenter

Adresse:

Fodbygårdsvej 16

4700 Næstved

55723497

fodbygaardsvej@bolignaestved.dk

### Åbningstider

Telefonisk henvendelse:

Mandag - fredag kl 8.30-10.00

.............................................

Personlig henvendelse:

Kun efter forudgående aftale (bestil tid)

## Personale

### Jacob Clausen

Driftsleder

### Hans-Henrik Friis Jørgensen

Driftslederassistent

### Gitte Jacobsen

Kontormedarbejder

### Per Larsen

Ejendomsfunktionær

### Sigurdur R. Gislason

Ejendomsfunktionær

### Morten Ambus

Ejendomsfunktionær

### Benny Jensen

Ejendomsfunktionær

### Claus Ove Pedersen

Ejendomsfunktionær

### Jens-Jørgen Klausen

Ejendomsfunktionær

### Bo Pedersen

Ejendomsfunktionær

## Bestyrelsen

Navn

Titel

Kjeld Rask Hansen

Formand

Diana Jensen

Medlem

Mai-Britt  Jensen

Medlem

Mette Nielsen

Medlem

Mai-Britt Helene Jensen

Medlem

Maria Wirtess

Suppleant 1

Else Jensen

Suppleant 2

## Repræsentantskab

Navn

Titel

Mette Nielsen

Medlem

Louise Holkjær

Suppleant 1

## Afdelingsmøde

Her finder du nyttig information afdelingsmøder, såsom forslag, referater m.m.

###

                                                Forretningsorden

[Forretningsorden.pdf](https://bolignaestved.dk/p/Files/Boligdata/AfdelingsdokumenterFraEG/01_310/Afdelingsm&#xF8;de/Forretningsorden/Forretningsorden.pdf)

###

                                                Indkaldelse

[2026-04-20 Indkaldelse ekstraordinært.pdf](https://bolignaestved.dk/p/Files/Boligdata/AfdelingsdokumenterFraEG/01_310/Afdelingsm&#xF8;de/Indkaldelse/2026-04-20-Indkaldelse-ekstraordin&#xE6;rt.pdf)
                                            [2025-09-04 Indkaldelse.pdf](https://bolignaestved.dk/p/Files/Boligdata/AfdelingsdokumenterFraEG/01_310/Afdelingsm&#xF8;de/Indkaldelse/2025-09-04-Indkaldelse.pdf)
                                            [2025-01-23 Indkaldelse ekstraordinært.pdf](https://bolignaestved.dk/p/Files/Boligdata/AfdelingsdokumenterFraEG/01_310/Afdelingsm&#xF8;de/Indkaldelse/2025-01-23-Indkaldelse-ekstraordin&#xE6;rt.pdf)
                                            [2024-09-03 Indkaldelse.pdf](https://bolignaestved.dk/p/Files/Boligdata/AfdelingsdokumenterFraEG/01_310/Afdelingsm&#xF8;de/Indkaldelse/2024-09-03-Indkaldelse.pdf)
                                            [2024-02-01 Indkaldelse ekstraordinært.pdf](https://bolignaestved.dk/p/Files/Boligdata/AfdelingsdokumenterFraEG/01_310/Afdelingsm&#xF8;de/Indkaldelse/2024-02-01-Indkaldelse-ekstraordin&#xE6;rt.pdf)
                                            [2023-09-05 Indkaldelse.pdf](https://bolignaestved.dk/p/Files/Boligdata/AfdelingsdokumenterFraEG/01_310/Afdelingsm&#xF8;de/Indkaldelse/2023-09-05-Indkaldelse.pdf)
                                            [2022-09-06 Indkaldelse.pdf](https://bolignaestved.dk/p/Files/Boligdata/AfdelingsdokumenterFraEG/01_310/Afdelingsm&#xF8;de/Indkaldelse/2022-09-06-Indkaldelse.pdf)
                                            [2022-03-30 Indkaldelse til ekstra ordinært vedr. udskiftning af vinduer og udv. døre.pdf](https://bolignaestved.dk/p/Files/Boligdata/AfdelingsdokumenterFraEG/01_310/Afdelingsm&#xF8;de/Indkaldelse/2022-03-30-Indkaldelse-til-ekstra-ordin&#xE6;rt-vedr.-udskiftning-af-vinduer-og-udv.-d&#xF8;re.pdf)
                                            [2021-09-02 Indkaldelse.pdf](https://bolignaestved.dk/p/Files/Boligdata/AfdelingsdokumenterFraEG/01_310/Afdelingsm&#xF8;de/Indkaldelse/2021-09-02-Indkaldelse.pdf)
                                            [2021-06-30 Indkaldelse ekstraordinært.pdf](https://bolignaestved.dk/p/Files/Boligdata/AfdelingsdokumenterFraEG/01_310/Afdelingsm&#xF8;de/Indkaldelse/2021-06-30-Indkaldelse-ekstraordin&#xE6;rt.pdf)
                                            [2020-09-08 Indkaldelse.pdf](https://bolignaestved.dk/p/Files/Boligdata/AfdelingsdokumenterFraEG/01_310/Afdelingsm&#xF8;de/Indkaldelse/2020-09-08-Indkaldelse.pdf)

###

                                                Forslag

[2025-09-04 Forslag.pdf](https://bolignaestved.dk/p/Files/Boligdata/AfdelingsdokumenterFraEG/01_310/Afdelingsm&#xF8;de/Forslag/2025-09-04-Forslag.pdf)
                                            [2025-01-23 Forslag ekstraordinært.pdf](https://bolignaestved.dk/p/Files/Boligdata/AfdelingsdokumenterFraEG/01_310/Afdelingsm&#xF8;de/Forslag/2025-01-23-Forslag-ekstraordin&#xE6;rt.pdf)
                                            [2024-09-03 Forslag.pdf](https://bolignaestved.dk/p/Files/Boligdata/AfdelingsdokumenterFraEG/01_310/Afdelingsm&#xF8;de/Forslag/2024-09-03-Forslag.pdf)
                                            [2023-09-05 Forslag.pdf](https://bolignaestved.dk/p/Files/Boligdata/AfdelingsdokumenterFraEG/01_310/Afdelingsm&#xF8;de/Forslag/2023-09-05-Forslag.pdf)
                                            [2022-09-06 Forslag.pdf](https://bolignaestved.dk/p/Files/Boligdata/AfdelingsdokumenterFraEG/01_310/Afdelingsm&#xF8;de/Forslag/2022-09-06-Forslag.pdf)
                                            [2021-09-02 Forslag.pdf](https://bolignaestved.dk/p/Files/Boligdata/AfdelingsdokumenterFraEG/01_310/Afdelingsm&#xF8;de/Forslag/2021-09-02-Forslag.pdf)
                                            [2020-09-08 Forslag.pdf](https://bolignaestved.dk/p/Files/Boligdata/AfdelingsdokumenterFraEG/01_310/Afdelingsm&#xF8;de/Forslag/2020-09-08-Forslag.pdf)

###

                                                Referat

[2026-04-20 Ekstraordinært afd. møde.pdf](https://bolignaestved.dk/p/Files/Boligdata/AfdelingsdokumenterFraEG/01_310/Afdelingsm&#xF8;de/Referat/2026-04-20-Ekstraordin&#xE6;rt-afd.-m&#xF8;de.pdf)
                                            [2025-10-07 Referat.pdf](https://bolignaestved.dk/p/Files/Boligdata/AfdelingsdokumenterFraEG/01_310/Afdelingsm&#xF8;de/Referat/2025-10-07-Referat.pdf)
                                            [2025-09-04 Referat.pdf](https://bolignaestved.dk/p/Files/Boligdata/AfdelingsdokumenterFraEG/01_310/Afdelingsm&#xF8;de/Referat/2025-09-04-Referat.pdf)
                                            [2025-01-23 Referat ekstraordinært.pdf](https://bolignaestved.dk/p/Files/Boligdata/AfdelingsdokumenterFraEG/01_310/Afdelingsm&#xF8;de/Referat/2025-01-23-Referat-ekstraordin&#xE6;rt.pdf)
                                            [2024-09-03 Referat.pdf](https://bolignaestved.dk/p/Files/Boligdata/AfdelingsdokumenterFraEG/01_310/Afdelingsm&#xF8;de/Referat/2024-09-03-Referat.pdf)
                                            [2024-02-01 Referat ekstraordinært.pdf](https://bolignaestved.dk/p/Files/Boligdata/AfdelingsdokumenterFraEG/01_310/Afdelingsm&#xF8;de/Referat/2024-02-01-Referat-ekstraordin&#xE6;rt.pdf)
                                            [2023-09-05 Referat.pdf](https://bolignaestved.dk/p/Files/Boligdata/AfdelingsdokumenterFraEG/01_310/Afdelingsm&#xF8;de/Referat/2023-09-05-Referat.pdf)
                                            [2022-09-06 Referat.pdf](https://bolignaestved.dk/p/Files/Boligdata/AfdelingsdokumenterFraEG/01_310/Afdelingsm&#xF8;de/Referat/2022-09-06-Referat.pdf)
                                            [2022-03-30 Referat.pdf](https://bolignaestved.dk/p/Files/Boligdata/AfdelingsdokumenterFraEG/01_310/Afdelingsm&#xF8;de/Referat/2022-03-30-Referat.pdf)
                                            [2021-09-02 Referat.pdf](https://bolignaestved.dk/p/Files/Boligdata/AfdelingsdokumenterFraEG/01_310/Afdelingsm&#xF8;de/Referat/2021-09-02-Referat.pdf)
                                            [2021-06-30 Referat.pdf](https://bolignaestved.dk/p/Files/Boligdata/AfdelingsdokumenterFraEG/01_310/Afdelingsm&#xF8;de/Referat/2021-06-30-Referat.pdf)
                                            [2020-09-08 Referat.pdf](https://bolignaestved.dk/p/Files/Boligdata/AfdelingsdokumenterFraEG/01_310/Afdelingsm&#xF8;de/Referat/2020-09-08-Referat.pdf)

## Afdelingens dokumenter

Her finder du nyttig information fra din afdeling, såsom budget, regnskab, ordensreglement m.m.

###

                                                Budget

[Budget 2026.pdf](https://bolignaestved.dk/p/Files/Boligdata/AfdelingsdokumenterFraEG/01_310/Afdelingens%20dokumenter/Budget/Budget-2026.pdf)
                                            [Budget 2025.pdf](https://bolignaestved.dk/p/Files/Boligdata/AfdelingsdokumenterFraEG/01_310/Afdelingens%20dokumenter/Budget/Budget-2025.pdf)
                                            [Budget 2024.pdf](https://bolignaestved.dk/p/Files/Boligdata/AfdelingsdokumenterFraEG/01_310/Afdelingens%20dokumenter/Budget/Budget-2024.pdf)
                                            [Budget 2023.pdf](https://bolignaestved.dk/p/Files/Boligdata/AfdelingsdokumenterFraEG/01_310/Afdelingens%20dokumenter/Budget/Budget-2023.pdf)
                                            [Budget 2022.pdf](https://bolignaestved.dk/p/Files/Boligdata/AfdelingsdokumenterFraEG/01_310/Afdelingens%20dokumenter/Budget/Budget-2022.pdf)

###

                                                Årsregnskab

[Årsregnskab 2025.pdf](https://bolignaestved.dk/p/Files/Boligdata/AfdelingsdokumenterFraEG/01_310/Afdelingens%20dokumenter/&#xC5;rsregnskab/&#xC5;rsregnskab-2025.pdf)
                                            [Årsregnskab 2024.pdf](https://bolignaestved.dk/p/Files/Boligdata/AfdelingsdokumenterFraEG/01_310/Afdelingens%20dokumenter/&#xC5;rsregnskab/&#xC5;rsregnskab-2024.pdf)
                                            [Årsregnskab 2023.pdf](https://bolignaestved.dk/p/Files/Boligdata/AfdelingsdokumenterFraEG/01_310/Afdelingens%20dokumenter/&#xC5;rsregnskab/&#xC5;rsregnskab-2023.pdf)
                                            [Årsregnskab 2022.pdf](https://bolignaestved.dk/p/Files/Boligdata/AfdelingsdokumenterFraEG/01_310/Afdelingens%20dokumenter/&#xC5;rsregnskab/&#xC5;rsregnskab-2022.pdf)
                                            [Årsregnskab 2021.pdf](https://bolignaestved.dk/p/Files/Boligdata/AfdelingsdokumenterFraEG/01_310/Afdelingens%20dokumenter/&#xC5;rsregnskab/&#xC5;rsregnskab-2021.pdf)

###

                                                Ordensreglement

[Ordensreglement.pdf](https://bolignaestved.dk/p/Files/Boligdata/AfdelingsdokumenterFraEG/01_310/Afdelingens%20dokumenter/Ordensreglement/Ordensreglement.pdf)

###

                                                Vedligeholdelsesreglement

[Vedligeholdelsesreglement.pdf](https://bolignaestved.dk/p/Files/Boligdata/AfdelingsdokumenterFraEG/01_310/Afdelingens%20dokumenter/Vedligeholdelsesreglement/Vedligeholdelsesreglement.pdf)

###

                                                Råderetskatalog

[Råderetskatalog.pdf](https://bolignaestved.dk/p/Files/Boligdata/AfdelingsdokumenterFraEG/01_310/Afdelingens%20dokumenter/R&#xE5;deretskatalog/R&#xE5;deretskatalog.pdf)

###

                                                Energimærke

[Energimærke Holme-Olstrup 103 Fælleshus.pdf](https://bolignaestved.dk/p/Files/Boligdata/AfdelingsdokumenterFraEG/01_310/Afdelingens%20dokumenter/Energim&#xE6;rke/Energim&#xE6;rke-Holme-Olstrup-103-F&#xE6;lleshus.pdf)
                                            [Energimærke Holme-Olstrup 105-123.pdf](https://bolignaestved.dk/p/Files/Boligdata/AfdelingsdokumenterFraEG/01_310/Afdelingens%20dokumenter/Energim&#xE6;rke/Energim&#xE6;rke-Holme-Olstrup-105-123.pdf)
                                            [Energimærke Holme-Olstrup 111-147.pdf](https://bolignaestved.dk/p/Files/Boligdata/AfdelingsdokumenterFraEG/01_310/Afdelingens%20dokumenter/Energim&#xE6;rke/Energim&#xE6;rke-Holme-Olstrup-111-147.pdf)
                                            [Energimærke Holme-Olstrup 29-51.pdf](https://bolignaestved.dk/p/Files/Boligdata/AfdelingsdokumenterFraEG/01_310/Afdelingens%20dokumenter/Energim&#xE6;rke/Energim&#xE6;rke-Holme-Olstrup-29-51.pdf)
                                            [Energimærke Holme-Olstrup 3-27.pdf](https://bolignaestved.dk/p/Files/Boligdata/AfdelingsdokumenterFraEG/01_310/Afdelingens%20dokumenter/Energim&#xE6;rke/Energim&#xE6;rke-Holme-Olstrup-3-27.pdf)
                                            [Energimærke Holme-Olstrup 53-101.pdf](https://bolignaestved.dk/p/Files/Boligdata/AfdelingsdokumenterFraEG/01_310/Afdelingens%20dokumenter/Energim&#xE6;rke/Energim&#xE6;rke-Holme-Olstrup-53-101.pdf)

###

                                                Andre dokumenter

[Vejledning ILOQ låsesystem.pdf](https://bolignaestved.dk/p/Files/Boligdata/AfdelingsdokumenterFraEG/01_310/Afdelingens%20dokumenter/Andre%20dokumenter/Vejledning-ILOQ-l&#xE5;sesystem.pdf)
                                            [Vejledning vedr. påfyldning af vand på gasfyr.pdf](https://bolignaestved.dk/p/Files/Boligdata/AfdelingsdokumenterFraEG/01_310/Afdelingens%20dokumenter/Andre%20dokumenter/Vejledning-vedr.-p&#xE5;fyldning-af-vand-p&#xE5;-gasfyr.pdf)
                                            [Velkomstpjece.pdf](https://bolignaestved.dk/p/Files/Boligdata/AfdelingsdokumenterFraEG/01_310/Afdelingens%20dokumenter/Andre%20dokumenter/Velkomstpjece.pdf)

## Afdelingsbestyrelse

Her finder du nyttig information fra afdelinsbestyrelse i din afdeling.

###

                                                Forretningsorden

[Forretningsorden.pdf](https://bolignaestved.dk/p/Files/Boligdata/AfdelingsdokumenterFraEG/01_310/Afdelingsbestyrelse/Forretningsorden/Forretningsorden.pdf)

###

                                                Referat

[2026-01-18 Referat.pdf](https://bolignaestved.dk/p/Files/Boligdata/AfdelingsdokumenterFraEG/01_310/Afdelingsbestyrelse/Referat/2026-01-18-Referat.pdf)
                                            [2025-10-09 Referat.pdf](https://bolignaestved.dk/p/Files/Boligdata/AfdelingsdokumenterFraEG/01_310/Afdelingsbestyrelse/Referat/2025-10-09-Referat.pdf)
                                            [2025-08-12 Referat.pdf](https://bolignaestved.dk/p/Files/Boligdata/AfdelingsdokumenterFraEG/01_310/Afdelingsbestyrelse/Referat/2025-08-12-Referat.pdf)
                                            [2025-06-17 Referat.pdf](https://bolignaestved.dk/p/Files/Boligdata/AfdelingsdokumenterFraEG/01_310/Afdelingsbestyrelse/Referat/2025-06-17-Referat.pdf)
                                            [2025-05-20 Referat.pdf](https://bolignaestved.dk/p/Files/Boligdata/AfdelingsdokumenterFraEG/01_310/Afdelingsbestyrelse/Referat/2025-05-20-Referat.pdf)
                                            [2025-03-25 Referat.pdf](https://bolignaestved.dk/p/Files/Boligdata/AfdelingsdokumenterFraEG/01_310/Afdelingsbestyrelse/Referat/2025-03-25-Referat.pdf)
                                            [2025-02-25 Referat.pdf](https://bolignaestved.dk/p/Files/Boligdata/AfdelingsdokumenterFraEG/01_310/Afdelingsbestyrelse/Referat/2025-02-25-Referat.pdf)
                                            [2025-01-28 Referat.pdf](https://bolignaestved.dk/p/Files/Boligdata/AfdelingsdokumenterFraEG/01_310/Afdelingsbestyrelse/Referat/2025-01-28-Referat.pdf)
                                            [2024-09-24 Referat.pdf](https://bolignaestved.dk/p/Files/Boligdata/AfdelingsdokumenterFraEG/01_310/Afdelingsbestyrelse/Referat/2024-09-24-Referat.pdf)
                                            [2024-08-27 Referat.pdf](https://bolignaestved.dk/p/Files/Boligdata/AfdelingsdokumenterFraEG/01_310/Afdelingsbestyrelse/Referat/2024-08-27-Referat.pdf)
                                            [2024-07-30 Referat.pdf](https://bolignaestved.dk/p/Files/Boligdata/AfdelingsdokumenterFraEG/01_310/Afdelingsbestyrelse/Referat/2024-07-30-Referat.pdf)
                                            [2024-06-24 Referat.pdf](https://bolignaestved.dk/p/Files/Boligdata/AfdelingsdokumenterFraEG/01_310/Afdelingsbestyrelse/Referat/2024-06-24-Referat.pdf)
                                            [2024-05-13 Referat.pdf](https://bolignaestved.dk/p/Files/Boligdata/AfdelingsdokumenterFraEG/01_310/Afdelingsbestyrelse/Referat/2024-05-13-Referat.pdf)
                                            [2024-04-15 Referat.pdf](https://bolignaestved.dk/p/Files/Boligdata/AfdelingsdokumenterFraEG/01_310/Afdelingsbestyrelse/Referat/2024-04-15-Referat.pdf)
                                            [2024-03-04 Referat.pdf](https://bolignaestved.dk/p/Files/Boligdata/AfdelingsdokumenterFraEG/01_310/Afdelingsbestyrelse/Referat/2024-03-04-Referat.pdf)
                                            [2024-02-05 Referat.pdf](https://bolignaestved.dk/p/Files/Boligdata/AfdelingsdokumenterFraEG/01_310/Afdelingsbestyrelse/Referat/2024-02-05-Referat.pdf)
                                            [2024-01-08 Referat.pdf](https://bolignaestved.dk/p/Files/Boligdata/AfdelingsdokumenterFraEG/01_310/Afdelingsbestyrelse/Referat/2024-01-08-Referat.pdf)
                                            [2023-11-13 Referat.pdf](https://bolignaestved.dk/p/Files/Boligdata/AfdelingsdokumenterFraEG/01_310/Afdelingsbestyrelse/Referat/2023-11-13-Referat.pdf)
                                            [2023-10-03 Referat.pdf](https://bolignaestved.dk/p/Files/Boligdata/AfdelingsdokumenterFraEG/01_310/Afdelingsbestyrelse/Referat/2023-10-03-Referat.pdf)
                                            [2021-05-05 Referat.pdf](https://bolignaestved.dk/p/Files/Boligdata/AfdelingsdokumenterFraEG/01_310/Afdelingsbestyrelse/Referat/2021-05-05-Referat.pdf)
                                            [2021-04-07 Referat.pdf](https://bolignaestved.dk/p/Files/Boligdata/AfdelingsdokumenterFraEG/01_310/Afdelingsbestyrelse/Referat/2021-04-07-Referat.pdf)
                                            [2020-10-07 Referat.pdf](https://bolignaestved.dk/p/Files/Boligdata/AfdelingsdokumenterFraEG/01_310/Afdelingsbestyrelse/Referat/2020-10-07-Referat.pdf)
                                            [2020-09-22 Referat.pdf](https://bolignaestved.dk/p/Files/Boligdata/AfdelingsdokumenterFraEG/01_310/Afdelingsbestyrelse/Referat/2020-09-22-Referat.pdf)

## Placering
