---
title: "Afdeling 306 Stenstrupparken"
description: "1-306"
date: "2026-04-30"
created: "2025-09-25"
---

-
-
-
-
-
-

https://maps.google.dk/?q=55.2116325,11.7623426

# Afdeling 306 Stenstrupparken

Afdeling 306

## Velkommen til Afdeling 306 Stenstrupparken

Afdelingen er opført som etagebyggeri bestående af 4 blokke med i alt 114 boliger med 1, 2, 3 og 4 vær. Afdelingen ligger i et alsidigt boligkvarter tæt på skole, institution, dagligvarebutikker, Sct. Jørgens Butikscenter og offentlig transport. Via stisystem ligger i rimelig afstand svømmehal, storhal og rekreative områder. Boligerne indeholder køle/fryseskab, komfur, emhætte og ikke andre hårde hvidevarer. Der er adgang til fælles vaskeri samt fælles grønne arealer med gode legepladser. Hver bolig har lukket altan.

## Fakta for afdelingen...

Altan/have

Ja

Lukket altan til alle boliger

Antal/størrelse

Se mere

6 stk 1 rums 58,3 m2, 12 stk 2 rums 62,6 m2, 14 stk 3 rums 87,5 m2, 28 stk 3 rums 91,8 m2, 18 stk 3 rums 93,6 m2, 36 stk 4 rums 97,9 m2

Beboerhus

Ja

Byggeår

1973

Carport/garage

Ja

Der er mulighed for at leje carport

Elevator

Nej

Husdyrhold

Se mere

2 husdyr

Hårde hvidevarer

Ja

Køle/fryseskab, komfur, emhætte og ikke andre hårde hvidevarer.

Kælderrum/udhus

Ja

Kælderrum

Legeplads

Ja

Tv/Internet

Ja

Frit valg blandt udbydere af tv/internet

Vaskeri

Ja

Ventetider

Se mere

2 til 5 år

Ældreboliger/ungdomsboliger

Nej/Nej

                        Se flere

## Boliger i afdelingen

Familiebolig

1 værelses

Familiebolig

Familiebolig

2 værelses

Familiebolig

Familiebolig

3 værelses

Familiebolig

Familiebolig

4 værelses

Familiebolig

Boligtype

Værelser

Størrelse

Husleje u. forbrug

Indskud

Plantegning

Familiebolig

1

58.36 m²

3957 kr.

16282 kr.

![](https://bolignaestved.dk/i/MOLIRIMEDIA/93355513-7ffe-4efa-0a78-08ddde57396d?width=800)

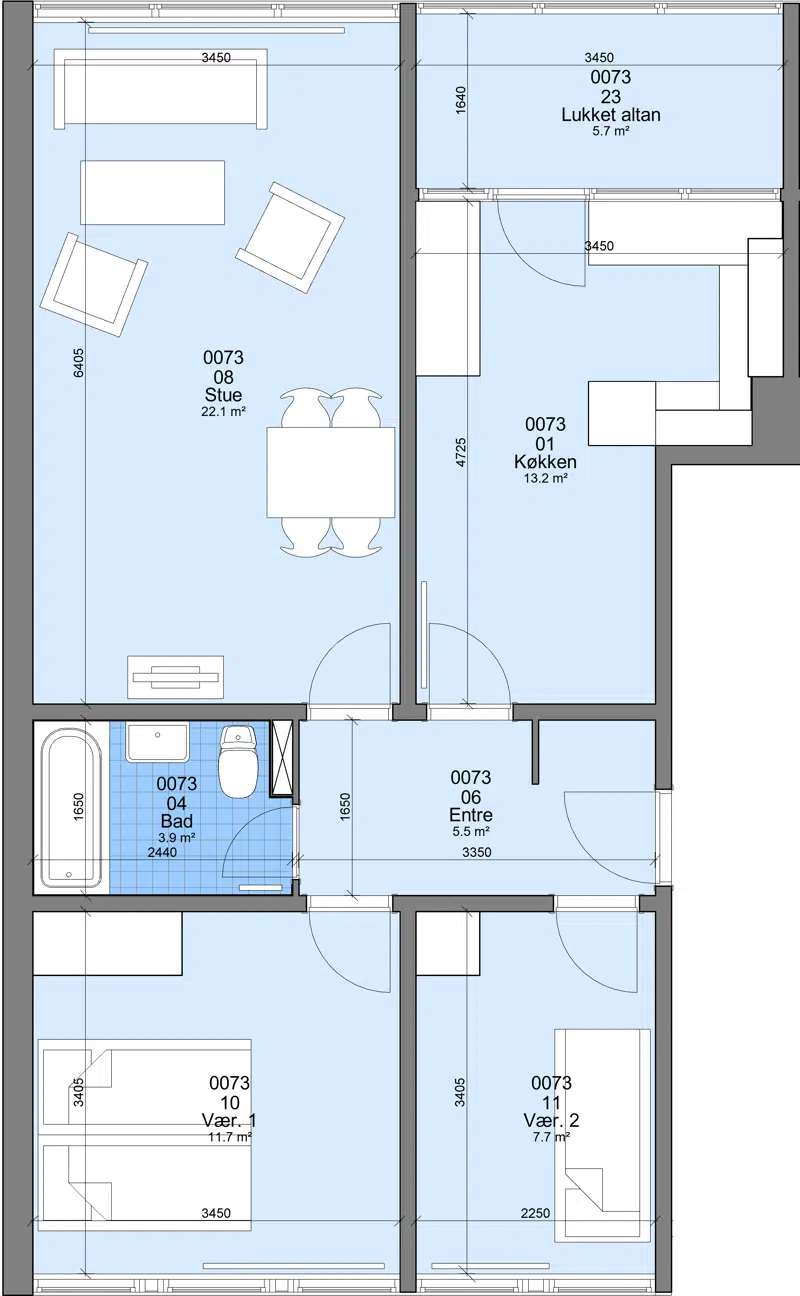
Familiebolig

2

62.68 m²

4248 kr.

17488 kr.

![](https://bolignaestved.dk/i/MOLIRIMEDIA/8fca3973-ee79-4fe1-0fb9-08ddde57396d?width=800)

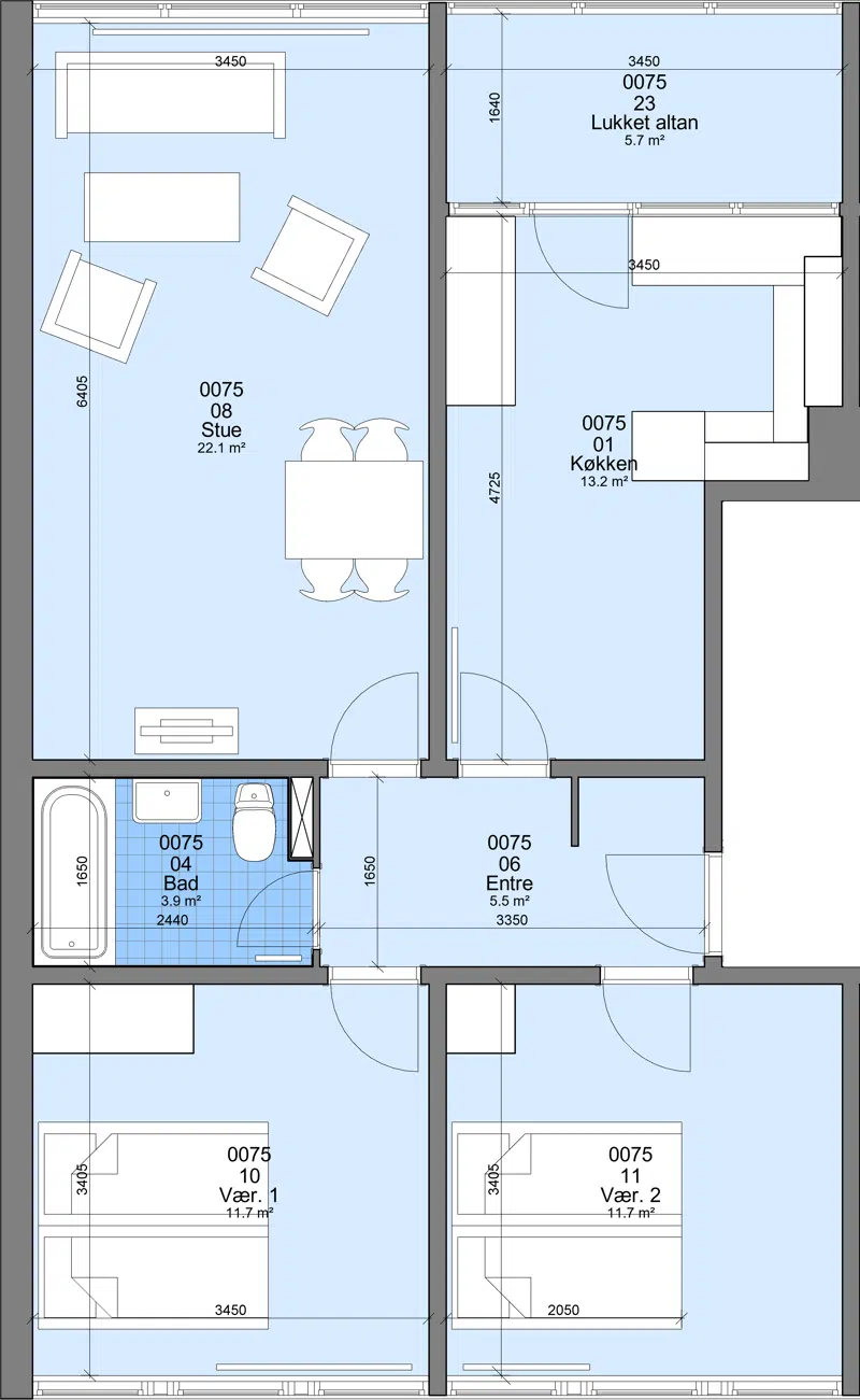
Familiebolig

3

91.87 m²

6219 kr.

25632 kr.

![](https://bolignaestved.dk/i/MOLIRIMEDIA/d67c8a99-c63e-4823-0aa0-08ddde57396d?width=800)

Familiebolig

3

87.55 m²

5923 kr.

24426 kr.

![](https://bolignaestved.dk/i/MOLIRIMEDIA/c9f92148-d94e-4bb7-0a67-08ddde57396d?width=800)

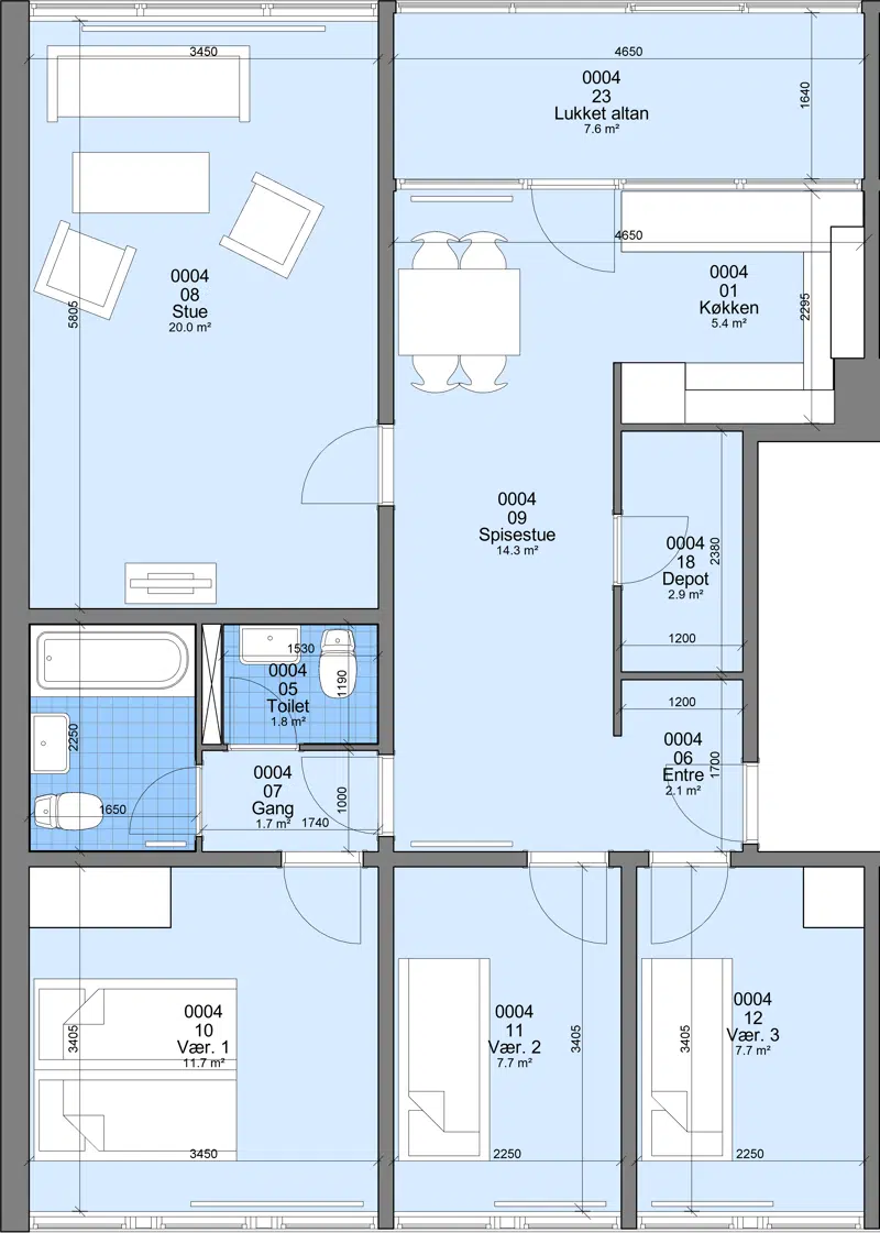
Familiebolig

3

93.6 m²

6333 kr.

26114 kr.

![](https://bolignaestved.dk/i/MOLIRIMEDIA/f6f0c819-b5ac-479b-0dea-08ddde57396d?width=800)

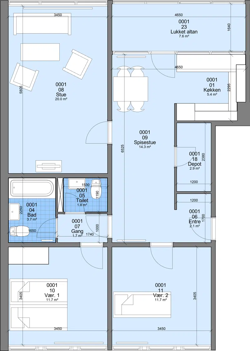
Familiebolig

4

97.92 m²

6625 kr.

27320 kr.

![](https://bolignaestved.dk/i/MOLIRIMEDIA/c15f7655-f77d-4d27-0cf5-08ddde57396d?width=800)

## Driftscenter

### Kontakt dit driftscenter

Adresse:

Birkehegnet 334

4700 Næstved

55735215

birkehegnet@bolignaestved.dk

### Åbningstider

Telefonisk henvendelse:

Mandag - fredag kl. 8.30-10.00

.............................................

Personlig henvendelse:

Kun efter forudgående aftale (bestil tid)

## Personale

### Steen Harting Ibsen

Driftsleder

### Kim Trane Johansen

Driftslederassistent

### Ladigar Ôztürk

Kontormedarbejder

### Henrik Haar

Ejendomsfunktionær

### Henrik Christiansen

Ejendomsfunktionær

### Kenneth Steen Boiken Andersen

Ejendomsfunktionær

### Martin Teglgaard Wichmann

Ejendomsfunktionær

### Sadeq Khedri

Ejendomsfunktionær

### Bent Storch

Ejendomsfunktionær

### Muhidin Salihovic

Ejendomsfunktionær

## Bestyrelsen

Navn

Titel

Lene Stub Pedersen

Formand

Majbritt Schou Hansen

Medlem

Dorthe Høeg

Medlem

Danny Ammitzbøll Baum

Medlem

Majbrith Öksüm Larsen

Medlem

Winnie Bak

Suppleant 1

Thea Lindgaard

Suppleant 2

## Repræsentantskab

Navn

Titel

Lene Stub Pedersen

Medlem

Danny Ammitzbøll Baum

Medlem

Dorthe Høeg

Suppleant 1

## Afdelingsmøde

Her finder du nyttig information afdelingsmøder, såsom forslag, referater m.m.

###

                                                Forretningsorden

[Forretningsorden.pdf](https://bolignaestved.dk/p/Files/Boligdata/AfdelingsdokumenterFraEG/01_306/Afdelingsm&#xF8;de/Forretningsorden/Forretningsorden.pdf)

###

                                                Indkaldelse

[2026-05-05 Indkaldelse ekstraordinært afd. møde.pdf](https://bolignaestved.dk/p/Files/Boligdata/AfdelingsdokumenterFraEG/01_308/Afdelingsm&#xF8;de/Indkaldelse/2026-05-05-Indkaldelse-ekstraordin&#xE6;rt-afd.-m&#xF8;de.pdf)
                                            [2025-09-10 Indkaldelse.pdf](https://bolignaestved.dk/p/Files/Boligdata/AfdelingsdokumenterFraEG/01_308/Afdelingsm&#xF8;de/Indkaldelse/2025-09-10-Indkaldelse.pdf)
                                            [2024-09-11 Indkaldelse.pdf](https://bolignaestved.dk/p/Files/Boligdata/AfdelingsdokumenterFraEG/01_308/Afdelingsm&#xF8;de/Indkaldelse/2024-09-11-Indkaldelse.pdf)
                                            [2023-09-12 Indkaldelse.pdf](https://bolignaestved.dk/p/Files/Boligdata/AfdelingsdokumenterFraEG/01_308/Afdelingsm&#xF8;de/Indkaldelse/2023-09-12-Indkaldelse.pdf)
                                            [2022-09-14 Indkaldelse.pdf](https://bolignaestved.dk/p/Files/Boligdata/AfdelingsdokumenterFraEG/01_308/Afdelingsm&#xF8;de/Indkaldelse/2022-09-14-Indkaldelse.pdf)
                                            [2021-09-08 Indkaldelse.pdf](https://bolignaestved.dk/p/Files/Boligdata/AfdelingsdokumenterFraEG/01_308/Afdelingsm&#xF8;de/Indkaldelse/2021-09-08-Indkaldelse.pdf)
                                            [2020-10-20 Indkaldelse ekstraordinært  afd. møde.pdf](https://bolignaestved.dk/p/Files/Boligdata/AfdelingsdokumenterFraEG/01_308/Afdelingsm&#xF8;de/Indkaldelse/2020-10-20-Indkaldelse-ekstraordin&#xE6;rt--afd.-m&#xF8;de.pdf)
                                            [2020-09-02 Indkaldelse.pdf](https://bolignaestved.dk/p/Files/Boligdata/AfdelingsdokumenterFraEG/01_308/Afdelingsm&#xF8;de/Indkaldelse/2020-09-02-Indkaldelse.pdf)

###

                                                Forslag

[2025-09-16 Forslag.pdf](https://bolignaestved.dk/p/Files/Boligdata/AfdelingsdokumenterFraEG/01_306/Afdelingsm&#xF8;de/Forslag/2025-09-16-Forslag.pdf)
                                            [2024-09-17 Forslag.pdf](https://bolignaestved.dk/p/Files/Boligdata/AfdelingsdokumenterFraEG/01_306/Afdelingsm&#xF8;de/Forslag/2024-09-17-Forslag.pdf)
                                            [2023-09-19 Forslag.pdf](https://bolignaestved.dk/p/Files/Boligdata/AfdelingsdokumenterFraEG/01_306/Afdelingsm&#xF8;de/Forslag/2023-09-19-Forslag.pdf)
                                            [2022-09-20 Forslag.pdf](https://bolignaestved.dk/p/Files/Boligdata/AfdelingsdokumenterFraEG/01_306/Afdelingsm&#xF8;de/Forslag/2022-09-20-Forslag.pdf)
                                            [2021-09-08 Forslag.pdf](https://bolignaestved.dk/p/Files/Boligdata/AfdelingsdokumenterFraEG/01_306/Afdelingsm&#xF8;de/Forslag/2021-09-08-Forslag.pdf)
                                            [2020-09-08 Forslag.pdf](https://bolignaestved.dk/p/Files/Boligdata/AfdelingsdokumenterFraEG/01_306/Afdelingsm&#xF8;de/Forslag/2020-09-08-Forslag.pdf)

###

                                                Referat

[2025-09-16 Referat.pdf](https://bolignaestved.dk/p/Files/Boligdata/AfdelingsdokumenterFraEG/01_306/Afdelingsm&#xF8;de/Referat/2025-09-16-Referat.pdf)
                                            [2024-09-17 Referat.pdf](https://bolignaestved.dk/p/Files/Boligdata/AfdelingsdokumenterFraEG/01_306/Afdelingsm&#xF8;de/Referat/2024-09-17-Referat.pdf)
                                            [2023-09-19 Referat.pdf](https://bolignaestved.dk/p/Files/Boligdata/AfdelingsdokumenterFraEG/01_306/Afdelingsm&#xF8;de/Referat/2023-09-19-Referat.pdf)
                                            [2022-09-20 Referat.pdf](https://bolignaestved.dk/p/Files/Boligdata/AfdelingsdokumenterFraEG/01_306/Afdelingsm&#xF8;de/Referat/2022-09-20-Referat.pdf)
                                            [2021-09-08 Referat.pdf](https://bolignaestved.dk/p/Files/Boligdata/AfdelingsdokumenterFraEG/01_306/Afdelingsm&#xF8;de/Referat/2021-09-08-Referat.pdf)
                                            [2020-09-08 Referat.pdf](https://bolignaestved.dk/p/Files/Boligdata/AfdelingsdokumenterFraEG/01_306/Afdelingsm&#xF8;de/Referat/2020-09-08-Referat.pdf)
                                            [2019-09-24 Referat.pdf](https://bolignaestved.dk/p/Files/Boligdata/AfdelingsdokumenterFraEG/01_306/Afdelingsm&#xF8;de/Referat/2019-09-24-Referat.pdf)
                                            [2018-09-17 Referat.pdf](https://bolignaestved.dk/p/Files/Boligdata/AfdelingsdokumenterFraEG/01_306/Afdelingsm&#xF8;de/Referat/2018-09-17-Referat.pdf)

## Afdelingens dokumenter

Her finder du nyttig information fra din afdeling, såsom budget, regnskab, ordensreglement m.m.

###

                                                Budget

[Budget 2026.pdf](https://bolignaestved.dk/p/Files/Boligdata/AfdelingsdokumenterFraEG/01_306/Afdelingens%20dokumenter/Budget/Budget-2026.pdf)
                                            [Budget 2025.pdf](https://bolignaestved.dk/p/Files/Boligdata/AfdelingsdokumenterFraEG/01_306/Afdelingens%20dokumenter/Budget/Budget-2025.pdf)
                                            [Budget 2024.pdf](https://bolignaestved.dk/p/Files/Boligdata/AfdelingsdokumenterFraEG/01_306/Afdelingens%20dokumenter/Budget/Budget-2024.pdf)
                                            [Budget 2023.pdf](https://bolignaestved.dk/p/Files/Boligdata/AfdelingsdokumenterFraEG/01_306/Afdelingens%20dokumenter/Budget/Budget-2023.pdf)
                                            [Budget 2022.pdf](https://bolignaestved.dk/p/Files/Boligdata/AfdelingsdokumenterFraEG/01_306/Afdelingens%20dokumenter/Budget/Budget-2022.pdf)

###

                                                Årsregnskab

[Årsregnskab 2025.pdf](https://bolignaestved.dk/p/Files/Boligdata/AfdelingsdokumenterFraEG/01_306/Afdelingens%20dokumenter/&#xC5;rsregnskab/&#xC5;rsregnskab-2025.pdf)
                                            [Årsregnskab 2024.pdf](https://bolignaestved.dk/p/Files/Boligdata/AfdelingsdokumenterFraEG/01_306/Afdelingens%20dokumenter/&#xC5;rsregnskab/&#xC5;rsregnskab-2024.pdf)
                                            [Årsregnskab 2023.pdf](https://bolignaestved.dk/p/Files/Boligdata/AfdelingsdokumenterFraEG/01_306/Afdelingens%20dokumenter/&#xC5;rsregnskab/&#xC5;rsregnskab-2023.pdf)
                                            [Årsregnskab 2022.pdf](https://bolignaestved.dk/p/Files/Boligdata/AfdelingsdokumenterFraEG/01_306/Afdelingens%20dokumenter/&#xC5;rsregnskab/&#xC5;rsregnskab-2022.pdf)
                                            [Årsregnskab 2021.pdf](https://bolignaestved.dk/p/Files/Boligdata/AfdelingsdokumenterFraEG/01_306/Afdelingens%20dokumenter/&#xC5;rsregnskab/&#xC5;rsregnskab-2021.pdf)

###

                                                Ordensreglement

[Ordensreglement.pdf](https://bolignaestved.dk/p/Files/Boligdata/AfdelingsdokumenterFraEG/01_306/Afdelingens%20dokumenter/Ordensreglement/Ordensreglement.pdf)

###

                                                Vedligeholdelsesreglement

[Vedligeholdelsesreglement.pdf](https://bolignaestved.dk/p/Files/Boligdata/AfdelingsdokumenterFraEG/01_306/Afdelingens%20dokumenter/Vedligeholdelsesreglement/Vedligeholdelsesreglement.pdf)

###

                                                Råderetskatalog

[Råderetskatalog.pdf](https://bolignaestved.dk/p/Files/Boligdata/AfdelingsdokumenterFraEG/01_306/Afdelingens%20dokumenter/R&#xE5;deretskatalog/R&#xE5;deretskatalog.pdf)

###

                                                Energimærke

[Energimærke.pdf](https://bolignaestved.dk/p/Files/Boligdata/AfdelingsdokumenterFraEG/01_306/Afdelingens%20dokumenter/Energim&#xE6;rke/Energim&#xE6;rke.pdf)

###

                                                Andre dokumenter

[Vejledning ILOQ låsesystem.pdf](https://bolignaestved.dk/p/Files/Boligdata/AfdelingsdokumenterFraEG/01_306/Afdelingens%20dokumenter/Andre%20dokumenter/Vejledning-ILOQ-l&#xE5;sesystem.pdf)
                                            [Velkomstpjece.pdf](https://bolignaestved.dk/p/Files/Boligdata/AfdelingsdokumenterFraEG/01_306/Afdelingens%20dokumenter/Andre%20dokumenter/Velkomstpjece.pdf)

## Afdelingsbestyrelse

Her finder du nyttig information fra afdelinsbestyrelse i din afdeling.

###

                                                Referat

[2026-05-05 Referat.pdf](https://bolignaestved.dk/p/Files/Boligdata/AfdelingsdokumenterFraEG/01_306/Afdelingsbestyrelse/Referat/2026-05-05-Referat.pdf)
                                            [2026-04-07 Referat.pdf](https://bolignaestved.dk/p/Files/Boligdata/AfdelingsdokumenterFraEG/01_306/Afdelingsbestyrelse/Referat/2026-04-07-Referat.pdf)
                                            [2026-03-03 Referat.pdf](https://bolignaestved.dk/p/Files/Boligdata/AfdelingsdokumenterFraEG/01_306/Afdelingsbestyrelse/Referat/2026-03-03-Referat.pdf)
                                            [2026-02-03 Referat.pdf](https://bolignaestved.dk/p/Files/Boligdata/AfdelingsdokumenterFraEG/01_306/Afdelingsbestyrelse/Referat/2026-02-03-Referat.pdf)
                                            [2026-01-06 Referat.pdf](https://bolignaestved.dk/p/Files/Boligdata/AfdelingsdokumenterFraEG/01_306/Afdelingsbestyrelse/Referat/2026-01-06-Referat.pdf)
                                            [2025-11-04 Referat.pdf](https://bolignaestved.dk/p/Files/Boligdata/AfdelingsdokumenterFraEG/01_306/Afdelingsbestyrelse/Referat/2025-11-04-Referat.pdf)
                                            [2025-10-07 Referat.pdf](https://bolignaestved.dk/p/Files/Boligdata/AfdelingsdokumenterFraEG/01_306/Afdelingsbestyrelse/Referat/2025-10-07-Referat.pdf)
                                            [2025-09-23 Referat.pdf](https://bolignaestved.dk/p/Files/Boligdata/AfdelingsdokumenterFraEG/01_306/Afdelingsbestyrelse/Referat/2025-09-23-Referat.pdf)
                                            [2025-09-02 Referat.pdf](https://bolignaestved.dk/p/Files/Boligdata/AfdelingsdokumenterFraEG/01_306/Afdelingsbestyrelse/Referat/2025-09-02-Referat.pdf)
                                            [2025-08-05 Referat.pdf](https://bolignaestved.dk/p/Files/Boligdata/AfdelingsdokumenterFraEG/01_306/Afdelingsbestyrelse/Referat/2025-08-05-Referat.pdf)
                                            [2025-06-03 Referat.pdf](https://bolignaestved.dk/p/Files/Boligdata/AfdelingsdokumenterFraEG/01_306/Afdelingsbestyrelse/Referat/2025-06-03-Referat.pdf)
                                            [2025-05-06 Referat.pdf](https://bolignaestved.dk/p/Files/Boligdata/AfdelingsdokumenterFraEG/01_306/Afdelingsbestyrelse/Referat/2025-05-06-Referat.pdf)
                                            [2025-04-01 Referat.pdf](https://bolignaestved.dk/p/Files/Boligdata/AfdelingsdokumenterFraEG/01_306/Afdelingsbestyrelse/Referat/2025-04-01-Referat.pdf)
                                            [2025-03-04 Referat.pdf](https://bolignaestved.dk/p/Files/Boligdata/AfdelingsdokumenterFraEG/01_306/Afdelingsbestyrelse/Referat/2025-03-04-Referat.pdf)
                                            [2025-02-04 Referat.pdf](https://bolignaestved.dk/p/Files/Boligdata/AfdelingsdokumenterFraEG/01_306/Afdelingsbestyrelse/Referat/2025-02-04-Referat.pdf)
                                            [2025-01-07 Referat.pdf](https://bolignaestved.dk/p/Files/Boligdata/AfdelingsdokumenterFraEG/01_306/Afdelingsbestyrelse/Referat/2025-01-07-Referat.pdf)
                                            [2024-12-03 Referat.pdf](https://bolignaestved.dk/p/Files/Boligdata/AfdelingsdokumenterFraEG/01_306/Afdelingsbestyrelse/Referat/2024-12-03-Referat.pdf)
                                            [2024-11-05 Referat.pdf](https://bolignaestved.dk/p/Files/Boligdata/AfdelingsdokumenterFraEG/01_306/Afdelingsbestyrelse/Referat/2024-11-05-Referat.pdf)
                                            [2024-10-01 Referat.pdf](https://bolignaestved.dk/p/Files/Boligdata/AfdelingsdokumenterFraEG/01_306/Afdelingsbestyrelse/Referat/2024-10-01-Referat.pdf)
                                            [2024-09-24 Referat.pdf](https://bolignaestved.dk/p/Files/Boligdata/AfdelingsdokumenterFraEG/01_306/Afdelingsbestyrelse/Referat/2024-09-24-Referat.pdf)
                                            [2024-09-03 Referat.pdf](https://bolignaestved.dk/p/Files/Boligdata/AfdelingsdokumenterFraEG/01_306/Afdelingsbestyrelse/Referat/2024-09-03-Referat.pdf)
                                            [2024-08-06 Referat.pdf](https://bolignaestved.dk/p/Files/Boligdata/AfdelingsdokumenterFraEG/01_306/Afdelingsbestyrelse/Referat/2024-08-06-Referat.pdf)
                                            [2024-06-04 Referat.pdf](https://bolignaestved.dk/p/Files/Boligdata/AfdelingsdokumenterFraEG/01_306/Afdelingsbestyrelse/Referat/2024-06-04-Referat.pdf)
                                            [2024-04-02 Referat.pdf](https://bolignaestved.dk/p/Files/Boligdata/AfdelingsdokumenterFraEG/01_306/Afdelingsbestyrelse/Referat/2024-04-02-Referat.pdf)
                                            [2024-03-05 Referat.pdf](https://bolignaestved.dk/p/Files/Boligdata/AfdelingsdokumenterFraEG/01_306/Afdelingsbestyrelse/Referat/2024-03-05-Referat.pdf)
                                            [2024-02-06 Referat.pdf](https://bolignaestved.dk/p/Files/Boligdata/AfdelingsdokumenterFraEG/01_306/Afdelingsbestyrelse/Referat/2024-02-06-Referat.pdf)
                                            [2024-01-16 Referat.pdf](https://bolignaestved.dk/p/Files/Boligdata/AfdelingsdokumenterFraEG/01_306/Afdelingsbestyrelse/Referat/2024-01-16-Referat.pdf)

## Placering
