---
title: "Afdeling 304 Bellisvej/Skyttemarksvej/Falkevej"
description: "1-304"
date: "2026-04-30"
created: "2025-09-25"
---

-
-
-
-
-

https://maps.google.dk/?q=55.230381,11.78516

# Afdeling 304 Bellisvej/Skyttemarksvej/Falkevej

Afdeling 304

## Velkommen til Afdeling 304 Bellisvej/Skyttemarksvej/Falkevej

Bellisvej 1-6 består af rækkehuse med 6 boliger med 4 vær. i 1 plan. Falkevej 3 og 5 består af rækkehuse med 2 boliger med 3 vær. i 2 plan. Skyttemarksvej 98 består af rækkehuse med 2 boliger med 3 vær. i 2 plan. Afdelingen ligger i et alsidigt boligkvarter tæt ved skoler, institutioner, dagligvarebutikker, Kalbyrisskoven samt offentlig transport. Boligerne indeholder komfur, emhætte, vaskemaskine og ikke andre hårde hvidevarer. Til hver bolig hører egen mindre have. Til de 3 vær. hører kælder og til de 4 vær. udhus.

## Fakta for afdelingen...

Altan/have

Ja

Have

Antal/størrelse

Se mere

4 stk 3 rums 75 m2 dobbelt huse, 6 stk 4 rums 84 m2 rækkehuse

Beboerhus

Nej

Byggeår

1957-1967

Carport/garage

Nej

Elevator

Nej

Husdyrhold

Se mere

1 husdyr

Hårde hvidevarer

Ja

Komfur, emhætte, vaskemaskine, køleskab og ikke andre hårde hvidevarer.

Kælderrum/udhus

Ja

Kælder til de 3 rums, udhus til de 4 rums

Legeplads

Nej

Tv/Internet

Ja

Frit valg blandt udbydere af tv/internet

Vaskeri

Ja

Vaskemaskine i hvert lejemål

Ventetider

Se mere

Mere end 5 år

Ældreboliger/ungdomsboliger

Nej/Nej

                        Se flere

## Boliger i afdelingen

Familiebolig

3 værelses

Familiebolig

Familiebolig

4 værelses

Familiebolig

Boligtype

Værelser

Størrelse

Husleje u. forbrug

Indskud

Plantegning

Familiebolig

3

76 m²

4714 kr.

21204 kr.

![](https://bolignaestved.dk/i/MOLIRIMEDIA/0a780b7f-ee9f-4c1c-110a-08ddde57396d?width=800)

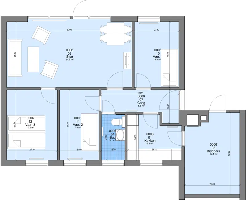
Familiebolig

3

75 m²

4714 kr.

20925 kr.

![](https://bolignaestved.dk/i/MOLIRIMEDIA/714472c5-f323-4610-0d99-08ddde57396d?width=800)

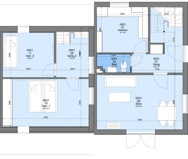
Familiebolig

4

84 m²

6552 kr.

23436 kr.

![](https://bolignaestved.dk/i/MOLIRIMEDIA/cb957c82-d60a-486b-0e3d-08ddde57396d?width=800)

## Driftscenter

### Kontakt dit driftscenter

Adresse:

Ejlersvej 34

4700 Næstved

55739357

ejlersvej@bolignaestved.dk

### Åbningstider

Telefonisk henvendelse:

Mandag - fredag kl 8.30-10.00

.............................................

Personlig henvendelse:

Kun efter forudgående aftale (bestil tid)

## Personale

### Claus Kuhre

Driftsleder

### David Mick Nielsen

Driftslederassistent

### Lene F. Nielsen

Kontormedarbejder

### Carsten Kirkebjerg

Ejendomsfunktionær

### Brian Søe Larsen

Ejendomsfunktionær

### Serhij Talatynnik

Ejendomsfunktionær

### Dariusz Jan Rybacki

Ejendomsfunktionær

### Henrik Jørgensen

Ejendomsfunktionær

## Bestyrelsen

Navn

Titel

Ingen afdelingsbestyrelse

Medlem

## Repræsentantskab

Navn

Titel

Ingen repræsentantskabsmedlemmer

Medlem

## Afdelingsmøde

Her finder du nyttig information afdelingsmøder, såsom forslag, referater m.m.

###

                                                Forretningsorden

[Forretningsorden.pdf](https://bolignaestved.dk/p/Files/Boligdata/AfdelingsdokumenterFraEG/01_304/Afdelingsm&#xF8;de/Forretningsorden/Forretningsorden.pdf)

###

                                                Indkaldelse

[2025-08-26 Indkaldelse.pdf](https://bolignaestved.dk/p/Files/Boligdata/AfdelingsdokumenterFraEG/01_304/Afdelingsm&#xF8;de/Indkaldelse/2025-08-26-Indkaldelse.pdf)
                                            [2025-04-02 Indkaldelse ekstraordinært afd. møde.pdf](https://bolignaestved.dk/p/Files/Boligdata/AfdelingsdokumenterFraEG/01_304/Afdelingsm&#xF8;de/Indkaldelse/2025-04-02-Indkaldelse-ekstraordin&#xE6;rt-afd.-m&#xF8;de.pdf)
                                            [2024-08-24 Indkaldelse.pdf](https://bolignaestved.dk/p/Files/Boligdata/AfdelingsdokumenterFraEG/01_304/Afdelingsm&#xF8;de/Indkaldelse/2024-08-24-Indkaldelse.pdf)
                                            [2024-08-22 Indkaldelse.pdf](https://bolignaestved.dk/p/Files/Boligdata/AfdelingsdokumenterFraEG/01_304/Afdelingsm&#xF8;de/Indkaldelse/2024-08-22-Indkaldelse.pdf)
                                            [2022-08-30 Indkaldelse.pdf](https://bolignaestved.dk/p/Files/Boligdata/AfdelingsdokumenterFraEG/01_304/Afdelingsm&#xF8;de/Indkaldelse/2022-08-30-Indkaldelse.pdf)
                                            [2021-08-31 Indkaldelse.pdf](https://bolignaestved.dk/p/Files/Boligdata/AfdelingsdokumenterFraEG/01_304/Afdelingsm&#xF8;de/Indkaldelse/2021-08-31-Indkaldelse.pdf)
                                            [2020-08-27 Indkaldelse.pdf](https://bolignaestved.dk/p/Files/Boligdata/AfdelingsdokumenterFraEG/01_304/Afdelingsm&#xF8;de/Indkaldelse/2020-08-27-Indkaldelse.pdf)

###

                                                Forslag

[2025-08-26 Forslag.pdf](https://bolignaestved.dk/p/Files/Boligdata/AfdelingsdokumenterFraEG/01_304/Afdelingsm&#xF8;de/Forslag/2025-08-26-Forslag.pdf)
                                            [2024-08-24 Forslag.pdf](https://bolignaestved.dk/p/Files/Boligdata/AfdelingsdokumenterFraEG/01_304/Afdelingsm&#xF8;de/Forslag/2024-08-24-Forslag.pdf)
                                            [2024-08-22 Forslag.pdf](https://bolignaestved.dk/p/Files/Boligdata/AfdelingsdokumenterFraEG/01_304/Afdelingsm&#xF8;de/Forslag/2024-08-22-Forslag.pdf)
                                            [2022-08-30 Forslag.pdf](https://bolignaestved.dk/p/Files/Boligdata/AfdelingsdokumenterFraEG/01_304/Afdelingsm&#xF8;de/Forslag/2022-08-30-Forslag.pdf)
                                            [2021-08-31 Forslag.pdf](https://bolignaestved.dk/p/Files/Boligdata/AfdelingsdokumenterFraEG/01_304/Afdelingsm&#xF8;de/Forslag/2021-08-31-Forslag.pdf)
                                            [2020-08-27 Forslag.pdf](https://bolignaestved.dk/p/Files/Boligdata/AfdelingsdokumenterFraEG/01_304/Afdelingsm&#xF8;de/Forslag/2020-08-27-Forslag.pdf)

###

                                                Referat

[2025-08-26 Referat.pdf](https://bolignaestved.dk/p/Files/Boligdata/AfdelingsdokumenterFraEG/01_304/Afdelingsm&#xF8;de/Referat/2025-08-26-Referat.pdf)
                                            [2025-04-02 Referat ekstraordinært afd. møde.pdf](https://bolignaestved.dk/p/Files/Boligdata/AfdelingsdokumenterFraEG/01_304/Afdelingsm&#xF8;de/Referat/2025-04-02-Referat-ekstraordin&#xE6;rt-afd.-m&#xF8;de.pdf)
                                            [2024-08-22 Referat.pdf](https://bolignaestved.dk/p/Files/Boligdata/AfdelingsdokumenterFraEG/01_304/Afdelingsm&#xF8;de/Referat/2024-08-22-Referat.pdf)
                                            [2023-08-24 Referat.pdf](https://bolignaestved.dk/p/Files/Boligdata/AfdelingsdokumenterFraEG/01_304/Afdelingsm&#xF8;de/Referat/2023-08-24-Referat.pdf)
                                            [2022-08-30 Referat.pdf](https://bolignaestved.dk/p/Files/Boligdata/AfdelingsdokumenterFraEG/01_304/Afdelingsm&#xF8;de/Referat/2022-08-30-Referat.pdf)
                                            [2021-08-31 Referat.pdf](https://bolignaestved.dk/p/Files/Boligdata/AfdelingsdokumenterFraEG/01_304/Afdelingsm&#xF8;de/Referat/2021-08-31-Referat.pdf)
                                            [2020-08-27 Referat.pdf](https://bolignaestved.dk/p/Files/Boligdata/AfdelingsdokumenterFraEG/01_304/Afdelingsm&#xF8;de/Referat/2020-08-27-Referat.pdf)

## Afdelingens dokumenter

Her finder du nyttig information fra din afdeling, såsom budget, regnskab, ordensreglement m.m.

###

                                                Budget

[Budget 2026.pdf](https://bolignaestved.dk/p/Files/Boligdata/AfdelingsdokumenterFraEG/01_304/Afdelingens%20dokumenter/Budget/Budget-2026.pdf)
                                            [Budget 2025.pdf](https://bolignaestved.dk/p/Files/Boligdata/AfdelingsdokumenterFraEG/01_304/Afdelingens%20dokumenter/Budget/Budget-2025.pdf)
                                            [Budget 2024.pdf](https://bolignaestved.dk/p/Files/Boligdata/AfdelingsdokumenterFraEG/01_304/Afdelingens%20dokumenter/Budget/Budget-2024.pdf)
                                            [Budget 2023.pdf](https://bolignaestved.dk/p/Files/Boligdata/AfdelingsdokumenterFraEG/01_304/Afdelingens%20dokumenter/Budget/Budget-2023.pdf)
                                            [Budget 2022.pdf](https://bolignaestved.dk/p/Files/Boligdata/AfdelingsdokumenterFraEG/01_304/Afdelingens%20dokumenter/Budget/Budget-2022.pdf)

###

                                                Årsregnskab

[Årsregnskab 2025.pdf](https://bolignaestved.dk/p/Files/Boligdata/AfdelingsdokumenterFraEG/01_304/Afdelingens%20dokumenter/&#xC5;rsregnskab/&#xC5;rsregnskab-2025.pdf)
                                            [Årsregnskab 2024.pdf](https://bolignaestved.dk/p/Files/Boligdata/AfdelingsdokumenterFraEG/01_304/Afdelingens%20dokumenter/&#xC5;rsregnskab/&#xC5;rsregnskab-2024.pdf)
                                            [Årsregnskab 2023.pdf](https://bolignaestved.dk/p/Files/Boligdata/AfdelingsdokumenterFraEG/01_304/Afdelingens%20dokumenter/&#xC5;rsregnskab/&#xC5;rsregnskab-2023.pdf)
                                            [Årsregnskab 2022.pdf](https://bolignaestved.dk/p/Files/Boligdata/AfdelingsdokumenterFraEG/01_304/Afdelingens%20dokumenter/&#xC5;rsregnskab/&#xC5;rsregnskab-2022.pdf)
                                            [Årsregnskab 2021.pdf](https://bolignaestved.dk/p/Files/Boligdata/AfdelingsdokumenterFraEG/01_304/Afdelingens%20dokumenter/&#xC5;rsregnskab/&#xC5;rsregnskab-2021.pdf)

###

                                                Ordensreglement

[Ordensreglement.pdf](https://bolignaestved.dk/p/Files/Boligdata/AfdelingsdokumenterFraEG/01_304/Afdelingens%20dokumenter/Ordensreglement/Ordensreglement.pdf)

###

                                                Vedligeholdelsesreglement

[Vedligeholdelsesreglement.pdf](https://bolignaestved.dk/p/Files/Boligdata/AfdelingsdokumenterFraEG/01_304/Afdelingens%20dokumenter/Vedligeholdelsesreglement/Vedligeholdelsesreglement.pdf)

###

                                                Råderetskatalog

[Råderetskatalog.pdf](https://bolignaestved.dk/p/Files/Boligdata/AfdelingsdokumenterFraEG/01_304/Afdelingens%20dokumenter/R&#xE5;deretskatalog/R&#xE5;deretskatalog.pdf)

###

                                                Energimærke

[Energimærke Bellisvej 1,3,5.pdf](https://bolignaestved.dk/p/Files/Boligdata/AfdelingsdokumenterFraEG/01_304/Afdelingens%20dokumenter/Energim&#xE6;rke/Energim&#xE6;rke-Bellisvej-1-3-5.pdf)
                                            [Energimærke Bellisvej 2,4,6.pdf](https://bolignaestved.dk/p/Files/Boligdata/AfdelingsdokumenterFraEG/01_304/Afdelingens%20dokumenter/Energim&#xE6;rke/Energim&#xE6;rke-Bellisvej-2-4-6.pdf)
                                            [Energimærke Falkevej 3,5.pdf](https://bolignaestved.dk/p/Files/Boligdata/AfdelingsdokumenterFraEG/01_304/Afdelingens%20dokumenter/Energim&#xE6;rke/Energim&#xE6;rke-Falkevej-3-5.pdf)
                                            [Energimærke Skyttemarksvej 97A.pdf](https://bolignaestved.dk/p/Files/Boligdata/AfdelingsdokumenterFraEG/01_304/Afdelingens%20dokumenter/Energim&#xE6;rke/Energim&#xE6;rke-Skyttemarksvej-97A.pdf)

###

                                                Andre dokumenter

[Velkomstpjece.pdf](https://bolignaestved.dk/p/Files/Boligdata/AfdelingsdokumenterFraEG/01_304/Afdelingens%20dokumenter/Andre%20dokumenter/Velkomstpjece.pdf)

## Afdelingsbestyrelse

Her finder du nyttig information fra afdelinsbestyrelse i din afdeling.

## Placering
