---
title: "Afdeling 301 Vibegården"
description: "1-301"
date: "2026-04-13"
created: "2025-09-25"
---

-
-
-
-
-
-
-
-

https://maps.google.dk/?q=55.2317406,11.7827313

# Afdeling 301 Vibegården

Afdeling 301

## Velkommen til Afdeling 301 Vibegården

Afdelingen er opført som etagebyggeri bestående af 1 blok med 51 boliger fordelt med 2, 3 og 4 vær. Afdelingen ligger i et alsidigt boligkvarter tæt ved skoler, institutioner, dagligvarebutikker samt offentlig transport. Boligerne indeholder emhætte og ikke andre hårde hvidevarer. Der er adgang til fælles vaskeri samt mindre gårdmiljø med legeplads. Til de 3 og 4 vær. hører kælderrum og til de 4 vær. skur. Størstedelen af boligerne har altan. Boliger mod Kildemarksvej har i stueplan egen mindre have.

## Fakta for afdelingen...

Altan/have

Ja

Have til lejemål i stueplan ud mod Kildemarksvej.
Ingen altaner i stueplan ud mod Østre Ringvej.
Altaner i resten af lejemålene.

Antal/størrelse

Se mere

2 stk 2 rums 45-52 m2, 31 stk 3 rums 59-87 m2, 18 stk 4 rums 68-84 m2

Beboerhus

Ja

Byggeår

1945-1950

Carport/garage

Nej

Elevator

Nej

Husdyrhold

Se mere

2 katte og 1 hund under 15 kg.

Hårde hvidevarer

Ja

Emhætte og ikke andre hårde hvidevarer.

Kælderrum/udhus

Ja

Kælderrum til alle lejemål

Legeplads

Ja

Tv/Internet

Ja

Frit valg blandt udbydere af tv/internet

Vaskeri

Ja

2 vaskerier i afdelingen

Ventetider

Se mere

2 til 5 år

Ældreboliger/ungdomsboliger

Nej/Nej

                        Se flere

## Boliger i afdelingen

Familiebolig

2 værelses

Familiebolig

Familiebolig

3 værelses

Familiebolig

Familiebolig

4 værelses

Familiebolig

Boligtype

Værelser

Størrelse

Husleje u. forbrug

Indskud

Plantegning

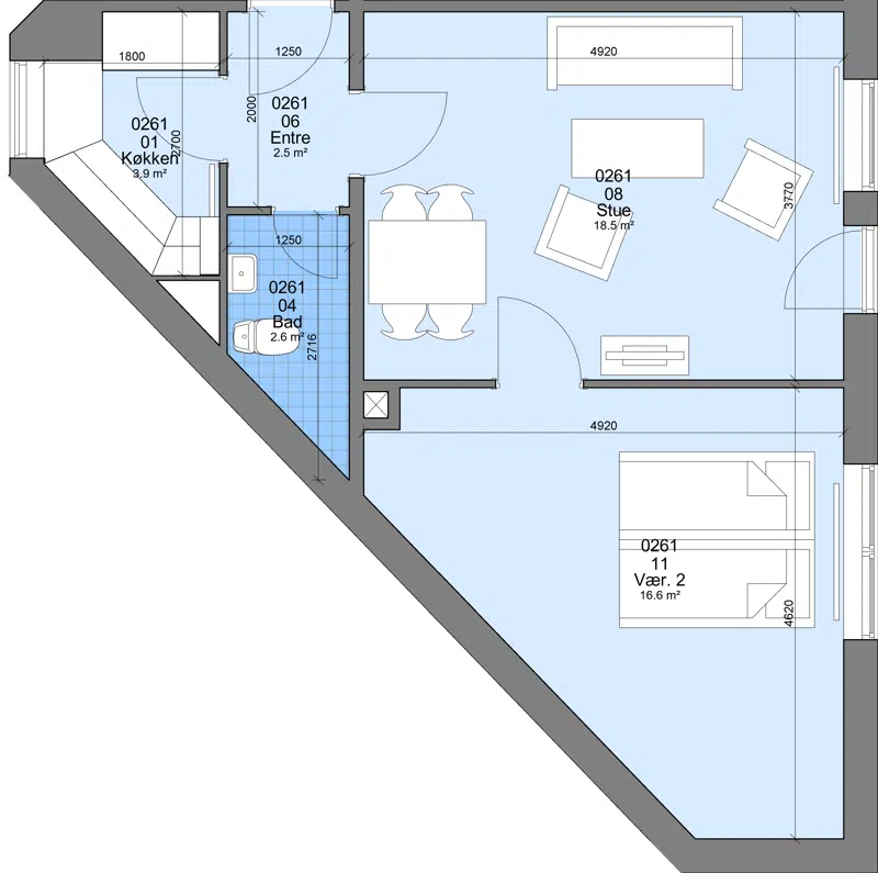
Familiebolig

2

52.4 m²

4557 kr.

14620 kr.

![](https://bolignaestved.dk/i/MOLIRIMEDIA/cff1779e-c40d-49a5-0b24-08ddde57396d?width=800)

Familiebolig

2

45 m²

3462 kr.

12555 kr.

![](https://bolignaestved.dk/i/MOLIRIMEDIA/3760cb72-2162-4df3-0ce6-08ddde57396d?width=800)

Familiebolig

3

67 m²

5194 kr.

18693 kr.

![](https://bolignaestved.dk/i/MOLIRIMEDIA/c0b8ff30-457a-4cee-09c9-08ddde57396d?width=800)

Familiebolig

3

59 m²

4566 kr.

16461 kr.

![](https://bolignaestved.dk/i/MOLIRIMEDIA/0277d1ea-34c7-4b39-0960-08ddde57396d?width=800)

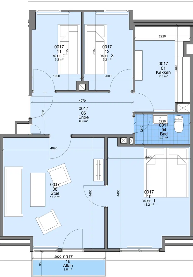
Familiebolig

3

87 m²

6763 kr.

24273 kr.

![](https://bolignaestved.dk/i/MOLIRIMEDIA/568781ff-7af6-41cb-08bd-08ddde57396d?width=800)

Familiebolig

4

84 m²

6518 kr.

23436 kr.

![](https://bolignaestved.dk/i/MOLIRIMEDIA/48588d4c-7315-4a5d-0b36-08ddde57396d?width=800)

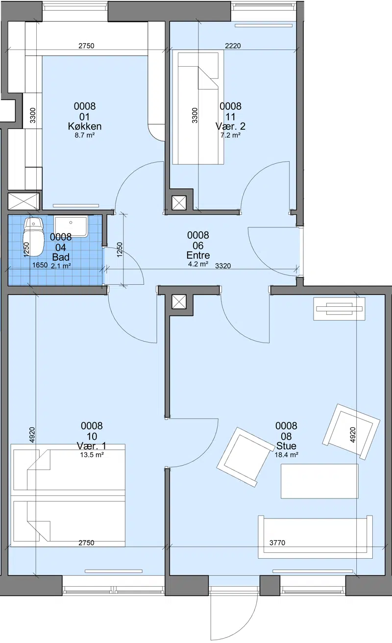
Familiebolig

4

77 m²

5972 kr.

21484 kr.

![](https://bolignaestved.dk/i/MOLIRIMEDIA/bc10d8b7-9b31-4d8c-0c41-08ddde57396d?width=800)

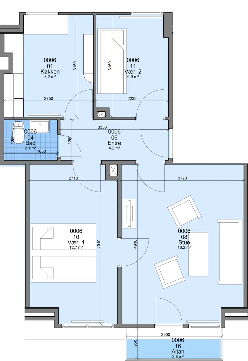
Familiebolig

4

68 m²

5269 kr.

18972 kr.

![](https://bolignaestved.dk/i/MOLIRIMEDIA/9ef7367e-511c-4c8f-0ab0-08ddde57396d?width=800)

## Driftscenter

### Kontakt dit driftscenter

Adresse:

Ejlersvej 34

4700 Næstved

55739357

ejlersvej@bolignaestved.dk

### Åbningstider

Telefonisk henvendelse:

Mandag - fredag kl 8.30-10.00

.............................................

Personlig henvendelse:

Kun efter forudgående aftale (bestil tid)

## Personale

### Claus Kuhre

Driftsleder

### David Mick Nielsen

Driftslederassistent

### Lene F. Nielsen

Kontormedarbejder

### Carsten Kirkebjerg

Ejendomsfunktionær

### Brian Søe Larsen

Ejendomsfunktionær

### Serhij Talatynnik

Ejendomsfunktionær

### Dariusz Jan Rybacki

Ejendomsfunktionær

### Henrik Jørgensen

Ejendomsfunktionær

## Bestyrelsen

Navn

Titel

Winnie Nørreskov Nielsen

Formand

Karina Holdensen

Medlem

Kasper Hansen

Medlem

Gurli Pedersen

Suppleant 1

Kalinka Rasmussen

Suppleant 2

## Repræsentantskab

Navn

Titel

Winnie Nørreskov Nielsen

Medlem

Karina Holdensen

Suppleant 1

## Afdelingsmøde

Her finder du nyttig information afdelingsmøder, såsom forslag, referater m.m.

###

                                                Forretningsorden

[Forretningsorden.pdf](https://bolignaestved.dk/p/Files/Boligdata/AfdelingsdokumenterFraEG/01_301/Afdelingsm&#xF8;de/Forretningsorden/Forretningsorden.pdf)

###

                                                Indkaldelse

[2020-09-01 Indkaldelse.pdf](https://bolignaestved.dk/p/Files/Boligdata/AfdelingsdokumenterFraEG/01_301/Afdelingsm&#xF8;de/Indkaldelse/2020-09-01-Indkaldelse.pdf)
                                            [2021-08-19 Indkaldelse.pdf](https://bolignaestved.dk/p/Files/Boligdata/AfdelingsdokumenterFraEG/01_301/Afdelingsm&#xF8;de/Indkaldelse/2021-08-19-Indkaldelse.pdf)
                                            [2022-09-01 Indkaldelse.pdf](https://bolignaestved.dk/p/Files/Boligdata/AfdelingsdokumenterFraEG/01_301/Afdelingsm&#xF8;de/Indkaldelse/2022-09-01-Indkaldelse.pdf)
                                            [2024-08-28 Indkaldelse.pdf](https://bolignaestved.dk/p/Files/Boligdata/AfdelingsdokumenterFraEG/01_301/Afdelingsm&#xF8;de/Indkaldelse/2024-08-28-Indkaldelse.pdf)
                                            [2024-08-30 Indkaldelse.pdf](https://bolignaestved.dk/p/Files/Boligdata/AfdelingsdokumenterFraEG/01_301/Afdelingsm&#xF8;de/Indkaldelse/2024-08-30-Indkaldelse.pdf)
                                            [2025-09-02 Indkaldelse.pdf](https://bolignaestved.dk/p/Files/Boligdata/AfdelingsdokumenterFraEG/01_301/Afdelingsm&#xF8;de/Indkaldelse/2025-09-02-Indkaldelse.pdf)
                                            [Indkaldelse 02-09-2025.pdf](https://bolignaestved.dk/p/Files/Boligdata/AfdelingsdokumenterFraEG/01_301/Afdelingsm&#xF8;de/Indkaldelse/Indkaldelse-02-09-2025.pdf)
                                            [Indkaldelse.pdf](https://bolignaestved.dk/p/Files/Boligdata/AfdelingsdokumenterFraEG/01_301/Afdelingsm&#xF8;de/Indkaldelse/Indkaldelse.pdf)

###

                                                Forslag

[2020-09-01 Forslag.pdf](https://bolignaestved.dk/p/Files/Boligdata/AfdelingsdokumenterFraEG/01_301/Afdelingsm&#xF8;de/Forslag/2020-09-01-Forslag.pdf)
                                            [2021-08-19 Forslag.pdf](https://bolignaestved.dk/p/Files/Boligdata/AfdelingsdokumenterFraEG/01_301/Afdelingsm&#xF8;de/Forslag/2021-08-19-Forslag.pdf)
                                            [2022-09-01 Forslag.pdf](https://bolignaestved.dk/p/Files/Boligdata/AfdelingsdokumenterFraEG/01_301/Afdelingsm&#xF8;de/Forslag/2022-09-01-Forslag.pdf)
                                            [2023-08-30 Forslag.pdf](https://bolignaestved.dk/p/Files/Boligdata/AfdelingsdokumenterFraEG/01_301/Afdelingsm&#xF8;de/Forslag/2023-08-30-Forslag.pdf)
                                            [2024-08-28 Forslag.pdf](https://bolignaestved.dk/p/Files/Boligdata/AfdelingsdokumenterFraEG/01_301/Afdelingsm&#xF8;de/Forslag/2024-08-28-Forslag.pdf)
                                            [2025-09-02 Forslag.pdf](https://bolignaestved.dk/p/Files/Boligdata/AfdelingsdokumenterFraEG/01_301/Afdelingsm&#xF8;de/Forslag/2025-09-02-Forslag.pdf)
                                            [Forslag 02-09-2025.pdf](https://bolignaestved.dk/p/Files/Boligdata/AfdelingsdokumenterFraEG/01_301/Afdelingsm&#xF8;de/Forslag/Forslag-02-09-2025.pdf)
                                            [Forslag.pdf](https://bolignaestved.dk/p/Files/Boligdata/AfdelingsdokumenterFraEG/01_301/Afdelingsm&#xF8;de/Forslag/Forslag.pdf)

###

                                                Referat

[Referat.pdf](https://bolignaestved.dk/p/Files/Boligdata/AfdelingsdokumenterFraEG/01_301/Afdelingsm&#xF8;de/Referat/Referat.pdf)
                                            [referat 30-08-2023.pdf](https://bolignaestved.dk/p/Files/Boligdata/AfdelingsdokumenterFraEG/01_301/Afdelingsm&#xF8;de/Referat/referat-30-08-2023.pdf)
                                            [Referat 28-08-2024.pdf](https://bolignaestved.dk/p/Files/Boligdata/AfdelingsdokumenterFraEG/01_301/Afdelingsm&#xF8;de/Referat/Referat-28-08-2024.pdf)
                                            [Referat 02-09-2025.pdf](https://bolignaestved.dk/p/Files/Boligdata/AfdelingsdokumenterFraEG/01_301/Afdelingsm&#xF8;de/Referat/Referat-02-09-2025.pdf)
                                            [Referat 01-09-2022.pdf](https://bolignaestved.dk/p/Files/Boligdata/AfdelingsdokumenterFraEG/01_301/Afdelingsm&#xF8;de/Referat/Referat-01-09-2022.pdf)
                                            [Referat 01-09-2021.pdf](https://bolignaestved.dk/p/Files/Boligdata/AfdelingsdokumenterFraEG/01_301/Afdelingsm&#xF8;de/Referat/Referat-01-09-2021.pdf)
                                            [2025-09-02 Referat.pdf](https://bolignaestved.dk/p/Files/Boligdata/AfdelingsdokumenterFraEG/01_301/Afdelingsm&#xF8;de/Referat/2025-09-02-Referat.pdf)
                                            [2024-08-28 Referat.pdf](https://bolignaestved.dk/p/Files/Boligdata/AfdelingsdokumenterFraEG/01_301/Afdelingsm&#xF8;de/Referat/2024-08-28-Referat.pdf)
                                            [2023-08-30 Referat.pdf](https://bolignaestved.dk/p/Files/Boligdata/AfdelingsdokumenterFraEG/01_301/Afdelingsm&#xF8;de/Referat/2023-08-30-Referat.pdf)
                                            [2022-09-01 Referat.pdf](https://bolignaestved.dk/p/Files/Boligdata/AfdelingsdokumenterFraEG/01_301/Afdelingsm&#xF8;de/Referat/2022-09-01-Referat.pdf)
                                            [2021-09-01 Referat.pdf](https://bolignaestved.dk/p/Files/Boligdata/AfdelingsdokumenterFraEG/01_301/Afdelingsm&#xF8;de/Referat/2021-09-01-Referat.pdf)
                                            [2020-09-01 Referat.pdf](https://bolignaestved.dk/p/Files/Boligdata/AfdelingsdokumenterFraEG/01_301/Afdelingsm&#xF8;de/Referat/2020-09-01-Referat.pdf)

## Afdelingens dokumenter

Her finder du nyttig information fra din afdeling, såsom budget, regnskab, ordensreglement m.m.

###

                                                Budget

[Budget 2026.pdf](https://bolignaestved.dk/p/Files/Boligdata/AfdelingsdokumenterFraEG/01_301/Afdelingens%20dokumenter/Budget/Budget-2026.pdf)
                                            [Budget 2025.pdf](https://bolignaestved.dk/p/Files/Boligdata/AfdelingsdokumenterFraEG/01_301/Afdelingens%20dokumenter/Budget/Budget-2025.pdf)
                                            [Budget 2024.pdf](https://bolignaestved.dk/p/Files/Boligdata/AfdelingsdokumenterFraEG/01_301/Afdelingens%20dokumenter/Budget/Budget-2024.pdf)
                                            [Budget 2023.pdf](https://bolignaestved.dk/p/Files/Boligdata/AfdelingsdokumenterFraEG/01_301/Afdelingens%20dokumenter/Budget/Budget-2023.pdf)
                                            [Budget 2022.pdf](https://bolignaestved.dk/p/Files/Boligdata/AfdelingsdokumenterFraEG/01_301/Afdelingens%20dokumenter/Budget/Budget-2022.pdf)

###

                                                Årsregnskab

[Årsregnskab 2024.pdf](https://bolignaestved.dk/p/Files/Boligdata/AfdelingsdokumenterFraEG/01_301/Afdelingens%20dokumenter/&#xC5;rsregnskab/&#xC5;rsregnskab-2024.pdf)
                                            [Årsregnskab 2023.pdf](https://bolignaestved.dk/p/Files/Boligdata/AfdelingsdokumenterFraEG/01_301/Afdelingens%20dokumenter/&#xC5;rsregnskab/&#xC5;rsregnskab-2023.pdf)
                                            [Årsregnskab 2022.pdf](https://bolignaestved.dk/p/Files/Boligdata/AfdelingsdokumenterFraEG/01_301/Afdelingens%20dokumenter/&#xC5;rsregnskab/&#xC5;rsregnskab-2022.pdf)
                                            [Årsregnskab 2021.pdf](https://bolignaestved.dk/p/Files/Boligdata/AfdelingsdokumenterFraEG/01_301/Afdelingens%20dokumenter/&#xC5;rsregnskab/&#xC5;rsregnskab-2021.pdf)

###

                                                Ordensreglement

[Ordensreglement 2023.pdf](https://bolignaestved.dk/p/Files/Boligdata/AfdelingsdokumenterFraEG/01_301/Afdelingens%20dokumenter/Ordensreglement/Ordensreglement-2023.pdf)

###

                                                Vedligeholdelsesreglement

[Vedligeholdelsesreglement 2023.pdf](https://bolignaestved.dk/p/Files/Boligdata/AfdelingsdokumenterFraEG/01_301/Afdelingens%20dokumenter/Vedligeholdelsesreglement/Vedligeholdelsesreglement-2023.pdf)

###

                                                Energimærke

[Energimærke - Vibegården.pdf](https://bolignaestved.dk/p/Files/Boligdata/AfdelingsdokumenterFraEG/01_301/Afdelingens%20dokumenter/Energim&#xE6;rke/Energim&#xE6;rke---Vibeg&#xE5;rden.pdf)

###

                                                Andre dokumenter

[Vejledning ILOQ låsesystem.pdf](https://bolignaestved.dk/p/Files/Boligdata/AfdelingsdokumenterFraEG/01_301/Afdelingens%20dokumenter/Andre%20dokumenter/Vejledning-ILOQ-l&#xE5;sesystem.pdf)
                                            [Velkomstpjece.pdf](https://bolignaestved.dk/p/Files/Boligdata/AfdelingsdokumenterFraEG/01_301/Afdelingens%20dokumenter/Andre%20dokumenter/Velkomstpjece.pdf)

###

                                                Nyheder

[Nyhedsbrev Helhedsplan maj 2025.pdf](https://bolignaestved.dk/p/Files/Boligdata/AfdelingsdokumenterFraEG/01_301/Afdelingens%20dokumenter/Nyheder/Nyhedsbrev-Helhedsplan-maj-2025.pdf)
                                            [Nyhedsbrev Helhedsplan Juli 2023.pdf](https://bolignaestved.dk/p/Files/Boligdata/AfdelingsdokumenterFraEG/01_301/Afdelingens%20dokumenter/Nyheder/Nyhedsbrev-Helhedsplan-Juli-2023.pdf)
                                            [Nyhedsbrev Helhedsplan Februar 2024.pdf](https://bolignaestved.dk/p/Files/Boligdata/AfdelingsdokumenterFraEG/01_301/Afdelingens%20dokumenter/Nyheder/Nyhedsbrev-Helhedsplan-Februar-2024.pdf)
                                            [Nyhedsbrev Helhedsplan August 2024.pdf](https://bolignaestved.dk/p/Files/Boligdata/AfdelingsdokumenterFraEG/01_301/Afdelingens%20dokumenter/Nyheder/Nyhedsbrev-Helhedsplan-August-2024.pdf)
                                            [Nyhedsbrev Helhedsplan - oktober 2021.pdf](https://bolignaestved.dk/p/Files/Boligdata/AfdelingsdokumenterFraEG/01_301/Afdelingens%20dokumenter/Nyheder/Nyhedsbrev-Helhedsplan---oktober-2021.pdf)
                                            [Nyhedsbrev Helhedsplan - november 2020.pdf](https://bolignaestved.dk/p/Files/Boligdata/AfdelingsdokumenterFraEG/01_301/Afdelingens%20dokumenter/Nyheder/Nyhedsbrev-Helhedsplan---november-2020.pdf)
                                            [Nyhedsbrev Helhedsplan - februar 2022.pdf](https://bolignaestved.dk/p/Files/Boligdata/AfdelingsdokumenterFraEG/01_301/Afdelingens%20dokumenter/Nyheder/Nyhedsbrev-Helhedsplan---februar-2022.pdf)
                                            [Nyhedsbrev Helhedsplan - efterår 2022.pdf](https://bolignaestved.dk/p/Files/Boligdata/AfdelingsdokumenterFraEG/01_301/Afdelingens%20dokumenter/Nyheder/Nyhedsbrev-Helhedsplan---efter&#xE5;r-2022.pdf)
                                            [Nyhedsbrev Helhedsplan - april 2021.pdf](https://bolignaestved.dk/p/Files/Boligdata/AfdelingsdokumenterFraEG/01_301/Afdelingens%20dokumenter/Nyheder/Nyhedsbrev-Helhedsplan---april-2021.pdf)
                                            [Nyhedsbrev Februar 2026.pdf](https://bolignaestved.dk/p/Files/Boligdata/AfdelingsdokumenterFraEG/01_301/Afdelingens%20dokumenter/Nyheder/Nyhedsbrev-Februar-2026.pdf)

## Afdelingsbestyrelse

Her finder du nyttig information fra afdelinsbestyrelse i din afdeling.

## Placering
