---
title: "Afdeling 025 Sportscollege"
description: "1-25"
date: "2026-05-26"
created: "2025-09-25"
---

-
-
-
-
-
-
-
-

https://maps.google.dk/?q=55.2218596,11.7665834

# Afdeling 025 Sportscollege

Afdeling 25

## Velkommen til Afdeling 025 Sportscollege

Ungdomsboligerne er udformet som 3 blokke i hver 2 etager. Det samlede areal udgør 770 m². De 25 boliger er på hver 27 m² med eget køkken og toilet samt hems på 4,5 m². Der er et fælles skur og cykelparkering. Boligerne er nabo til Næstved Arena, gode træningsfaciliteter og Næstved Gymnasium. Boligerne indeholder køleskab, dobbelt kogeplade, emhætte og ikke andre hårde hvidevarer. Der er fællesvaskeri i afdelingen.

## Fakta for afdelingen...

Altan/have

Ja

Fælles gårdareal i midten af byggeriet

Antal/størrelse

Se mere

25 ungdomsboliger. 27m2 samt hems på 4,5 m2

Beboerhus

Nej

Byggeår

2018-2019

Carport/garage

Nej

Elevator

Nej

Husdyrhold

Se mere

Ingen husdyr, herunder også krybdyr og slanger

Hårde hvidevarer

Ja

Køleskab, dobbelt kogeplade, emhætte og ikke andre hårde hvidevarer.

Kælderrum/udhus

Ja

Fælles skur

Legeplads

Nej

Tv/Internet

Ja

Frit valg blandt udbydere af tv/internet. Der er ikke antennestik. Der kan etableres bredbånd.

Vaskeri

Ja

Ja, fællesvaskeri

Ventetider

Se mere

Boligerne tilbydes efter prioritet

Ældreboliger/ungdomsboliger

Ja

                        Se flere

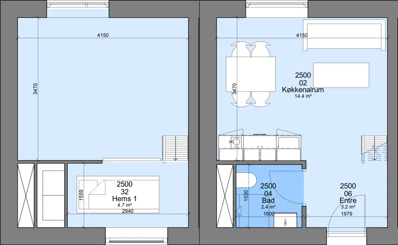
## Boliger i afdelingen

Ungdomsboliger

1 værelses

Ungdomsboliger

Boligtype

Værelser

Størrelse

Husleje u. forbrug

Indskud

Plantegning

Ungdomsboliger

1

30 m²

3255 kr.

15485 kr.

![](https://bolignaestved.dk/i/MOLIRIMEDIA/42a28cfe-49c9-4973-0fb1-08ddde57396d?width=800)

## Driftscenter

### Kontakt dit driftscenter

Adresse:

Birkehegnet 334

4700 Næstved

55735215

birkehegnet@bolignaestved.dk

### Åbningstider

Telefonisk henvendelse:

Mandag - fredag kl. 8.30-10.00

.............................................

Personlig henvendelse:

Kun efter forudgående aftale (bestil tid)

## Personale

### Steen Harting Ibsen

Driftsleder

### Kim Trane Johansen

Driftslederassistent

### Ladigar Ôztürk

Kontormedarbejder

### Henrik Haar

Ejendomsfunktionær

### Kenneth Steen Boiken Andersen

Ejendomsfunktionær

### Martin Teglgaard Wichmann

Ejendomsfunktionær

### Sadeq Khedri

Ejendomsfunktionær

### Bent Storch

Ejendomsfunktionær

### Muhidin Salihovic

Ejendomsfunktionær

## Bestyrelsen

Navn

Titel

Ingen afdelingsbestyrelse

Medlem

## Repræsentantskab

Navn

Titel

Ingen repræsentantskabsmedlemmer

Medlem

## Afdelingsmøde

Her finder du nyttig information afdelingsmøder, såsom forslag, referater m.m.

###

                                                Forretningsorden

[Forretningsorden.pdf](https://bolignaestved.dk/p/Files/Boligdata/AfdelingsdokumenterFraEG/01_025/Afdelingsm&#xF8;de/Forretningsorden/Forretningsorden.pdf)

###

                                                Indkaldelse

[2025-08-13 Indkaldelse.pdf](https://bolignaestved.dk/p/Files/Boligdata/AfdelingsdokumenterFraEG/01_025/Afdelingsm&#xF8;de/Indkaldelse/2025-08-13-Indkaldelse.pdf)
                                            [2024-08-12 Indkaldelse.pdf](https://bolignaestved.dk/p/Files/Boligdata/AfdelingsdokumenterFraEG/01_025/Afdelingsm&#xF8;de/Indkaldelse/2024-08-12-Indkaldelse.pdf)
                                            [2023-08-10 Indkaldelse.pdf](https://bolignaestved.dk/p/Files/Boligdata/AfdelingsdokumenterFraEG/01_025/Afdelingsm&#xF8;de/Indkaldelse/2023-08-10-Indkaldelse.pdf)
                                            [2022-08-10 Indkaldelse.pdf](https://bolignaestved.dk/p/Files/Boligdata/AfdelingsdokumenterFraEG/01_025/Afdelingsm&#xF8;de/Indkaldelse/2022-08-10-Indkaldelse.pdf)
                                            [2021-08-11 Indkaldelse.pdf](https://bolignaestved.dk/p/Files/Boligdata/AfdelingsdokumenterFraEG/01_025/Afdelingsm&#xF8;de/Indkaldelse/2021-08-11-Indkaldelse.pdf)
                                            [2020-09-17 Indkaldelse.pdf](https://bolignaestved.dk/p/Files/Boligdata/AfdelingsdokumenterFraEG/01_025/Afdelingsm&#xF8;de/Indkaldelse/2020-09-17-Indkaldelse.pdf)

###

                                                Forslag

[2025-08-13 Forslag.pdf](https://bolignaestved.dk/p/Files/Boligdata/AfdelingsdokumenterFraEG/01_025/Afdelingsm&#xF8;de/Forslag/2025-08-13-Forslag.pdf)
                                            [2024-08-12 Forslag.pdf](https://bolignaestved.dk/p/Files/Boligdata/AfdelingsdokumenterFraEG/01_025/Afdelingsm&#xF8;de/Forslag/2024-08-12-Forslag.pdf)
                                            [2023-08-10 Forslag.pdf](https://bolignaestved.dk/p/Files/Boligdata/AfdelingsdokumenterFraEG/01_025/Afdelingsm&#xF8;de/Forslag/2023-08-10-Forslag.pdf)
                                            [2022-08-10 Forslag.pdf](https://bolignaestved.dk/p/Files/Boligdata/AfdelingsdokumenterFraEG/01_025/Afdelingsm&#xF8;de/Forslag/2022-08-10-Forslag.pdf)
                                            [2020-09-17 Forslag.pdf](https://bolignaestved.dk/p/Files/Boligdata/AfdelingsdokumenterFraEG/01_025/Afdelingsm&#xF8;de/Forslag/2020-09-17-Forslag.pdf)

###

                                                Referat

[2025-08-13 Referat.pdf](https://bolignaestved.dk/p/Files/Boligdata/AfdelingsdokumenterFraEG/01_025/Afdelingsm&#xF8;de/Referat/2025-08-13-Referat.pdf)
                                            [2024-08-12 Referat.pdf](https://bolignaestved.dk/p/Files/Boligdata/AfdelingsdokumenterFraEG/01_025/Afdelingsm&#xF8;de/Referat/2024-08-12-Referat.pdf)
                                            [2023-08-10 Referat.pdf](https://bolignaestved.dk/p/Files/Boligdata/AfdelingsdokumenterFraEG/01_025/Afdelingsm&#xF8;de/Referat/2023-08-10-Referat.pdf)
                                            [2022-08-10 Referat.pdf](https://bolignaestved.dk/p/Files/Boligdata/AfdelingsdokumenterFraEG/01_025/Afdelingsm&#xF8;de/Referat/2022-08-10-Referat.pdf)
                                            [2021-08-11 Referat.pdf](https://bolignaestved.dk/p/Files/Boligdata/AfdelingsdokumenterFraEG/01_025/Afdelingsm&#xF8;de/Referat/2021-08-11-Referat.pdf)
                                            [2020-09-17 Referat.pdf](https://bolignaestved.dk/p/Files/Boligdata/AfdelingsdokumenterFraEG/01_025/Afdelingsm&#xF8;de/Referat/2020-09-17-Referat.pdf)
                                            [2020-01-23 Referat.pdf](https://bolignaestved.dk/p/Files/Boligdata/AfdelingsdokumenterFraEG/01_025/Afdelingsm&#xF8;de/Referat/2020-01-23-Referat.pdf)

## Afdelingens dokumenter

Her finder du nyttig information fra din afdeling, såsom budget, regnskab, ordensreglement m.m.

###

                                                Budget

[Budget 2026.pdf](https://bolignaestved.dk/p/Files/Boligdata/AfdelingsdokumenterFraEG/01_025/Afdelingens%20dokumenter/Budget/Budget-2026.pdf)
                                            [Budget 2025.pdf](https://bolignaestved.dk/p/Files/Boligdata/AfdelingsdokumenterFraEG/01_025/Afdelingens%20dokumenter/Budget/Budget-2025.pdf)
                                            [Budget 2024.pdf](https://bolignaestved.dk/p/Files/Boligdata/AfdelingsdokumenterFraEG/01_025/Afdelingens%20dokumenter/Budget/Budget-2024.pdf)
                                            [Budget 2023.pdf](https://bolignaestved.dk/p/Files/Boligdata/AfdelingsdokumenterFraEG/01_025/Afdelingens%20dokumenter/Budget/Budget-2023.pdf)
                                            [Budget 2022.pdf](https://bolignaestved.dk/p/Files/Boligdata/AfdelingsdokumenterFraEG/01_025/Afdelingens%20dokumenter/Budget/Budget-2022.pdf)

###

                                                Årsregnskab

[Årsregnskab 2025.pdf](https://bolignaestved.dk/p/Files/Boligdata/AfdelingsdokumenterFraEG/01_025/Afdelingens%20dokumenter/&#xC5;rsregnskab/&#xC5;rsregnskab-2025.pdf)
                                            [Årsregnskab 2024.pdf](https://bolignaestved.dk/p/Files/Boligdata/AfdelingsdokumenterFraEG/01_025/Afdelingens%20dokumenter/&#xC5;rsregnskab/&#xC5;rsregnskab-2024.pdf)
                                            [Årsregnskab 2023.pdf](https://bolignaestved.dk/p/Files/Boligdata/AfdelingsdokumenterFraEG/01_025/Afdelingens%20dokumenter/&#xC5;rsregnskab/&#xC5;rsregnskab-2023.pdf)
                                            [Årsregnskab 2022.pdf](https://bolignaestved.dk/p/Files/Boligdata/AfdelingsdokumenterFraEG/01_025/Afdelingens%20dokumenter/&#xC5;rsregnskab/&#xC5;rsregnskab-2022.pdf)
                                            [Årsregnskab 2021.pdf](https://bolignaestved.dk/p/Files/Boligdata/AfdelingsdokumenterFraEG/01_025/Afdelingens%20dokumenter/&#xC5;rsregnskab/&#xC5;rsregnskab-2021.pdf)

###

                                                Ordensreglement

[Ordensreglement.pdf](https://bolignaestved.dk/p/Files/Boligdata/AfdelingsdokumenterFraEG/01_025/Afdelingens%20dokumenter/Ordensreglement/Ordensreglement.pdf)

###

                                                Vedligeholdelsesreglement

[Vedligeholdelsesreglement.pdf](https://bolignaestved.dk/p/Files/Boligdata/AfdelingsdokumenterFraEG/01_025/Afdelingens%20dokumenter/Vedligeholdelsesreglement/Vedligeholdelsesreglement.pdf)

###

                                                Energimærke

[Energimærke bygning 1.pdf](https://bolignaestved.dk/p/Files/Boligdata/AfdelingsdokumenterFraEG/01_025/Afdelingens%20dokumenter/Energim&#xE6;rke/Energim&#xE6;rke-bygning-1.pdf)
                                            [Energimærke bygning 2.pdf](https://bolignaestved.dk/p/Files/Boligdata/AfdelingsdokumenterFraEG/01_025/Afdelingens%20dokumenter/Energim&#xE6;rke/Energim&#xE6;rke-bygning-2.pdf)
                                            [Energimærke bygning 3.pdf](https://bolignaestved.dk/p/Files/Boligdata/AfdelingsdokumenterFraEG/01_025/Afdelingens%20dokumenter/Energim&#xE6;rke/Energim&#xE6;rke-bygning-3.pdf)

###

                                                Andre dokumenter

[Vejledning ILOQ låsesystem.pdf](https://bolignaestved.dk/p/Files/Boligdata/AfdelingsdokumenterFraEG/01_025/Afdelingens%20dokumenter/Andre%20dokumenter/Vejledning-ILOQ-l&#xE5;sesystem.pdf)
                                            [Velkomstpjece.pdf](https://bolignaestved.dk/p/Files/Boligdata/AfdelingsdokumenterFraEG/01_025/Afdelingens%20dokumenter/Andre%20dokumenter/Velkomstpjece.pdf)

## Afdelingsbestyrelse

Her finder du nyttig information fra afdelinsbestyrelse i din afdeling.

## Placering
