---
title: "Afdeling 021 Green Way/Firkløver"
description: "1-21"
date: "2026-05-26"
created: "2025-09-25"
---

-
-
-
-
-
-
-
-
-

https://maps.google.dk/?q=55.2409445,11.7820149

# Afdeling 021 Green Way/Firkløver

Afdeling 21

## Velkommen til Afdeling 021 Green Way/Firkløver

Afdelingen er opført som etagebyggeri bestående af 7 blokke med i alt 68 boliger fordelt med 2 og 3 vær. Afdelingen ligger i et alsidigt boligkvarter tæt ved skoler, institutioner, dagligvarebutikker samt offentlig transport, alt tilgængeligt via et veludbygget stisystem samt gangbroer. Kalbyrisskoven er ligeledes i rimelig afstand. Boligerne indeholder køle/fryseskab, komfur, emhætte og ikke andre hårde hvidevarer. Der er egen mindre have til boliger i stueplan samt fælles haveanlæg med legeplads.

## Fakta for afdelingen...

Altan/have

Ja

Der er have eller altan til lejligheden

Antal/størrelse

Se mere

8 stk 2 rums 64,7 m2, 8 stk 2 rums 67,4 m2, 8 stk 2 rums 75,5 m2, 16 stk 2 rums 69 m2, 12 stk 3 rums 84,1 m2 16 stk 3 rums 92,4 m2.

Beboerhus

Nej

Byggeår

1995 og 2004

Carport/garage

Nej

Elevator

Nej

Husdyrhold

Se mere

1 hund og 1 kat. Det er ikke tilladt af holde krybdyr, farlige insekter og lignende.

Hårde hvidevarer

Ja

Køle/fryseskab, komfur, emhætte og ikke andre hårde hvidevarer.

Kælderrum/udhus

Ja

Kælderrum eller udhus/skur

Legeplads

Ja

Tv/Internet

Ja

Frit valg blandt udbydere af tv/internet

Vaskeri

Nej

Ventetider

Se mere

2 til 5 år

Ældreboliger/ungdomsboliger

Nej/Nej

                        Se flere

## Boliger i afdelingen

Familiebolig

2 værelses

Familiebolig

Familiebolig

3 værelses

Familiebolig

Boligtype

Værelser

Størrelse

Husleje u. forbrug

Indskud

Plantegning

Familiebolig

2

69 m²

7134 kr.

19251 kr.

![](https://bolignaestved.dk/i/MOLIRIMEDIA/9d58c455-8bd5-47e6-0e56-08ddde57396d?width=800)

Familiebolig

2

75.5 m²

6252 kr.

21065 kr.

![](https://bolignaestved.dk/i/MOLIRIMEDIA/c27508c1-ee19-4b13-0d51-08ddde57396d?width=800)

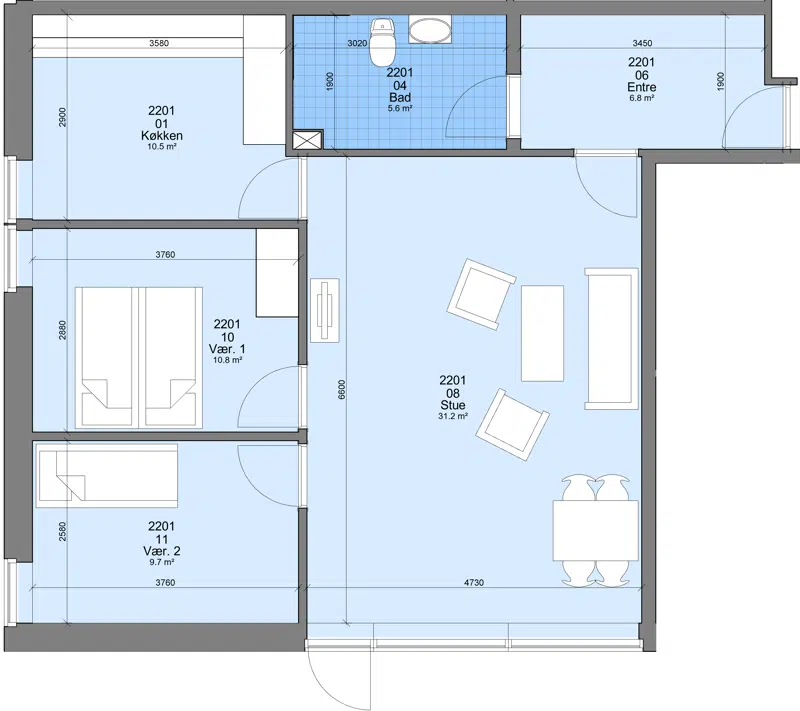
Familiebolig

3

92.4 m²

8873 kr.

25780 kr.

![](https://bolignaestved.dk/i/MOLIRIMEDIA/6836fcb5-e29b-48b6-11c3-08ddde57396d?width=800)

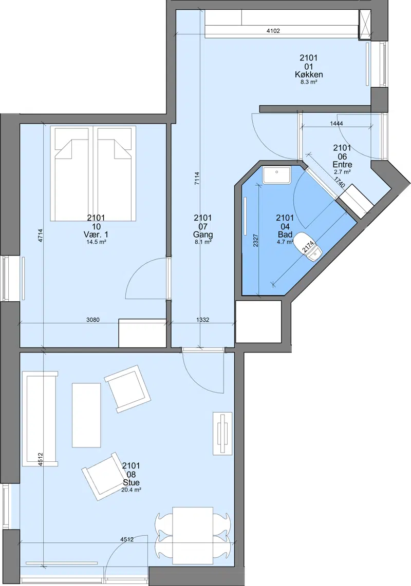
Familiebolig

3

84.1 m²

6732 kr.

23464 kr.

![](https://bolignaestved.dk/i/MOLIRIMEDIA/1ee6f3b4-3bdf-4e5a-0f54-08ddde57396d?width=800)

## Driftscenter

### Kontakt dit driftscenter

Adresse:

Birkehegnet 334

4700 Næstved

55735215

birkehegnet@bolignaestved.dk

### Åbningstider

Telefonisk henvendelse:

Mandag - fredag kl. 8.30-10.00

.............................................

Personlig henvendelse:

Kun efter forudgående aftale (bestil tid)

## Personale

### Steen Harting Ibsen

Driftsleder

### Kim Trane Johansen

Driftslederassistent

### Ladigar Ôztürk

Kontormedarbejder

### Henrik Haar

Ejendomsfunktionær

### Henrik Christiansen

Ejendomsfunktionær

### Kenneth Steen Boiken Andersen

Ejendomsfunktionær

### Martin Teglgaard Wichmann

Ejendomsfunktionær

### Sadeq Khedri

Ejendomsfunktionær

### Bent Storch

Ejendomsfunktionær

### Muhidin Salihovic

Ejendomsfunktionær

## Bestyrelsen

Navn

Titel

Gina Juanita Kohlhoff

Formand

Heidi Bjerg Pedersen

Medlem

Jette Ptak

Medlem

Ditte Nukunu

Suppleant 1

Erik Amtoft Hansen

Suppleant 2

Lykke Stenum Bannergaard

Suppleant 3

## Repræsentantskab

Navn

Titel

Heidi Bjerg Pedersen

Medlem

Ditte Nukunu

Suppleant 1

## Afdelingsmøde

Her finder du nyttig information afdelingsmøder, såsom forslag, referater m.m.

###

                                                Forretningsorden

[Forretningsorden.pdf](https://bolignaestved.dk/p/Files/Boligdata/AfdelingsdokumenterFraEG/01_021/Afdelingsm&#xF8;de/Forretningsorden/Forretningsorden.pdf)

###

                                                Indkaldelse

[2025-09-17 Indkaldelse.pdf](https://bolignaestved.dk/p/Files/Boligdata/AfdelingsdokumenterFraEG/01_021/Afdelingsm&#xF8;de/Indkaldelse/2025-09-17-Indkaldelse.pdf)
                                            [2024-09-19 Indkaldelse.pdf](https://bolignaestved.dk/p/Files/Boligdata/AfdelingsdokumenterFraEG/01_021/Afdelingsm&#xF8;de/Indkaldelse/2024-09-19-Indkaldelse.pdf)
                                            [2023-11-28 Indkaldelse ekstraordinært afd. møde.pdf](https://bolignaestved.dk/p/Files/Boligdata/AfdelingsdokumenterFraEG/01_021/Afdelingsm&#xF8;de/Indkaldelse/2023-11-28-Indkaldelse-ekstraordin&#xE6;rt-afd.-m&#xF8;de.pdf)
                                            [2023-09-21 Indkaldelse.pdf](https://bolignaestved.dk/p/Files/Boligdata/AfdelingsdokumenterFraEG/01_021/Afdelingsm&#xF8;de/Indkaldelse/2023-09-21-Indkaldelse.pdf)
                                            [2022-11-08 Indkaldelse ekstraordinært afd. møde.pdf](https://bolignaestved.dk/p/Files/Boligdata/AfdelingsdokumenterFraEG/01_021/Afdelingsm&#xF8;de/Indkaldelse/2022-11-08-Indkaldelse-ekstraordin&#xE6;rt-afd.-m&#xF8;de.pdf)
                                            [2022-08-18 Indkaldelse.pdf](https://bolignaestved.dk/p/Files/Boligdata/AfdelingsdokumenterFraEG/01_021/Afdelingsm&#xF8;de/Indkaldelse/2022-08-18-Indkaldelse.pdf)
                                            [2022-06-15 Indkaldelse ekstraordinært afd. møde.pdf](https://bolignaestved.dk/p/Files/Boligdata/AfdelingsdokumenterFraEG/01_021/Afdelingsm&#xF8;de/Indkaldelse/2022-06-15-Indkaldelse-ekstraordin&#xE6;rt-afd.-m&#xF8;de.pdf)
                                            [2021-08-19 Indkaldelse.pdf](https://bolignaestved.dk/p/Files/Boligdata/AfdelingsdokumenterFraEG/01_021/Afdelingsm&#xF8;de/Indkaldelse/2021-08-19-Indkaldelse.pdf)
                                            [2020-08-20 Indkaldelse.pdf](https://bolignaestved.dk/p/Files/Boligdata/AfdelingsdokumenterFraEG/01_021/Afdelingsm&#xF8;de/Indkaldelse/2020-08-20-Indkaldelse.pdf)
                                            [2020-08-19 Indkaldelse.pdf](https://bolignaestved.dk/p/Files/Boligdata/AfdelingsdokumenterFraEG/01_021/Afdelingsm&#xF8;de/Indkaldelse/2020-08-19-Indkaldelse.pdf)

###

                                                Forslag

[2024-09-19 Forslag.pdf](https://bolignaestved.dk/p/Files/Boligdata/AfdelingsdokumenterFraEG/01_021/Afdelingsm&#xF8;de/Forslag/2024-09-19-Forslag.pdf)
                                            [2023-09-21 Forslag.pdf](https://bolignaestved.dk/p/Files/Boligdata/AfdelingsdokumenterFraEG/01_021/Afdelingsm&#xF8;de/Forslag/2023-09-21-Forslag.pdf)
                                            [2022-08-18 Forslag.pdf](https://bolignaestved.dk/p/Files/Boligdata/AfdelingsdokumenterFraEG/01_021/Afdelingsm&#xF8;de/Forslag/2022-08-18-Forslag.pdf)
                                            [2021-08-19 Forslag.pdf](https://bolignaestved.dk/p/Files/Boligdata/AfdelingsdokumenterFraEG/01_021/Afdelingsm&#xF8;de/Forslag/2021-08-19-Forslag.pdf)
                                            [2020-08-20 Forslag.pdf](https://bolignaestved.dk/p/Files/Boligdata/AfdelingsdokumenterFraEG/01_021/Afdelingsm&#xF8;de/Forslag/2020-08-20-Forslag.pdf)
                                            [2020-08-19 Forslag.pdf](https://bolignaestved.dk/p/Files/Boligdata/AfdelingsdokumenterFraEG/01_021/Afdelingsm&#xF8;de/Forslag/2020-08-19-Forslag.pdf)

###

                                                Referat

[2025-09-17 Referat.pdf](https://bolignaestved.dk/p/Files/Boligdata/AfdelingsdokumenterFraEG/01_021/Afdelingsm&#xF8;de/Referat/2025-09-17-Referat.pdf)
                                            [2024-09-19 Referat.pdf](https://bolignaestved.dk/p/Files/Boligdata/AfdelingsdokumenterFraEG/01_021/Afdelingsm&#xF8;de/Referat/2024-09-19-Referat.pdf)
                                            [2023-11-28 Referat.pdf](https://bolignaestved.dk/p/Files/Boligdata/AfdelingsdokumenterFraEG/01_021/Afdelingsm&#xF8;de/Referat/2023-11-28-Referat.pdf)
                                            [2023-09-21 Referat.pdf](https://bolignaestved.dk/p/Files/Boligdata/AfdelingsdokumenterFraEG/01_021/Afdelingsm&#xF8;de/Referat/2023-09-21-Referat.pdf)
                                            [2022-11-08 Referat.pdf](https://bolignaestved.dk/p/Files/Boligdata/AfdelingsdokumenterFraEG/01_021/Afdelingsm&#xF8;de/Referat/2022-11-08-Referat.pdf)
                                            [2022-08-18 Referat.pdf](https://bolignaestved.dk/p/Files/Boligdata/AfdelingsdokumenterFraEG/01_021/Afdelingsm&#xF8;de/Referat/2022-08-18-Referat.pdf)
                                            [2022-06-15 Referat Ekstraordinært afd. møde.pdf](https://bolignaestved.dk/p/Files/Boligdata/AfdelingsdokumenterFraEG/01_021/Afdelingsm&#xF8;de/Referat/2022-06-15-Referat-Ekstraordin&#xE6;rt-afd.-m&#xF8;de.pdf)
                                            [2021-08-19 Referat.pdf](https://bolignaestved.dk/p/Files/Boligdata/AfdelingsdokumenterFraEG/01_021/Afdelingsm&#xF8;de/Referat/2021-08-19-Referat.pdf)
                                            [2020-08-20 Referat.pdf](https://bolignaestved.dk/p/Files/Boligdata/AfdelingsdokumenterFraEG/01_021/Afdelingsm&#xF8;de/Referat/2020-08-20-Referat.pdf)
                                            [2020-08-19 Referat.pdf](https://bolignaestved.dk/p/Files/Boligdata/AfdelingsdokumenterFraEG/01_021/Afdelingsm&#xF8;de/Referat/2020-08-19-Referat.pdf)

## Afdelingens dokumenter

Her finder du nyttig information fra din afdeling, såsom budget, regnskab, ordensreglement m.m.

###

                                                Budget

[Budget 2026.pdf](https://bolignaestved.dk/p/Files/Boligdata/AfdelingsdokumenterFraEG/01_021/Afdelingens%20dokumenter/Budget/Budget-2026.pdf)
                                            [Budget 2025.pdf](https://bolignaestved.dk/p/Files/Boligdata/AfdelingsdokumenterFraEG/01_021/Afdelingens%20dokumenter/Budget/Budget-2025.pdf)
                                            [Budget 2024.pdf](https://bolignaestved.dk/p/Files/Boligdata/AfdelingsdokumenterFraEG/01_021/Afdelingens%20dokumenter/Budget/Budget-2024.pdf)
                                            [Budget 2023.pdf](https://bolignaestved.dk/p/Files/Boligdata/AfdelingsdokumenterFraEG/01_021/Afdelingens%20dokumenter/Budget/Budget-2023.pdf)
                                            [Budget 2022.pdf](https://bolignaestved.dk/p/Files/Boligdata/AfdelingsdokumenterFraEG/01_021/Afdelingens%20dokumenter/Budget/Budget-2022.pdf)

###

                                                Årsregnskab

[Årsregnskab 2024.pdf](https://bolignaestved.dk/p/Files/Boligdata/AfdelingsdokumenterFraEG/01_021/Afdelingens%20dokumenter/&#xC5;rsregnskab/&#xC5;rsregnskab-2024.pdf)
                                            [Årsregnskab 2023.pdf](https://bolignaestved.dk/p/Files/Boligdata/AfdelingsdokumenterFraEG/01_021/Afdelingens%20dokumenter/&#xC5;rsregnskab/&#xC5;rsregnskab-2023.pdf)
                                            [Årsregnskab 2022.pdf](https://bolignaestved.dk/p/Files/Boligdata/AfdelingsdokumenterFraEG/01_021/Afdelingens%20dokumenter/&#xC5;rsregnskab/&#xC5;rsregnskab-2022.pdf)
                                            [Årsregnskab 2021.pdf](https://bolignaestved.dk/p/Files/Boligdata/AfdelingsdokumenterFraEG/01_021/Afdelingens%20dokumenter/&#xC5;rsregnskab/&#xC5;rsregnskab-2021.pdf)

###

                                                Ordensreglement

[Ordensreglement.pdf](https://bolignaestved.dk/p/Files/Boligdata/AfdelingsdokumenterFraEG/01_021/Afdelingens%20dokumenter/Ordensreglement/Ordensreglement.pdf)

###

                                                Vedligeholdelsesreglement

[Vedligeholdelsesreglement.pdf](https://bolignaestved.dk/p/Files/Boligdata/AfdelingsdokumenterFraEG/01_021/Afdelingens%20dokumenter/Vedligeholdelsesreglement/Vedligeholdelsesreglement.pdf)

###

                                                Råderetskatalog

[Råderetskatalog.pdf](https://bolignaestved.dk/p/Files/Boligdata/AfdelingsdokumenterFraEG/01_021/Afdelingens%20dokumenter/R&#xE5;deretskatalog/R&#xE5;deretskatalog.pdf)

###

                                                Energimærke

[Energimærke Firkløver.pdf](https://bolignaestved.dk/p/Files/Boligdata/AfdelingsdokumenterFraEG/01_021/Afdelingens%20dokumenter/Energim&#xE6;rke/Energim&#xE6;rke-Firkl&#xF8;ver.pdf)
                                            [Energimærke Greenway.pdf](https://bolignaestved.dk/p/Files/Boligdata/AfdelingsdokumenterFraEG/01_021/Afdelingens%20dokumenter/Energim&#xE6;rke/Energim&#xE6;rke-Greenway.pdf)

###

                                                Andre dokumenter

[Vejledning ILOQ låsesystem.pdf](https://bolignaestved.dk/p/Files/Boligdata/AfdelingsdokumenterFraEG/01_021/Afdelingens%20dokumenter/Andre%20dokumenter/Vejledning-ILOQ-l&#xE5;sesystem.pdf)
                                            [Velkomstpjece.pdf](https://bolignaestved.dk/p/Files/Boligdata/AfdelingsdokumenterFraEG/01_021/Afdelingens%20dokumenter/Andre%20dokumenter/Velkomstpjece.pdf)

## Afdelingsbestyrelse

Her finder du nyttig information fra afdelinsbestyrelse i din afdeling.

###

                                                Referat

[2025-12-27 Referat.pdf](https://bolignaestved.dk/p/Files/Boligdata/AfdelingsdokumenterFraEG/01_021/Afdelingsbestyrelse/Referat/2025-12-27-Referat.pdf)
                                            [2025-11-25 Referat.pdf](https://bolignaestved.dk/p/Files/Boligdata/AfdelingsdokumenterFraEG/01_021/Afdelingsbestyrelse/Referat/2025-11-25-Referat.pdf)
                                            [2025-08-27 Referat.pdf](https://bolignaestved.dk/p/Files/Boligdata/AfdelingsdokumenterFraEG/01_021/Afdelingsbestyrelse/Referat/2025-08-27-Referat.pdf)
                                            [2025-05-14 Referat.pdf](https://bolignaestved.dk/p/Files/Boligdata/AfdelingsdokumenterFraEG/01_021/Afdelingsbestyrelse/Referat/2025-05-14-Referat.pdf)
                                            [2025-03-12 Referat.pdf](https://bolignaestved.dk/p/Files/Boligdata/AfdelingsdokumenterFraEG/01_021/Afdelingsbestyrelse/Referat/2025-03-12-Referat.pdf)
                                            [2025-01-30 Referat.pdf](https://bolignaestved.dk/p/Files/Boligdata/AfdelingsdokumenterFraEG/01_021/Afdelingsbestyrelse/Referat/2025-01-30-Referat.pdf)
                                            [2024-10-01 Referat.pdf](https://bolignaestved.dk/p/Files/Boligdata/AfdelingsdokumenterFraEG/01_021/Afdelingsbestyrelse/Referat/2024-10-01-Referat.pdf)
                                            [2023-10-11 Referat.pdf](https://bolignaestved.dk/p/Files/Boligdata/AfdelingsdokumenterFraEG/01_021/Afdelingsbestyrelse/Referat/2023-10-11-Referat.pdf)
                                            [2023-03-18 Referat.pdf](https://bolignaestved.dk/p/Files/Boligdata/AfdelingsdokumenterFraEG/01_021/Afdelingsbestyrelse/Referat/2023-03-18-Referat.pdf)
                                            [2022-07-25 Referat.pdf](https://bolignaestved.dk/p/Files/Boligdata/AfdelingsdokumenterFraEG/01_021/Afdelingsbestyrelse/Referat/2022-07-25-Referat.pdf)
                                            [2022-06-06 Referat.pdf](https://bolignaestved.dk/p/Files/Boligdata/AfdelingsdokumenterFraEG/01_021/Afdelingsbestyrelse/Referat/2022-06-06-Referat.pdf)
                                            [2021-11-17 Referat.pdf](https://bolignaestved.dk/p/Files/Boligdata/AfdelingsdokumenterFraEG/01_021/Afdelingsbestyrelse/Referat/2021-11-17-Referat.pdf)

## Placering
