---
title: "Afdeling 018 Spjellerup"
description: "1-18"
date: "2026-05-27"
created: "2025-09-25"
---

-
-
-
-
-
-
-
-
-
-
-
-

https://maps.google.dk/?q=55.2235668,11.5559815

# Afdeling 018 Spjellerup

Afdeling 18

## Velkommen til Afdeling 018 Spjellerup

Afdelingen består af rækkehuse med i alt 10 boliger fordelt som 2, 3 og 4 vær. Boligerne indeholder køle/fryseskab, komfur, emhætteog ikke andre hårde hvidevarer. Der er adgang til fælles vaskeri samt dejlig stor fælleshave med legeplads. 6 af boligerne har egen have og alle boliger har mindre udhus. Afdelingen ligger i det hyggelige Spjellerup ca.13 km fra Næstved Centrum, ca. 1 km fra Menstrup med dagligvarebutik samt Menstrup Kro. I afstand af ca. 8 km forefindes Bisserup Strand og Camping. Flere daglige busforbindelser til Næstved samt skolebus.

## Fakta for afdelingen...

Altan/have

Ja

Dejlig stor fælleshave. 7 boliger har desuden egen have

Antal/størrelse

Se mere

4 stk 2 rums 58-71 m2, 5 stk 3 rums 74-90 m2, 1 stk 4 rums 98 m2

Beboerhus

Nej

Byggeår

1990. 6 boliger ombygget 2015

Carport/garage

Nej

Elevator

Nej

Husdyrhold

Se mere

1 husdyr

Hårde hvidevarer

Ja

Køle/fryseskab, komfur, emhætte og ikke andre hårde hvidevarer.

Kælderrum/udhus

Ja

Mindre udhus til hver bolig

Legeplads

Ja

Tv/Internet

Ja

Frit valg blandt udbydere af tv/internet

Vaskeri

Ja

Ja, fællesvaskeri i kælder

Ventetider

Se mere

2 til 5 år

Ældreboliger/ungdomsboliger

Nej

                        Se flere

## Boliger i afdelingen

Familiebolig

2 værelses

Familiebolig

Familiebolig

3 værelses

Familiebolig

Familiebolig

4 værelses

Familiebolig

Boligtype

Værelser

Størrelse

Husleje u. forbrug

Indskud

Plantegning

Familiebolig

2

56.8 m²

4199 kr.

15847 kr.

![](https://bolignaestved.dk/i/MOLIRIMEDIA/b75b137d-8d22-46dc-08f8-08ddde57396d?width=800)

Familiebolig

2

71.85 m²

5706 kr.

20046 kr.

![](https://bolignaestved.dk/i/MOLIRIMEDIA/9760959e-77e5-4f0a-0876-08ddde57396d?width=800)

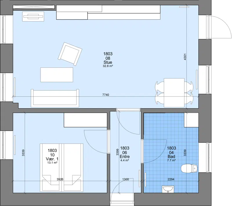
Familiebolig

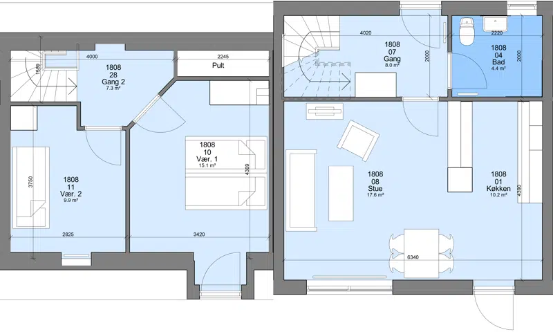
3

84.6 m²

6387 kr.

23603 kr.

![](https://bolignaestved.dk/i/MOLIRIMEDIA/27520915-ccc1-49b0-0e33-08ddde57396d?width=800)

Familiebolig

4

95.4 m²

7240 kr.

26617 kr.

![](https://bolignaestved.dk/i/MOLIRIMEDIA/c2404b83-10e3-4e70-0f1b-08ddde57396d?width=800)

## Driftscenter

### Kontakt dit driftscenter

Adresse:

Fodbygårdsvej 16

4700 Næstved

55723497

fodbygaardsvej@bolignaestved.dk

### Åbningstider

Telefonisk henvendelse:

Mandag - fredag kl 8.30-10.00

.............................................

Personlig henvendelse:

Kun efter forudgående aftale (bestil tid)

## Personale

### Jacob Clausen

Driftsleder

### Hans-Henrik Friis Jørgensen

Driftslederassistent

### Gitte Jacobsen

Kontormedarbejder

### Per Larsen

Ejendomsfunktionær

### Sigurdur R. Gislason

Ejendomsfunktionær

### Morten Ambus

Ejendomsfunktionær

### Benny Jensen

Ejendomsfunktionær

### Claus Ove Pedersen

Ejendomsfunktionær

### Jens-Jørgen Klausen

Ejendomsfunktionær

### Bo Pedersen

Ejendomsfunktionær

## Bestyrelsen

Navn

Titel

Ingen afdelingsbestyrelse

Medlem

## Repræsentantskab

Navn

Titel

Ingen repræsentantskabsmedlemmer

Medlem

## Afdelingsmøde

Her finder du nyttig information afdelingsmøder, såsom forslag, referater m.m.

###

                                                Forretningsorden

[Forretningsorden.pdf](https://bolignaestved.dk/p/Files/Boligdata/AfdelingsdokumenterFraEG/01_018/Afdelingsm&#xF8;de/Forretningsorden/Forretningsorden.pdf)

###

                                                Indkaldelse

[2026-02-18 Indkaldelse ekstraordinært afd. møde.pdf](https://bolignaestved.dk/p/Files/Boligdata/AfdelingsdokumenterFraEG/01_018/Afdelingsm&#xF8;de/Indkaldelse/2026-02-18-Indkaldelse-ekstraordin&#xE6;rt-afd.-m&#xF8;de.pdf)
                                            [2025-08-14 Indkaldelse.pdf](https://bolignaestved.dk/p/Files/Boligdata/AfdelingsdokumenterFraEG/01_018/Afdelingsm&#xF8;de/Indkaldelse/2025-08-14-Indkaldelse.pdf)
                                            [2025-06-30 Indkaldelse.pdf](https://bolignaestved.dk/p/Files/Boligdata/AfdelingsdokumenterFraEG/01_018/Afdelingsm&#xF8;de/Indkaldelse/2025-06-30-Indkaldelse.pdf)
                                            [2024-08-21 Indkaldelse.pdf](https://bolignaestved.dk/p/Files/Boligdata/AfdelingsdokumenterFraEG/01_018/Afdelingsm&#xF8;de/Indkaldelse/2024-08-21-Indkaldelse.pdf)
                                            [2023-08-17 Indkaldelse.pdf](https://bolignaestved.dk/p/Files/Boligdata/AfdelingsdokumenterFraEG/01_018/Afdelingsm&#xF8;de/Indkaldelse/2023-08-17-Indkaldelse.pdf)
                                            [2022-08-17 Indkaldelse.pdf](https://bolignaestved.dk/p/Files/Boligdata/AfdelingsdokumenterFraEG/01_018/Afdelingsm&#xF8;de/Indkaldelse/2022-08-17-Indkaldelse.pdf)
                                            [2021-08-18 Indkaldelse.pdf](https://bolignaestved.dk/p/Files/Boligdata/AfdelingsdokumenterFraEG/01_018/Afdelingsm&#xF8;de/Indkaldelse/2021-08-18-Indkaldelse.pdf)
                                            [2020-08-18 Indkaldelse.pdf](https://bolignaestved.dk/p/Files/Boligdata/AfdelingsdokumenterFraEG/01_018/Afdelingsm&#xF8;de/Indkaldelse/2020-08-18-Indkaldelse.pdf)

###

                                                Forslag

[2025-08-14 Forslag.pdf](https://bolignaestved.dk/p/Files/Boligdata/AfdelingsdokumenterFraEG/01_018/Afdelingsm&#xF8;de/Forslag/2025-08-14-Forslag.pdf)
                                            [2024-08-21 Forslag.pdf](https://bolignaestved.dk/p/Files/Boligdata/AfdelingsdokumenterFraEG/01_018/Afdelingsm&#xF8;de/Forslag/2024-08-21-Forslag.pdf)
                                            [2023-08-17 Forslag.pdf](https://bolignaestved.dk/p/Files/Boligdata/AfdelingsdokumenterFraEG/01_018/Afdelingsm&#xF8;de/Forslag/2023-08-17-Forslag.pdf)
                                            [2022-08-17 Forslag.pdf](https://bolignaestved.dk/p/Files/Boligdata/AfdelingsdokumenterFraEG/01_018/Afdelingsm&#xF8;de/Forslag/2022-08-17-Forslag.pdf)
                                            [2021-08-18 Forslag.pdf](https://bolignaestved.dk/p/Files/Boligdata/AfdelingsdokumenterFraEG/01_018/Afdelingsm&#xF8;de/Forslag/2021-08-18-Forslag.pdf)
                                            [2020-08-18 Forslag.pdf](https://bolignaestved.dk/p/Files/Boligdata/AfdelingsdokumenterFraEG/01_018/Afdelingsm&#xF8;de/Forslag/2020-08-18-Forslag.pdf)

###

                                                Referat

[2026-02-18 Referat.pdf](https://bolignaestved.dk/p/Files/Boligdata/AfdelingsdokumenterFraEG/01_018/Afdelingsm&#xF8;de/Referat/2026-02-18-Referat.pdf)
                                            [2025-08-14 Referat.pdf](https://bolignaestved.dk/p/Files/Boligdata/AfdelingsdokumenterFraEG/01_018/Afdelingsm&#xF8;de/Referat/2025-08-14-Referat.pdf)
                                            [2025-06-30 Referat.pdf](https://bolignaestved.dk/p/Files/Boligdata/AfdelingsdokumenterFraEG/01_018/Afdelingsm&#xF8;de/Referat/2025-06-30-Referat.pdf)
                                            [2024-08-21 Referat.pdf](https://bolignaestved.dk/p/Files/Boligdata/AfdelingsdokumenterFraEG/01_018/Afdelingsm&#xF8;de/Referat/2024-08-21-Referat.pdf)
                                            [2023-08-17 Referat.pdf](https://bolignaestved.dk/p/Files/Boligdata/AfdelingsdokumenterFraEG/01_018/Afdelingsm&#xF8;de/Referat/2023-08-17-Referat.pdf)
                                            [2022-08-17 Referat.pdf](https://bolignaestved.dk/p/Files/Boligdata/AfdelingsdokumenterFraEG/01_018/Afdelingsm&#xF8;de/Referat/2022-08-17-Referat.pdf)
                                            [2021-08-18 Referat.pdf](https://bolignaestved.dk/p/Files/Boligdata/AfdelingsdokumenterFraEG/01_018/Afdelingsm&#xF8;de/Referat/2021-08-18-Referat.pdf)
                                            [2020-08-18 Referat.pdf](https://bolignaestved.dk/p/Files/Boligdata/AfdelingsdokumenterFraEG/01_018/Afdelingsm&#xF8;de/Referat/2020-08-18-Referat.pdf)

## Afdelingens dokumenter

Her finder du nyttig information fra din afdeling, såsom budget, regnskab, ordensreglement m.m.

###

                                                Budget

[Budget 2026.pdf](https://bolignaestved.dk/p/Files/Boligdata/AfdelingsdokumenterFraEG/01_018/Afdelingens%20dokumenter/Budget/Budget-2026.pdf)
                                            [Budget 2025.pdf](https://bolignaestved.dk/p/Files/Boligdata/AfdelingsdokumenterFraEG/01_018/Afdelingens%20dokumenter/Budget/Budget-2025.pdf)
                                            [Budget 2024.pdf](https://bolignaestved.dk/p/Files/Boligdata/AfdelingsdokumenterFraEG/01_018/Afdelingens%20dokumenter/Budget/Budget-2024.pdf)
                                            [Budget 2023.pdf](https://bolignaestved.dk/p/Files/Boligdata/AfdelingsdokumenterFraEG/01_018/Afdelingens%20dokumenter/Budget/Budget-2023.pdf)
                                            [Budget 2022.pdf](https://bolignaestved.dk/p/Files/Boligdata/AfdelingsdokumenterFraEG/01_018/Afdelingens%20dokumenter/Budget/Budget-2022.pdf)

###

                                                Årsregnskab

[Årsregnskab 2025.pdf](https://bolignaestved.dk/p/Files/Boligdata/AfdelingsdokumenterFraEG/01_018/Afdelingens%20dokumenter/&#xC5;rsregnskab/&#xC5;rsregnskab-2025.pdf)
                                            [Årsregnskab 2024.pdf](https://bolignaestved.dk/p/Files/Boligdata/AfdelingsdokumenterFraEG/01_018/Afdelingens%20dokumenter/&#xC5;rsregnskab/&#xC5;rsregnskab-2024.pdf)
                                            [Årsregnskab 2023.pdf](https://bolignaestved.dk/p/Files/Boligdata/AfdelingsdokumenterFraEG/01_018/Afdelingens%20dokumenter/&#xC5;rsregnskab/&#xC5;rsregnskab-2023.pdf)
                                            [Årsregnskab 2022.pdf](https://bolignaestved.dk/p/Files/Boligdata/AfdelingsdokumenterFraEG/01_018/Afdelingens%20dokumenter/&#xC5;rsregnskab/&#xC5;rsregnskab-2022.pdf)
                                            [Årsregnskab 2021.pdf](https://bolignaestved.dk/p/Files/Boligdata/AfdelingsdokumenterFraEG/01_018/Afdelingens%20dokumenter/&#xC5;rsregnskab/&#xC5;rsregnskab-2021.pdf)

###

                                                Ordensreglement

[Ordensreglement.pdf](https://bolignaestved.dk/p/Files/Boligdata/AfdelingsdokumenterFraEG/01_018/Afdelingens%20dokumenter/Ordensreglement/Ordensreglement.pdf)

###

                                                Vedligeholdelsesreglement

[Vedligeholdelsesreglement.pdf](https://bolignaestved.dk/p/Files/Boligdata/AfdelingsdokumenterFraEG/01_018/Afdelingens%20dokumenter/Vedligeholdelsesreglement/Vedligeholdelsesreglement.pdf)

###

                                                Energimærke

[Energimærke 59A - 59 C.pdf](https://bolignaestved.dk/p/Files/Boligdata/AfdelingsdokumenterFraEG/01_018/Afdelingens%20dokumenter/Energim&#xE6;rke/energim&#xE6;rke-59A---59-C.pdf)
                                            [Energimærke 59D - 59G.pdf](https://bolignaestved.dk/p/Files/Boligdata/AfdelingsdokumenterFraEG/01_018/Afdelingens%20dokumenter/Energim&#xE6;rke/Energim&#xE6;rke-59D---59G.pdf)

###

                                                Andre dokumenter

[Velkomstpjece.pdf](https://bolignaestved.dk/p/Files/Boligdata/AfdelingsdokumenterFraEG/01_018/Afdelingens%20dokumenter/Andre%20dokumenter/Velkomstpjece.pdf)

## Afdelingsbestyrelse

Her finder du nyttig information fra afdelinsbestyrelse i din afdeling.

## Placering
