---
title: "Afdeling 017 Menstrup"
description: "1-17"
date: "2026-05-27"
created: "2025-09-25"
---

-
-
-
-
-
-
-
-
-
-
-

https://maps.google.dk/?q=55.214643,11.576962

# Afdeling 017 Menstrup

Afdeling 17

## Velkommen til Afdeling 017 Menstrup

Afdelingen består af rækkehuse med i alt 28 boliger fordelt som 2, 3 og 4 vær. Boligerne indeholder køle/fryseskab, komfur, emhætte og ikke andre hårde hvidevarer. Der er adgang til haveanlæg med enkelte legeredskaber. Hver bolig har egen have samt udhus. Afdelingen ligger ud til åbne marker, i det hyggelige Menstrup ca. 12 km fra Næstved Centrum. I nærområdet forefindes dagligvarebutik samt Menstrup Kro. I afstand af ca. 8 km forefindes Bisserup Strand og Camping. Flere daglige busforbindelser til Næstved samt skolebus.

## Fakta for afdelingen...

Altan/have

Ja

Der er have til alle boliger. Enkelte kun med forhave.

Antal/størrelse

Se mere

14 stk 2 rums 58-60,5 m2, 6 stk 3 rums 77-85 m2, 2 stk 4 rums 98,5 m2

Beboerhus

Nej

Byggeår

1988-1992

Carport/garage

Nej

Elevator

Nej

Husdyrhold

Se mere

2 husdyr

Hårde hvidevarer

Ja

Køle/fryseskab, komfur, emhætte og ikke andre hårde hvidevarer.

Kælderrum/udhus

Ja

Mindre udhus til hver bolig

Legeplads

Ja

Tv/Internet

Ja

Frit valg blandt udbydere af tv/internet

Vaskeri

Nej

Ventetider

Se mere

2 til 5 år

Ældreboliger/ungdomsboliger

Nej

                        Se flere

## Boliger i afdelingen

Familiebolig

2 værelses

Familiebolig

Familiebolig

3 værelses

Familiebolig

Familiebolig

4 værelses

Familiebolig

Boligtype

Værelser

Størrelse

Husleje u. forbrug

Indskud

Plantegning

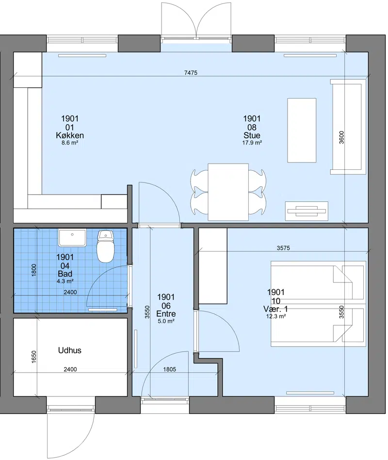
Familiebolig

2

58.9 m²

4556 kr.

16433 kr.

![](https://bolignaestved.dk/i/MOLIRIMEDIA/cbf3ea4a-df52-4374-0a0f-08ddde57396d?width=800)

Familiebolig

3

77.6 m²

5788 kr.

21650 kr.

![](https://bolignaestved.dk/i/MOLIRIMEDIA/7c1be92b-b5d3-465b-0c1e-08ddde57396d?width=800)

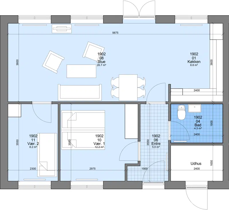
Familiebolig

3

85 m²

6391 kr.

23715 kr.

![](https://bolignaestved.dk/i/MOLIRIMEDIA/8d19201b-6d88-4a03-109e-08ddde57396d?width=800)

Familiebolig

4

98.5 m²

7409 kr.

27482 kr.

![](https://bolignaestved.dk/i/MOLIRIMEDIA/cb14ef21-ac1f-4634-1007-08ddde57396d?width=800)

## Driftscenter

### Kontakt dit driftscenter

Adresse:

Fodbygårdsvej 16

4700 Næstved

55723497

fodbygaardsvej@bolignaestved.dk

### Åbningstider

Telefonisk henvendelse:

Mandag - fredag kl 8.30-10.00

.............................................

Personlig henvendelse:

Kun efter forudgående aftale (bestil tid)

## Personale

### Jacob Clausen

Driftsleder

### Hans-Henrik Friis Jørgensen

Driftslederassistent

### Gitte Jacobsen

Kontormedarbejder

### Per Larsen

Ejendomsfunktionær

### Sigurdur R. Gislason

Ejendomsfunktionær

### Morten Ambus

Ejendomsfunktionær

### Benny Jensen

Ejendomsfunktionær

### Claus Ove Pedersen

Ejendomsfunktionær

### Jens-Jørgen Klausen

Ejendomsfunktionær

### Bo Pedersen

Ejendomsfunktionær

## Bestyrelsen

Navn

Titel

Bettina Schultz

Formand

Karl Verner Hobel Simonsen

Medlem

Bertil Fromberg

Medlem

## Repræsentantskab

Navn

Titel

Bettina Schultz

Medlem

## Afdelingsmøde

Her finder du nyttig information afdelingsmøder, såsom forslag, referater m.m.

###

                                                Forretningsorden

[Forretningsorden.pdf](https://bolignaestved.dk/p/Files/Boligdata/AfdelingsdokumenterFraEG/01_017/Afdelingsm&#xF8;de/Forretningsorden/Forretningsorden.pdf)

###

                                                Indkaldelse

[2025-08-12 Indkaldelse.pdf](https://bolignaestved.dk/p/Files/Boligdata/AfdelingsdokumenterFraEG/01_017/Afdelingsm&#xF8;de/Indkaldelse/2025-08-12-Indkaldelse.pdf)
                                            [2024-09-26 Indkaldelse.pdf](https://bolignaestved.dk/p/Files/Boligdata/AfdelingsdokumenterFraEG/01_017/Afdelingsm&#xF8;de/Indkaldelse/2024-09-26-Indkaldelse.pdf)
                                            [2024-01-18 Indkaldelse ekstraordinært afd. møde.pdf](https://bolignaestved.dk/p/Files/Boligdata/AfdelingsdokumenterFraEG/01_017/Afdelingsm&#xF8;de/Indkaldelse/2024-01-18-Indkaldelse-ekstraordin&#xE6;rt-afd.-m&#xF8;de.pdf)
                                            [2023-09-28 Indkaldelse.pdf](https://bolignaestved.dk/p/Files/Boligdata/AfdelingsdokumenterFraEG/01_017/Afdelingsm&#xF8;de/Indkaldelse/2023-09-28-Indkaldelse.pdf)
                                            [2023-03-15 Indkaldelse ekstraordinært afd. møde.pdf](https://bolignaestved.dk/p/Files/Boligdata/AfdelingsdokumenterFraEG/01_017/Afdelingsm&#xF8;de/Indkaldelse/2023-03-15-Indkaldelse-ekstraordin&#xE6;rt-afd.-m&#xF8;de.pdf)
                                            [2022-09-27 Indkaldelse.pdf](https://bolignaestved.dk/p/Files/Boligdata/AfdelingsdokumenterFraEG/01_017/Afdelingsm&#xF8;de/Indkaldelse/2022-09-27-Indkaldelse.pdf)
                                            [2021-09-20 Indkaldelse.pdf](https://bolignaestved.dk/p/Files/Boligdata/AfdelingsdokumenterFraEG/01_017/Afdelingsm&#xF8;de/Indkaldelse/2021-09-20-Indkaldelse.pdf)
                                            [2021-06-24 Indkaldelse ekstraordinært afd. møde.pdf](https://bolignaestved.dk/p/Files/Boligdata/AfdelingsdokumenterFraEG/01_017/Afdelingsm&#xF8;de/Indkaldelse/2021-06-24-Indkaldelse-ekstraordin&#xE6;rt-afd.-m&#xF8;de.pdf)
                                            [2020-09-16 Indkaldelse.pdf](https://bolignaestved.dk/p/Files/Boligdata/AfdelingsdokumenterFraEG/01_017/Afdelingsm&#xF8;de/Indkaldelse/2020-09-16-Indkaldelse.pdf)

###

                                                Forslag

[2025-08-12 Forslag.pdf](https://bolignaestved.dk/p/Files/Boligdata/AfdelingsdokumenterFraEG/01_017/Afdelingsm&#xF8;de/Forslag/2025-08-12-Forslag.pdf)
                                            [2024-09-26 Forslag.pdf](https://bolignaestved.dk/p/Files/Boligdata/AfdelingsdokumenterFraEG/01_017/Afdelingsm&#xF8;de/Forslag/2024-09-26-Forslag.pdf)
                                            [2023-09-28 Forslag.pdf](https://bolignaestved.dk/p/Files/Boligdata/AfdelingsdokumenterFraEG/01_017/Afdelingsm&#xF8;de/Forslag/2023-09-28-Forslag.pdf)
                                            [2022-09-27 Forslag.pdf](https://bolignaestved.dk/p/Files/Boligdata/AfdelingsdokumenterFraEG/01_017/Afdelingsm&#xF8;de/Forslag/2022-09-27-Forslag.pdf)
                                            [2021-09-20 Forslag.pdf](https://bolignaestved.dk/p/Files/Boligdata/AfdelingsdokumenterFraEG/01_017/Afdelingsm&#xF8;de/Forslag/2021-09-20-Forslag.pdf)
                                            [2020-09-16 Forslag.pdf](https://bolignaestved.dk/p/Files/Boligdata/AfdelingsdokumenterFraEG/01_017/Afdelingsm&#xF8;de/Forslag/2020-09-16-Forslag.pdf)

###

                                                Referat

[2025-08-12 Referat.pdf](https://bolignaestved.dk/p/Files/Boligdata/AfdelingsdokumenterFraEG/01_017/Afdelingsm&#xF8;de/Referat/2025-08-12-Referat.pdf)
                                            [2024-09-26 Referat.pdf](https://bolignaestved.dk/p/Files/Boligdata/AfdelingsdokumenterFraEG/01_017/Afdelingsm&#xF8;de/Referat/2024-09-26-Referat.pdf)
                                            [2024-01-18 Referat ekstraordinært afd. møde.pdf](https://bolignaestved.dk/p/Files/Boligdata/AfdelingsdokumenterFraEG/01_017/Afdelingsm&#xF8;de/Referat/2024-01-18-Referat-ekstraordin&#xE6;rt-afd.-m&#xF8;de.pdf)
                                            [2023-09-28 Referat.pdf](https://bolignaestved.dk/p/Files/Boligdata/AfdelingsdokumenterFraEG/01_017/Afdelingsm&#xF8;de/Referat/2023-09-28-Referat.pdf)
                                            [2022-09-27 Referat.pdf](https://bolignaestved.dk/p/Files/Boligdata/AfdelingsdokumenterFraEG/01_017/Afdelingsm&#xF8;de/Referat/2022-09-27-Referat.pdf)
                                            [2021-09-20 Referat.pdf](https://bolignaestved.dk/p/Files/Boligdata/AfdelingsdokumenterFraEG/01_017/Afdelingsm&#xF8;de/Referat/2021-09-20-Referat.pdf)
                                            [2021-06-24 Referat ekstraordinært afd. møde.pdf](https://bolignaestved.dk/p/Files/Boligdata/AfdelingsdokumenterFraEG/01_017/Afdelingsm&#xF8;de/Referat/2021-06-24-Referat-ekstraordin&#xE6;rt-afd.-m&#xF8;de.pdf)
                                            [2020-09-16 Referat.pdf](https://bolignaestved.dk/p/Files/Boligdata/AfdelingsdokumenterFraEG/01_017/Afdelingsm&#xF8;de/Referat/2020-09-16-Referat.pdf)

## Afdelingens dokumenter

Her finder du nyttig information fra din afdeling, såsom budget, regnskab, ordensreglement m.m.

###

                                                Budget

[Budget 2026.pdf](https://bolignaestved.dk/p/Files/Boligdata/AfdelingsdokumenterFraEG/01_017/Afdelingens%20dokumenter/Budget/Budget-2026.pdf)
                                            [Budget 2025.pdf](https://bolignaestved.dk/p/Files/Boligdata/AfdelingsdokumenterFraEG/01_017/Afdelingens%20dokumenter/Budget/Budget-2025.pdf)
                                            [Budget 2024.pdf](https://bolignaestved.dk/p/Files/Boligdata/AfdelingsdokumenterFraEG/01_017/Afdelingens%20dokumenter/Budget/Budget-2024.pdf)
                                            [Budget 2023.pdf](https://bolignaestved.dk/p/Files/Boligdata/AfdelingsdokumenterFraEG/01_017/Afdelingens%20dokumenter/Budget/Budget-2023.pdf)
                                            [Budget 2022.pdf](https://bolignaestved.dk/p/Files/Boligdata/AfdelingsdokumenterFraEG/01_017/Afdelingens%20dokumenter/Budget/Budget-2022.pdf)

###

                                                Årsregnskab

[Årsregnskab 2025.pdf](https://bolignaestved.dk/p/Files/Boligdata/AfdelingsdokumenterFraEG/01_017/Afdelingens%20dokumenter/&#xC5;rsregnskab/&#xC5;rsregnskab-2025.pdf)
                                            [Årsregnskab 2024.pdf](https://bolignaestved.dk/p/Files/Boligdata/AfdelingsdokumenterFraEG/01_017/Afdelingens%20dokumenter/&#xC5;rsregnskab/&#xC5;rsregnskab-2024.pdf)
                                            [Årsregnskab 2023.pdf](https://bolignaestved.dk/p/Files/Boligdata/AfdelingsdokumenterFraEG/01_017/Afdelingens%20dokumenter/&#xC5;rsregnskab/&#xC5;rsregnskab-2023.pdf)
                                            [Årsregnskab 2022.pdf](https://bolignaestved.dk/p/Files/Boligdata/AfdelingsdokumenterFraEG/01_017/Afdelingens%20dokumenter/&#xC5;rsregnskab/&#xC5;rsregnskab-2022.pdf)
                                            [Årsregnskab 2021.pdf](https://bolignaestved.dk/p/Files/Boligdata/AfdelingsdokumenterFraEG/01_017/Afdelingens%20dokumenter/&#xC5;rsregnskab/&#xC5;rsregnskab-2021.pdf)

###

                                                Ordensreglement

[Ordensreglement.pdf](https://bolignaestved.dk/p/Files/Boligdata/AfdelingsdokumenterFraEG/01_017/Afdelingens%20dokumenter/Ordensreglement/Ordensreglement.pdf)

###

                                                Vedligeholdelsesreglement

[Vedligeholdelsesreglement.pdf](https://bolignaestved.dk/p/Files/Boligdata/AfdelingsdokumenterFraEG/01_017/Afdelingens%20dokumenter/Vedligeholdelsesreglement/Vedligeholdelsesreglement.pdf)

###

                                                Råderetskatalog

[Råderetskatalog.pdf](https://bolignaestved.dk/p/Files/Boligdata/AfdelingsdokumenterFraEG/01_017/Afdelingens%20dokumenter/R&#xE5;deretskatalog/R&#xE5;deretskatalog.pdf)

###

                                                Energimærke

[Energimærke FV 1-4, 9-10, 14-17, 24-25.pdf](https://bolignaestved.dk/p/Files/Boligdata/AfdelingsdokumenterFraEG/01_017/Afdelingens%20dokumenter/Energim&#xE6;rke/Energim&#xE6;rke-FV-1-4--9-10--14-17--24-25.pdf)
                                            [Energimærke FV 20.pdf](https://bolignaestved.dk/p/Files/Boligdata/AfdelingsdokumenterFraEG/01_017/Afdelingens%20dokumenter/Energim&#xE6;rke/Energim&#xE6;rke-FV-20.pdf)
                                            [Energimærke FV 5.pdf](https://bolignaestved.dk/p/Files/Boligdata/AfdelingsdokumenterFraEG/01_017/Afdelingens%20dokumenter/Energim&#xE6;rke/Energim&#xE6;rke-FV-5.pdf)
                                            [Energimærke FV 6-8, 11-13, 18-19, 21-23, 26-29.pdf](https://bolignaestved.dk/p/Files/Boligdata/AfdelingsdokumenterFraEG/01_017/Afdelingens%20dokumenter/Energim&#xE6;rke/Energim&#xE6;rke-FV-6-8--11-13--18-19--21-23--26-29.pdf)

###

                                                Andre dokumenter

[Velkomstpjece.pdf](https://bolignaestved.dk/p/Files/Boligdata/AfdelingsdokumenterFraEG/01_017/Afdelingens%20dokumenter/Andre%20dokumenter/Velkomstpjece.pdf)

## Afdelingsbestyrelse

Her finder du nyttig information fra afdelinsbestyrelse i din afdeling.

###

                                                Referat

[2023-03-15 Referat ekstraordinært afd. møde.pdf](https://bolignaestved.dk/p/Files/Boligdata/AfdelingsdokumenterFraEG/01_017/Afdelingsbestyrelse/Referat/2023-03-15-Referat-ekstraordin&#xE6;rt-afd.-m&#xF8;de.pdf)

## Placering
