---
title: "Afdeling 016 Pilegården 3"
description: "1-16"
date: "2026-05-27"
created: "2025-09-25"
---

-
-
-
-
-
-
-
-
-
-
-

https://maps.google.dk/?q=55.2367599,11.7816903

# Afdeling 016 Pilegården 3

Afdeling 16

## Velkommen til Afdeling 016 Pilegården 3

Afdelingen er opført som 46 rækkehuse med 2 vær. i et plan, 3 og 4 vær. i 2 plan, samt 12 ungdomsboliger. Afdelingen ligger i et alsidigt boligkvarter og rækkehusene er opbygget omkring gårdmiljøer. Afdelingen ligger tæt ved skoler, institutioner, dagligvarebutikker samt offentlig transport, alt tilgængeligt via et veludbygget stisystem samt gangbroer. Kalbyrisskoven er ligeledes i rimelig afstand. Boligerne indeholder køle/fryseskab, komfur, emhætte og ikke andre hårde hvidevarer. I afdelingen forefindes fællesvaskerier samt hyggelige haveanlæg med legepladser. Til hver familiebolig hører for og baghave samt udhus. Til ungdomsboligerne hører fælles udhus.

OBS: I ungdomsboligerne betales ikke indskud, men derimod depositum, hvorfor der ikke kan søges om indskudslån.

## Fakta for afdelingen...

Altan/have

Ja

Der er have til familieboligerne

Antal/størrelse

Se mere

12 stk ungdomsboliger 30 m2, 24 stk 2 rums 59,5 m2, 44 stk 3 rums 85 m2, 12 stk 4 rums 95 m2

Beboerhus

Ja

Byggeår

1990

Carport/garage

Nej

Elevator

Nej

Husdyrhold

Se mere

Familie bolig: 2 husdyrUngdomsbolig: 2 husdyr

Hårde hvidevarer

Ja

Køle/fryseskab, komfur, emhætte og ikke andre hårde hvidevarer.

Kælderrum/udhus

Ja

Mindre udhus til hver bolig

Legeplads

Ja

Tv/Internet

Ja

Frit valg blandt udbydere af tv/internet

Vaskeri

Ja

Ja, fællesvaskeri

Ventetider

Se mere

2 til 5 år

Ældreboliger/ungdomsboliger

Nej/Nej

                        Se flere

## Boliger i afdelingen

Ungdomsboliger

1 værelses

Ungdomsboliger

Familiebolig

2 værelses

Familiebolig

Familiebolig

3 værelses

Familiebolig

Familiebolig

4 værelses

Familiebolig

Boligtype

Værelser

Størrelse

Husleje u. forbrug

Indskud

Plantegning

Familiebolig

2

60 m²

5392 kr.

16740 kr.

![](https://bolignaestved.dk/i/MOLIRIMEDIA/5977f96d-3e85-43ef-1135-08ddde57396d?width=800)

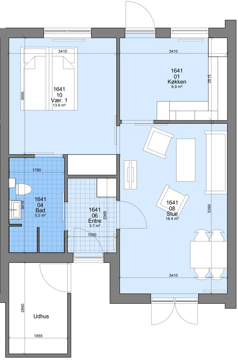
Familiebolig

3

85 m²

6740 kr.

23715 kr.

![](https://bolignaestved.dk/i/MOLIRIMEDIA/29ec3366-93a4-433f-097a-08ddde57396d?width=800)

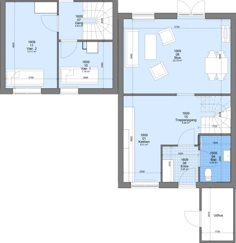
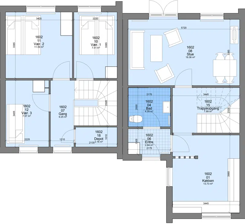
Familiebolig

4

95 m²

7277 kr.

26505 kr.

![](https://bolignaestved.dk/i/MOLIRIMEDIA/2adf266f-01f9-4a98-1225-08ddde57396d?width=800)

Ungdomsboliger

1

30 m²

1998 kr.

8370 kr.

![](https://bolignaestved.dk/i/MOLIRIMEDIA/f63b0789-ba0f-4aa6-118f-08ddde57396d?width=800)

## Driftscenter

### Kontakt dit driftscenter

Adresse:

Birkehegnet 334

4700 Næstved

55735215

birkehegnet@bolignaestved.dk

### Åbningstider

Telefonisk henvendelse:

Mandag - fredag kl. 8.30-10.00

.............................................

Personlig henvendelse:

Kun efter forudgående aftale (bestil tid)

## Personale

### Steen Harting Ibsen

Driftsleder

### Kim Trane Johansen

Driftslederassistent

### Ladigar Ôztürk

Kontormedarbejder

### Henrik Haar

Ejendomsfunktionær

### Henrik Christiansen

Ejendomsfunktionær

### Kenneth Steen Boiken Andersen

Ejendomsfunktionær

### Martin Teglgaard Wichmann

Ejendomsfunktionær

### Sadeq Khedri

Ejendomsfunktionær

### Bent Storch

Ejendomsfunktionær

### Muhidin Salihovic

Ejendomsfunktionær

## Bestyrelsen

Navn

Titel

Mie Vang Hansen

Formand

Kristina Hanne Jørgensen

Medlem

Linda Grøndahl Rasmussen

Medlem

Kenny Koefoed

Suppleant 1

Helle Vibeke Pedersen

Suppleant 2

## Repræsentantskab

Navn

Titel

Mie Vang Hansen

Medlem

Heidi Sloth

Medlem

Katharina V. G. Pedersen

Suppleant 1

## Afdelingsmøde

Her finder du nyttig information afdelingsmøder, såsom forslag, referater m.m.

###

                                                Forretningsorden

[Forretningsorden.pdf](https://bolignaestved.dk/p/Files/Boligdata/AfdelingsdokumenterFraEG/01_016/Afdelingsm&#xF8;de/Forretningsorden/Forretningsorden.pdf)

###

                                                Indkaldelse

[2026-01-20 Indkaldelse ekstra ord. afd. møde.pdf](https://bolignaestved.dk/p/Files/Boligdata/AfdelingsdokumenterFraEG/01_016/Afdelingsm&#xF8;de/Indkaldelse/2026-01-20-Indkaldelse-ekstra-ord.-afd.-m&#xF8;de.pdf)
                                            [2025-08-19 Indkaldelse.pdf](https://bolignaestved.dk/p/Files/Boligdata/AfdelingsdokumenterFraEG/01_016/Afdelingsm&#xF8;de/Indkaldelse/2025-08-19-Indkaldelse.pdf)
                                            [2024-08-22 Indkaldelse.pdf](https://bolignaestved.dk/p/Files/Boligdata/AfdelingsdokumenterFraEG/01_016/Afdelingsm&#xF8;de/Indkaldelse/2024-08-22-Indkaldelse.pdf)
                                            [2023-08-24 Indkaldelse.pdf](https://bolignaestved.dk/p/Files/Boligdata/AfdelingsdokumenterFraEG/01_016/Afdelingsm&#xF8;de/Indkaldelse/2023-08-24-Indkaldelse.pdf)
                                            [2022-08-31 Indkaldelse.pdf](https://bolignaestved.dk/p/Files/Boligdata/AfdelingsdokumenterFraEG/01_016/Afdelingsm&#xF8;de/Indkaldelse/2022-08-31-Indkaldelse.pdf)
                                            [2022-08-14 Indkaldelse Fælles informationsmøde afd. 14-15-16.pdf](https://bolignaestved.dk/p/Files/Boligdata/AfdelingsdokumenterFraEG/01_016/Afdelingsm&#xF8;de/Indkaldelse/2022-08-14-Indkaldelse-F&#xE6;lles-informationsm&#xF8;de-afd.-14-15-16.pdf)
                                            [2021-09-07 Indkaldelse.pdf](https://bolignaestved.dk/p/Files/Boligdata/AfdelingsdokumenterFraEG/01_016/Afdelingsm&#xF8;de/Indkaldelse/2021-09-07-Indkaldelse.pdf)
                                            [2020-09-03 Indkaldelse.pdf](https://bolignaestved.dk/p/Files/Boligdata/AfdelingsdokumenterFraEG/01_016/Afdelingsm&#xF8;de/Indkaldelse/2020-09-03-Indkaldelse.pdf)

###

                                                Forslag

[2025-08-19 Forslag.pdf](https://bolignaestved.dk/p/Files/Boligdata/AfdelingsdokumenterFraEG/01_016/Afdelingsm&#xF8;de/Forslag/2025-08-19-Forslag.pdf)
                                            [2024-08-22 Forslag.pdf](https://bolignaestved.dk/p/Files/Boligdata/AfdelingsdokumenterFraEG/01_016/Afdelingsm&#xF8;de/Forslag/2024-08-22-Forslag.pdf)
                                            [2023-08-24 Forslag.pdf](https://bolignaestved.dk/p/Files/Boligdata/AfdelingsdokumenterFraEG/01_016/Afdelingsm&#xF8;de/Forslag/2023-08-24-Forslag.pdf)
                                            [2022-08-31 Forslag.pdf](https://bolignaestved.dk/p/Files/Boligdata/AfdelingsdokumenterFraEG/01_016/Afdelingsm&#xF8;de/Forslag/2022-08-31-Forslag.pdf)
                                            [2021-09-07 Forslag.pdf](https://bolignaestved.dk/p/Files/Boligdata/AfdelingsdokumenterFraEG/01_016/Afdelingsm&#xF8;de/Forslag/2021-09-07-Forslag.pdf)
                                            [2020-09-03 Forslag.pdf](https://bolignaestved.dk/p/Files/Boligdata/AfdelingsdokumenterFraEG/01_016/Afdelingsm&#xF8;de/Forslag/2020-09-03-Forslag.pdf)

###

                                                Referat

[2026-01-20 Referat.pdf](https://bolignaestved.dk/p/Files/Boligdata/AfdelingsdokumenterFraEG/01_016/Afdelingsm&#xF8;de/Referat/2026-01-20-Referat.pdf)
                                            [2025-08-19 Referat.pdf](https://bolignaestved.dk/p/Files/Boligdata/AfdelingsdokumenterFraEG/01_016/Afdelingsm&#xF8;de/Referat/2025-08-19-Referat.pdf)
                                            [2024-08-22 Referat.pdf](https://bolignaestved.dk/p/Files/Boligdata/AfdelingsdokumenterFraEG/01_016/Afdelingsm&#xF8;de/Referat/2024-08-22-Referat.pdf)
                                            [2023-08-24 Referat.pdf](https://bolignaestved.dk/p/Files/Boligdata/AfdelingsdokumenterFraEG/01_016/Afdelingsm&#xF8;de/Referat/2023-08-24-Referat.pdf)
                                            [2022-08-31 Referat.pdf](https://bolignaestved.dk/p/Files/Boligdata/AfdelingsdokumenterFraEG/01_016/Afdelingsm&#xF8;de/Referat/2022-08-31-Referat.pdf)
                                            [2021-09-07 Referat.pdf](https://bolignaestved.dk/p/Files/Boligdata/AfdelingsdokumenterFraEG/01_016/Afdelingsm&#xF8;de/Referat/2021-09-07-Referat.pdf)
                                            [2020-09-03 Referat.pdf](https://bolignaestved.dk/p/Files/Boligdata/AfdelingsdokumenterFraEG/01_016/Afdelingsm&#xF8;de/Referat/2020-09-03-Referat.pdf)

## Afdelingens dokumenter

Her finder du nyttig information fra din afdeling, såsom budget, regnskab, ordensreglement m.m.

###

                                                Budget

[Budget 2026.pdf](https://bolignaestved.dk/p/Files/Boligdata/AfdelingsdokumenterFraEG/01_016/Afdelingens%20dokumenter/Budget/Budget-2026.pdf)
                                            [Budget 2025.pdf](https://bolignaestved.dk/p/Files/Boligdata/AfdelingsdokumenterFraEG/01_016/Afdelingens%20dokumenter/Budget/Budget-2025.pdf)
                                            [Budget 2024.pdf](https://bolignaestved.dk/p/Files/Boligdata/AfdelingsdokumenterFraEG/01_016/Afdelingens%20dokumenter/Budget/Budget-2024.pdf)
                                            [Budget 2023.pdf](https://bolignaestved.dk/p/Files/Boligdata/AfdelingsdokumenterFraEG/01_016/Afdelingens%20dokumenter/Budget/Budget-2023.pdf)
                                            [Budget 2022.pdf](https://bolignaestved.dk/p/Files/Boligdata/AfdelingsdokumenterFraEG/01_016/Afdelingens%20dokumenter/Budget/Budget-2022.pdf)

###

                                                Årsregnskab

[Årsregnskab 2025.pdf](https://bolignaestved.dk/p/Files/Boligdata/AfdelingsdokumenterFraEG/01_016/Afdelingens%20dokumenter/&#xC5;rsregnskab/&#xC5;rsregnskab-2025.pdf)
                                            [Årsregnskab 2024.pdf](https://bolignaestved.dk/p/Files/Boligdata/AfdelingsdokumenterFraEG/01_016/Afdelingens%20dokumenter/&#xC5;rsregnskab/&#xC5;rsregnskab-2024.pdf)
                                            [Årsregnskab 2023.pdf](https://bolignaestved.dk/p/Files/Boligdata/AfdelingsdokumenterFraEG/01_016/Afdelingens%20dokumenter/&#xC5;rsregnskab/&#xC5;rsregnskab-2023.pdf)
                                            [Årsregnskab 2022.pdf](https://bolignaestved.dk/p/Files/Boligdata/AfdelingsdokumenterFraEG/01_016/Afdelingens%20dokumenter/&#xC5;rsregnskab/&#xC5;rsregnskab-2022.pdf)
                                            [Årsregnskab 2021.pdf](https://bolignaestved.dk/p/Files/Boligdata/AfdelingsdokumenterFraEG/01_016/Afdelingens%20dokumenter/&#xC5;rsregnskab/&#xC5;rsregnskab-2021.pdf)

###

                                                Ordensreglement

[Ordensreglement.pdf](https://bolignaestved.dk/p/Files/Boligdata/AfdelingsdokumenterFraEG/01_016/Afdelingens%20dokumenter/Ordensreglement/Ordensreglement.pdf)

###

                                                Vedligeholdelsesreglement

[Vedligeholdelsesreglement.pdf](https://bolignaestved.dk/p/Files/Boligdata/AfdelingsdokumenterFraEG/01_016/Afdelingens%20dokumenter/Vedligeholdelsesreglement/Vedligeholdelsesreglement.pdf)

###

                                                Råderetskatalog

[Råderetskatalog.pdf](https://bolignaestved.dk/p/Files/Boligdata/AfdelingsdokumenterFraEG/01_016/Afdelingens%20dokumenter/R&#xE5;deretskatalog/R&#xE5;deretskatalog.pdf)

###

                                                Energimærke

[Energimærke.pdf](https://bolignaestved.dk/p/Files/Boligdata/AfdelingsdokumenterFraEG/01_016/Afdelingens%20dokumenter/Energim&#xE6;rke/Energim&#xE6;rke.pdf)

###

                                                Andre dokumenter

[Vejledning ILOQ låsesystem.pdf](https://bolignaestved.dk/p/Files/Boligdata/AfdelingsdokumenterFraEG/01_016/Afdelingens%20dokumenter/Andre%20dokumenter/Vejledning-ILOQ-l&#xE5;sesystem.pdf)
                                            [Velkomstpjece.pdf](https://bolignaestved.dk/p/Files/Boligdata/AfdelingsdokumenterFraEG/01_016/Afdelingens%20dokumenter/Andre%20dokumenter/Velkomstpjece.pdf)

## Afdelingsbestyrelse

Her finder du nyttig information fra afdelinsbestyrelse i din afdeling.

###

                                                Referat

[2026-05-20 Referat Fællesmøde afd. 14-15-16.pdf](https://bolignaestved.dk/p/Files/Boligdata/AfdelingsdokumenterFraEG/01_016/Afdelingsbestyrelse/Referat/2026-05-20-Referat-F&#xE6;llesm&#xF8;de-afd.-14-15-16.pdf)
                                            [2026-02-11 Referat Fællesmøde afd. 14-15-16.pdf](https://bolignaestved.dk/p/Files/Boligdata/AfdelingsdokumenterFraEG/01_016/Afdelingsbestyrelse/Referat/2026-02-11-Referat-F&#xE6;llesm&#xF8;de-afd.-14-15-16.pdf)
                                            [2025-01-08 Referat Fællesmøde afd. 14-15-16.pdf](https://bolignaestved.dk/p/Files/Boligdata/AfdelingsdokumenterFraEG/01_016/Afdelingsbestyrelse/Referat/2025-01-08-Referat-F&#xE6;llesm&#xF8;de-afd.-14-15-16.pdf)
                                            [2024-01-23 Referat.pdf](https://bolignaestved.dk/p/Files/Boligdata/AfdelingsdokumenterFraEG/01_016/Afdelingsbestyrelse/Referat/2024-01-23-Referat.pdf)
                                            [2023-04-26 Referat Fællesmøde afd. 14-15-16.pdf](https://bolignaestved.dk/p/Files/Boligdata/AfdelingsdokumenterFraEG/01_016/Afdelingsbestyrelse/Referat/2023-04-26-Referat-F&#xE6;llesm&#xF8;de-afd.-14-15-16.pdf)
                                            [2023-01-26 Referat Fællesmøde afd. 14-15-16.pdf](https://bolignaestved.dk/p/Files/Boligdata/AfdelingsdokumenterFraEG/01_016/Afdelingsbestyrelse/Referat/2023-01-26-Referat-F&#xE6;llesm&#xF8;de-afd.-14-15-16.pdf)

## Placering
