---
title: "Afdeling 007 Primulagården"
description: "1-7"
date: "2026-05-28"
created: "2025-09-25"
---

-
-
-
-
-
-
-
-

https://maps.google.dk/?q=55.2329894,11.778207

# Afdeling 007 Primulagården

Afdeling 7

## Velkommen til Afdeling 007 Primulagården

Afdelingen er opført som etagebyggeri bestående af flere boligblokke med i alt 116 boliger fordelt som 1, 2, 3 og 4 vær. og en butik. Afdelingen ligger i et alsidigt boligkvarter tæt ved skoler, institutioner, dagligvarebutikker samt offentlig transport. Boligerne indeholder køle/fryseskab, komfur, emhætte og ikke andre hårde hvidevarer. I afdelingen forefindes fællesvaskerier samt hyggeligt stort haveanlæg med legepladser. Til hver bolig hører kælderrum. Boligerne har altan. Der er mulighed for at blive skrevet op til leje af garage eller carport.

## Fakta for afdelingen...

Altan/have

Ja

Altan

Antal/størrelse

Se mere

6 stk 1 rums 37-40 m2, 12 stk 2 rums 47-64 m2, 74 stk 3 rums 66-86 m2, 24 stk 4 rums 80-92 m2

Beboerhus

Ja

Byggeår

1956

Carport/garage

Ja

Carporte og garage

Elevator

Nej

Husdyrhold

Se mere

Ingen husdyr

Hårde hvidevarer

Ja

Komfur, køleskab, emhætte og ikke andre hårde hvidevarer.

Kælderrum/udhus

Ja

Kælderrum

Legeplads

Ja

Tv/Internet

Ja

Frit valg blandt udbydere af tv/internet

Vaskeri

Ja

Der er 5 fællesvaskerier

Ventetider

Se mere

2 til 5 år

Ældreboliger/ungdomsboliger

Nej/Nej

                        Se flere

## Boliger i afdelingen

Familiebolig

1 værelses

Familiebolig

Familiebolig

2 værelses

Familiebolig

Familiebolig

3 værelses

Familiebolig

Familiebolig

4 værelses

Familiebolig

Boligtype

Værelser

Størrelse

Husleje u. forbrug

Indskud

Plantegning

Familiebolig

1

40 m²

2593 kr.

11160 kr.

![](https://bolignaestved.dk/i/MOLIRIMEDIA/c8769aef-f395-4933-089a-08ddde57396d?width=800)

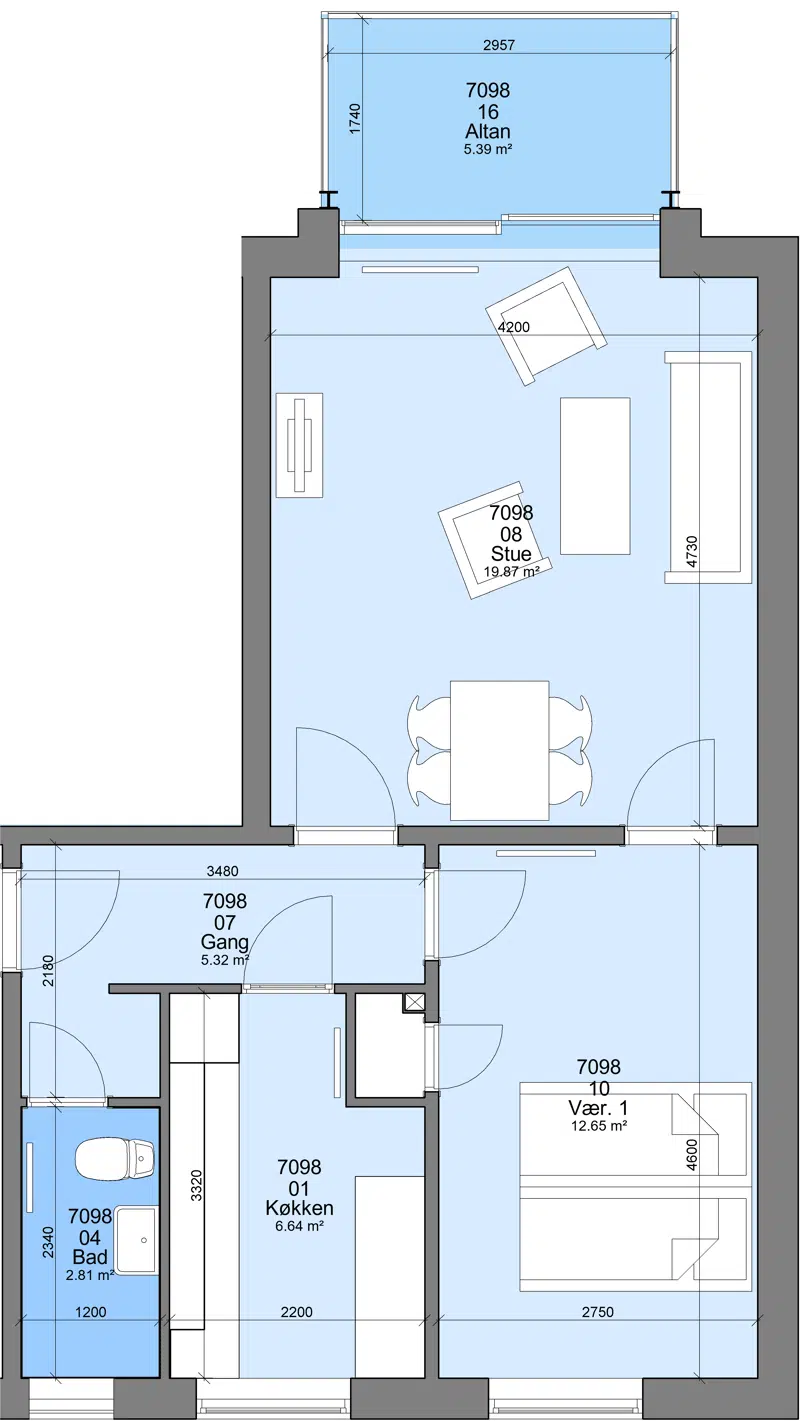
Familiebolig

2

64 m²

4048 kr.

17856 kr.

![](https://bolignaestved.dk/i/MOLIRIMEDIA/8e49aaee-a132-49de-0963-08ddde57396d?width=800)

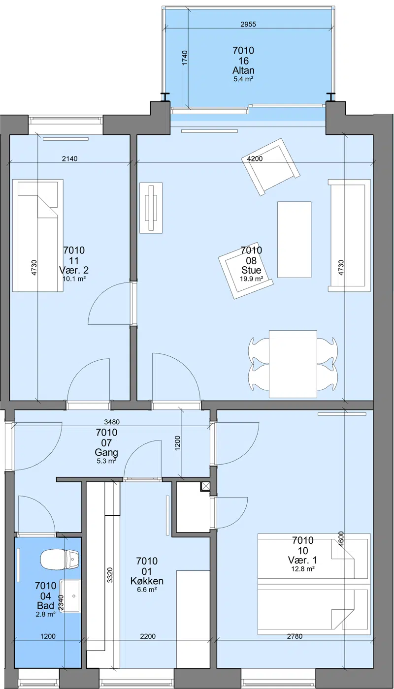
Familiebolig

3

75.5 m²

4678 kr.

21065 kr.

![](https://bolignaestved.dk/i/MOLIRIMEDIA/a5fe9b56-b5c1-4ced-0a6d-08ddde57396d?width=800)

Familiebolig

4

92 m²

5565 kr.

25668 kr.

![](https://bolignaestved.dk/i/MOLIRIMEDIA/ee9f8e96-c411-40f1-11e1-08ddde57396d?width=800)

## Driftscenter

### Kontakt dit driftscenter

Adresse:

Ejlersvej 34

4700 Næstved

55739357

ejlersvej@bolignaestved.dk

### Åbningstider

Telefonisk henvendelse:

Mandag - fredag kl 8.30-10.00

.............................................

Personlig henvendelse:

Kun efter forudgående aftale (bestil tid)

## Personale

### Claus Kuhre

Driftsleder

### David Mick Nielsen

Driftslederassistent

### Lene F. Nielsen

Kontormedarbejder

### Carsten Kirkebjerg

Ejendomsfunktionær

### Brian Søe Larsen

Ejendomsfunktionær

### Serhij Talatynnik

Ejendomsfunktionær

### Dariusz Jan Rybacki

Ejendomsfunktionær

### Henrik Jørgensen

Ejendomsfunktionær

## Bestyrelsen

Navn

Titel

Lise Karin Gylle

Formand

Jesper Rasmussen

Medlem

Maria Suzette Vergmann

Medlem

## Repræsentantskab

Navn

Titel

Lise Karin Gylle

Medlem

Maria Suzette Vergmann

Medlem

## Afdelingsmøde

Her finder du nyttig information afdelingsmøder, såsom forslag, referater m.m.

###

                                                Forretningsorden

[Forretningsorden.pdf](https://bolignaestved.dk/p/Files/Boligdata/AfdelingsdokumenterFraEG/01_007/Afdelingsm&#xF8;de/Forretningsorden/Forretningsorden.pdf)

###

                                                Indkaldelse

[2025-09-18 Indkaldelse.pdf](https://bolignaestved.dk/p/Files/Boligdata/AfdelingsdokumenterFraEG/01_007/Afdelingsm&#xF8;de/Indkaldelse/2025-09-18-Indkaldelse.pdf)
                                            [2024-09-18 Indkaldelse.pdf](https://bolignaestved.dk/p/Files/Boligdata/AfdelingsdokumenterFraEG/01_007/Afdelingsm&#xF8;de/Indkaldelse/2024-09-18-Indkaldelse.pdf)
                                            [2023-09-19 Indkaldelse.pdf](https://bolignaestved.dk/p/Files/Boligdata/AfdelingsdokumenterFraEG/01_007/Afdelingsm&#xF8;de/Indkaldelse/2023-09-19-Indkaldelse.pdf)
                                            [2022-09-20 Indkaldelse.pdf](https://bolignaestved.dk/p/Files/Boligdata/AfdelingsdokumenterFraEG/01_007/Afdelingsm&#xF8;de/Indkaldelse/2022-09-20-Indkaldelse.pdf)
                                            [2021-09-15 Indkaldelse.pdf](https://bolignaestved.dk/p/Files/Boligdata/AfdelingsdokumenterFraEG/01_007/Afdelingsm&#xF8;de/Indkaldelse/2021-09-15-Indkaldelse.pdf)
                                            [2020-09-14 Indkaldelse.pdf](https://bolignaestved.dk/p/Files/Boligdata/AfdelingsdokumenterFraEG/01_007/Afdelingsm&#xF8;de/Indkaldelse/2020-09-14-Indkaldelse.pdf)

###

                                                Forslag

[2025-09-18 Forslag.pdf](https://bolignaestved.dk/p/Files/Boligdata/AfdelingsdokumenterFraEG/01_007/Afdelingsm&#xF8;de/Forslag/2025-09-18-Forslag.pdf)
                                            [2024-09-18 Forslag.pdf](https://bolignaestved.dk/p/Files/Boligdata/AfdelingsdokumenterFraEG/01_007/Afdelingsm&#xF8;de/Forslag/2024-09-18-Forslag.pdf)
                                            [2023-09-19 Forslag.pdf](https://bolignaestved.dk/p/Files/Boligdata/AfdelingsdokumenterFraEG/01_007/Afdelingsm&#xF8;de/Forslag/2023-09-19-Forslag.pdf)
                                            [2022-09-20 Forslag.pdf](https://bolignaestved.dk/p/Files/Boligdata/AfdelingsdokumenterFraEG/01_007/Afdelingsm&#xF8;de/Forslag/2022-09-20-Forslag.pdf)
                                            [2021-09-15 Forslag.pdf](https://bolignaestved.dk/p/Files/Boligdata/AfdelingsdokumenterFraEG/01_007/Afdelingsm&#xF8;de/Forslag/2021-09-15-Forslag.pdf)
                                            [2020-09-14 Forslag.pdf](https://bolignaestved.dk/p/Files/Boligdata/AfdelingsdokumenterFraEG/01_007/Afdelingsm&#xF8;de/Forslag/2020-09-14-Forslag.pdf)

###

                                                Referat

[2025-09-18 Referat.pdf](https://bolignaestved.dk/p/Files/Boligdata/AfdelingsdokumenterFraEG/01_007/Afdelingsm&#xF8;de/Referat/2025-09-18-Referat.pdf)
                                            [2024-09-18 Referat.pdf](https://bolignaestved.dk/p/Files/Boligdata/AfdelingsdokumenterFraEG/01_007/Afdelingsm&#xF8;de/Referat/2024-09-18-Referat.pdf)
                                            [2023-09-19 Referat.pdf](https://bolignaestved.dk/p/Files/Boligdata/AfdelingsdokumenterFraEG/01_007/Afdelingsm&#xF8;de/Referat/2023-09-19-Referat.pdf)
                                            [2022-09-20 Referat.pdf](https://bolignaestved.dk/p/Files/Boligdata/AfdelingsdokumenterFraEG/01_007/Afdelingsm&#xF8;de/Referat/2022-09-20-Referat.pdf)
                                            [2021-09-15 Referat.pdf](https://bolignaestved.dk/p/Files/Boligdata/AfdelingsdokumenterFraEG/01_007/Afdelingsm&#xF8;de/Referat/2021-09-15-Referat.pdf)
                                            [2020-09-14 Referat.pdf](https://bolignaestved.dk/p/Files/Boligdata/AfdelingsdokumenterFraEG/01_007/Afdelingsm&#xF8;de/Referat/2020-09-14-Referat.pdf)

## Afdelingens dokumenter

Her finder du nyttig information fra din afdeling, såsom budget, regnskab, ordensreglement m.m.

###

                                                Budget

[Budget 2026.pdf](https://bolignaestved.dk/p/Files/Boligdata/AfdelingsdokumenterFraEG/01_007/Afdelingens%20dokumenter/Budget/Budget-2026.pdf)
                                            [Budget 2024.pdf](https://bolignaestved.dk/p/Files/Boligdata/AfdelingsdokumenterFraEG/01_007/Afdelingens%20dokumenter/Budget/Budget-2024.pdf)
                                            [Budget 2023.pdf](https://bolignaestved.dk/p/Files/Boligdata/AfdelingsdokumenterFraEG/01_007/Afdelingens%20dokumenter/Budget/Budget-2023.pdf)
                                            [Budget 2022.pdf](https://bolignaestved.dk/p/Files/Boligdata/AfdelingsdokumenterFraEG/01_007/Afdelingens%20dokumenter/Budget/Budget-2022.pdf)

###

                                                Årsregnskab

[Årsregnskab 2025.pdf](https://bolignaestved.dk/p/Files/Boligdata/AfdelingsdokumenterFraEG/01_007/Afdelingens%20dokumenter/&#xC5;rsregnskab/&#xC5;rsregnskab-2025.pdf)
                                            [Årsregnskab 2024.pdf](https://bolignaestved.dk/p/Files/Boligdata/AfdelingsdokumenterFraEG/01_007/Afdelingens%20dokumenter/&#xC5;rsregnskab/&#xC5;rsregnskab-2024.pdf)
                                            [Årsregnskab 2023.pdf](https://bolignaestved.dk/p/Files/Boligdata/AfdelingsdokumenterFraEG/01_007/Afdelingens%20dokumenter/&#xC5;rsregnskab/&#xC5;rsregnskab-2023.pdf)
                                            [Årsregnskab 2022.pdf](https://bolignaestved.dk/p/Files/Boligdata/AfdelingsdokumenterFraEG/01_007/Afdelingens%20dokumenter/&#xC5;rsregnskab/&#xC5;rsregnskab-2022.pdf)
                                            [Årsregnskab 2021.pdf](https://bolignaestved.dk/p/Files/Boligdata/AfdelingsdokumenterFraEG/01_007/Afdelingens%20dokumenter/&#xC5;rsregnskab/&#xC5;rsregnskab-2021.pdf)

###

                                                Ordensreglement

[Ordensreglement.pdf](https://bolignaestved.dk/p/Files/Boligdata/AfdelingsdokumenterFraEG/01_007/Afdelingens%20dokumenter/Ordensreglement/Ordensreglement.pdf)

###

                                                Vedligeholdelsesreglement

[Vedligeholdelsesreglement.pdf](https://bolignaestved.dk/p/Files/Boligdata/AfdelingsdokumenterFraEG/01_007/Afdelingens%20dokumenter/Vedligeholdelsesreglement/Vedligeholdelsesreglement.pdf)

###

                                                Energimærke

[Energimærke - Primulagården 1.pdf](https://bolignaestved.dk/p/Files/Boligdata/AfdelingsdokumenterFraEG/01_007/Afdelingens%20dokumenter/Energim&#xE6;rke/Energim&#xE6;rke---Primulag&#xE5;rden-1.pdf)
                                            [Energimærke - Primulagården 2.pdf](https://bolignaestved.dk/p/Files/Boligdata/AfdelingsdokumenterFraEG/01_007/Afdelingens%20dokumenter/Energim&#xE6;rke/Energim&#xE6;rke---Primulag&#xE5;rden-2.pdf)
                                            [Energimærkerapport - Primulagården.pdf](https://bolignaestved.dk/p/Files/Boligdata/AfdelingsdokumenterFraEG/01_007/Afdelingens%20dokumenter/Energim&#xE6;rke/Energim&#xE6;rkerapport---Primulag&#xE5;rden.pdf)

###

                                                Andre dokumenter

[Vejledning ILOQ låsesystem.pdf](https://bolignaestved.dk/p/Files/Boligdata/AfdelingsdokumenterFraEG/01_007/Afdelingens%20dokumenter/Andre%20dokumenter/Vejledning-ILOQ-l&#xE5;sesystem.pdf)
                                            [Velkomstbrev Pay Per Wash.pdf](https://bolignaestved.dk/p/Files/Boligdata/AfdelingsdokumenterFraEG/01_007/Afdelingens%20dokumenter/Andre%20dokumenter/Velkomstbrev-Pay-Per-Wash.pdf)
                                            [Velkomstpjece.pdf](https://bolignaestved.dk/p/Files/Boligdata/AfdelingsdokumenterFraEG/01_007/Afdelingens%20dokumenter/Andre%20dokumenter/Velkomstpjece.pdf)

## Afdelingsbestyrelse

Her finder du nyttig information fra afdelinsbestyrelse i din afdeling.

###

                                                Referat

[2023-07-09 Referat.pdf](https://bolignaestved.dk/p/Files/Boligdata/AfdelingsdokumenterFraEG/01_007/Afdelingsbestyrelse/Referat/2023-07-09-Referat.pdf)
                                            [2020-11-09 Referat.pdf](https://bolignaestved.dk/p/Files/Boligdata/AfdelingsdokumenterFraEG/01_007/Afdelingsbestyrelse/Referat/2020-11-09-Referat.pdf)

## Placering
