---
title: "Afdeling 005 Mølleparken"
description: "1-5"
date: "2026-05-28"
created: "2025-09-25"
---

-
-
-
-
-
-
-
-
-
-
-
-

https://maps.google.dk/?q=55.2267876,11.7472896

# Afdeling 005 Mølleparken

Afdeling 5

## Velkommen til Afdeling 005 Mølleparken

Afdelingen er opført som etagebyggeri bestående af flere boligblokke med i alt 208 boliger fordelt som 1, 2, 3 og 4 vær., samt 2 butikker. Boligerne indeholder køle/fryseskab, komfur,  emhætte og ikke andre hårde hvidevarer. I afdelingen forefindes fællesvaskerier samt hyggeligt haveanlæg med legeplads. Til hver bolig hører kælderrum og størstedelen af boligerne har altan. Der er mulighed for at blive skrevet op til leje af garage, carport og knallertparkering. Afdelingen ligger i et alsidigt boligkvarter tæt ved skoler, institutioner, dagligvarebutikker samt offentlig transport. Afdelingen ligger nær ved Næstved centrum, den fritlagte Suså, Herlufsholmskoven og Næstved havn.

## Fakta for afdelingen...

Altan/have

Ja

Størstedelen af boligerne har altan

Antal/størrelse

Se mere

10 stk 1 rums 35-45 m2, 26 stk 2 rums 42-73 m2, 122 stk 3 rums 63-90 m2, 50 stk 4 rums 71-103 m2

Beboerhus

Ja

Byggeår

1952-1963

Carport/garage

Ja

Der er mulighed for at blive skrevet op til carport, garage og knallertparkering

Elevator

Nej

Husdyrhold

Se mere

1 kat

Hårde hvidevarer

Ja

Køle/fryseskab, komfur, emhætte og ikke andre hårde hvidevarer.

Kælderrum/udhus

Ja

Kælderrum

Legeplads

Ja

Tv/Internet

Ja

Frit valg blandt udbydere af tv/internet

Vaskeri

Ja

Ja, fællesvaskeri i kælder

Ventetider

Se mere

2 til 5 år

Ældreboliger/ungdomsboliger

Nej/Nej

                        Se flere

## Boliger i afdelingen

Familiebolig

1 værelses

Familiebolig

Familiebolig

2 værelses

Familiebolig

Familiebolig

3 værelses

Familiebolig

Familiebolig

4 værelses

Familiebolig

Boligtype

Værelser

Størrelse

Husleje u. forbrug

Indskud

Plantegning

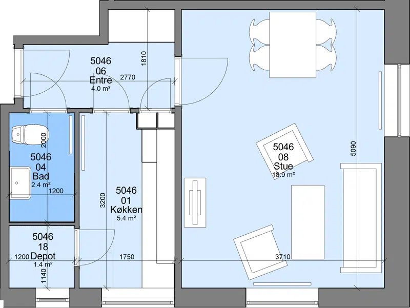
Familiebolig

1

45 m²

3540 kr.

12555 kr.

![](https://bolignaestved.dk/i/MOLIRIMEDIA/2b761c25-3e36-43ee-0d9f-08ddde57396d?width=800)

Familiebolig

2

72 m²

5581 kr.

20088 kr.

![](https://bolignaestved.dk/i/MOLIRIMEDIA/08fab3b1-ae9a-4feb-11a3-08ddde57396d?width=800)

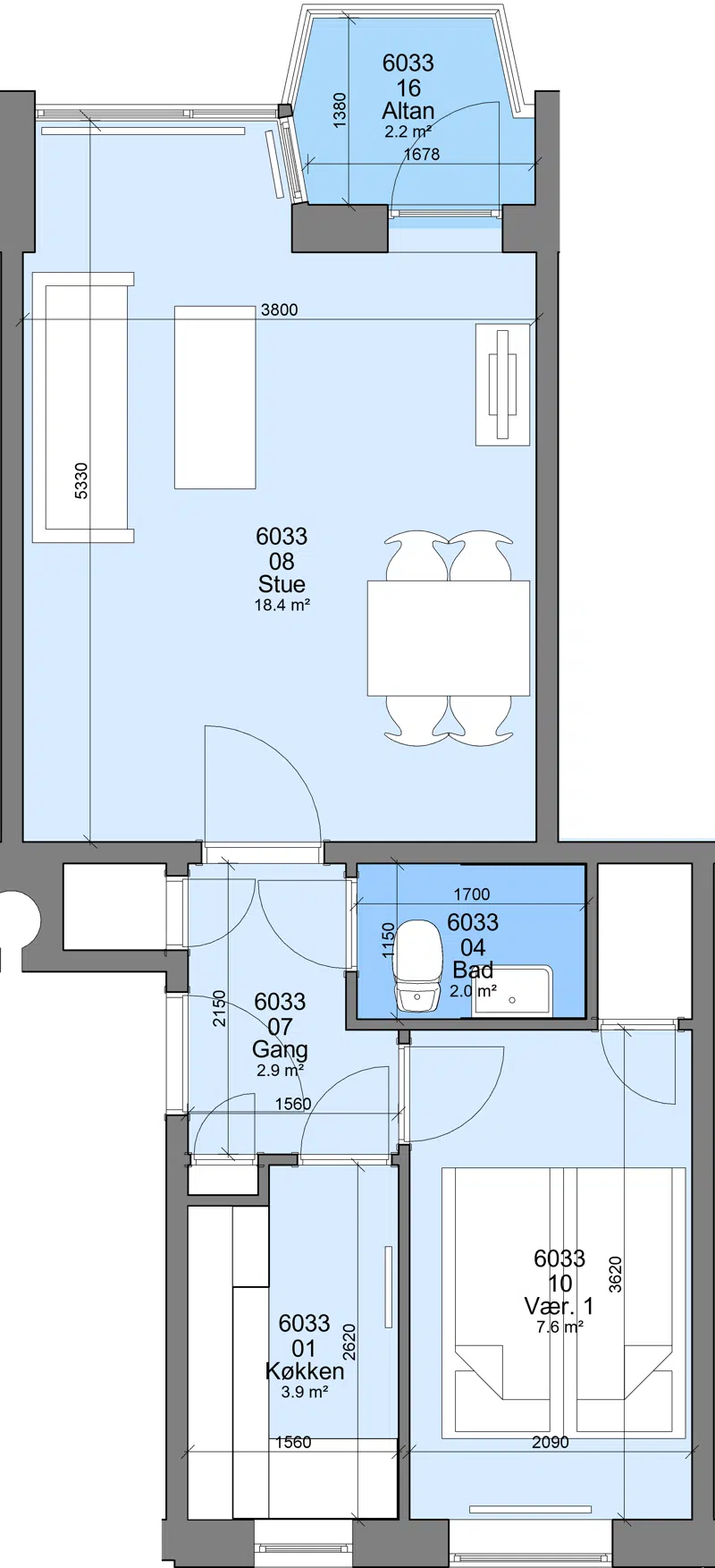
Familiebolig

2

47 m²

3698 kr.

13113 kr.

![](https://bolignaestved.dk/i/MOLIRIMEDIA/a445a436-a926-4b16-0c31-08ddde57396d?width=800)

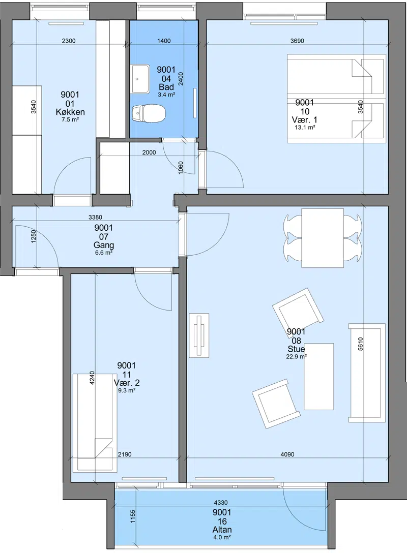
Familiebolig

3

84 m²

6480 kr.

23436 kr.

![](https://bolignaestved.dk/i/MOLIRIMEDIA/d0fc1aca-b3ad-4439-0a10-08ddde57396d?width=800)

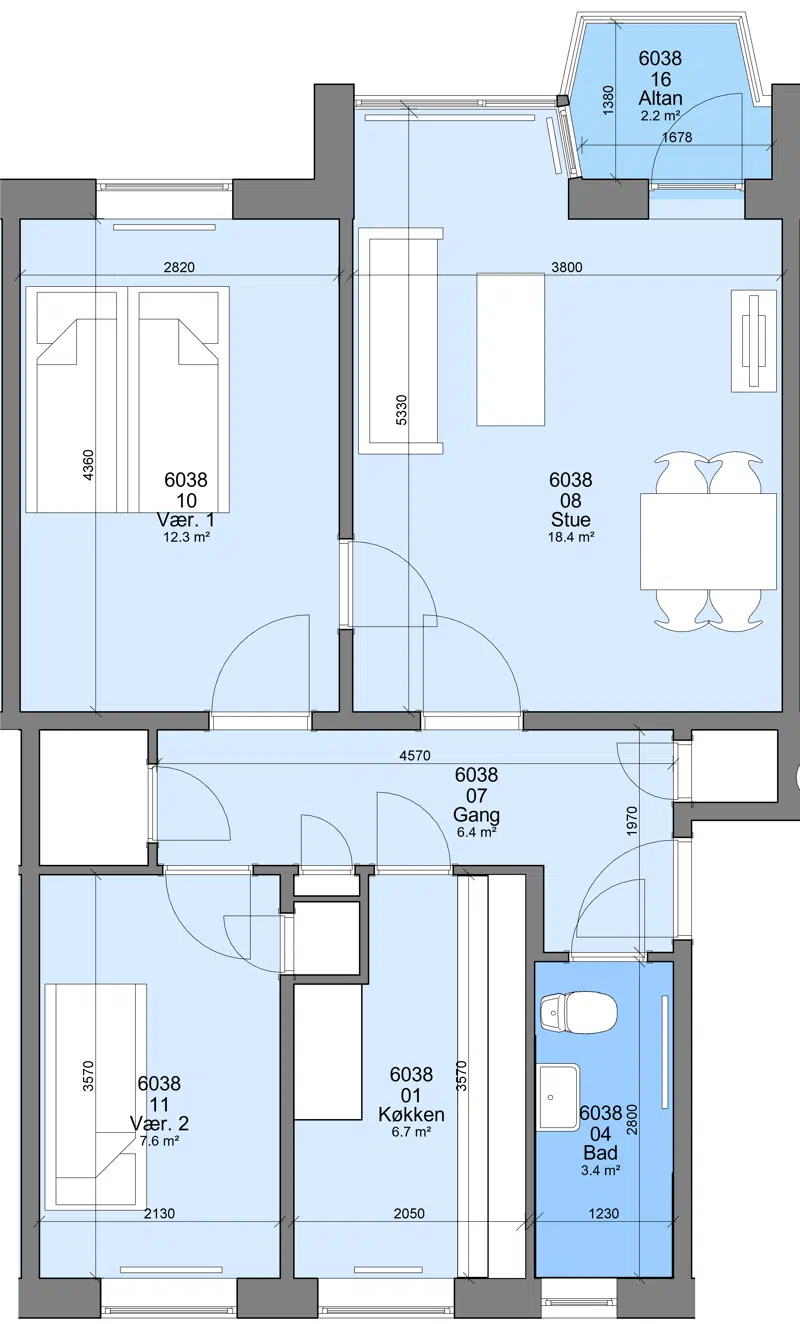
Familiebolig

3

72 m²

5580 kr.

20088 kr.

![](https://bolignaestved.dk/i/MOLIRIMEDIA/1135dc50-a0fb-4e9c-0b23-08ddde57396d?width=800)

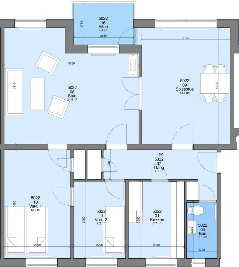
Familiebolig

4

103 m²

7909 kr.

28737 kr.

![](https://bolignaestved.dk/i/MOLIRIMEDIA/7ac017ff-8f9b-4a53-126c-08ddde57396d?width=800)

## Driftscenter

### Kontakt dit driftscenter

Adresse:

Fodbygårdsvej 16

4700 Næstved

55723497

fodbygaardsvej@bolignaestved.dk

### Åbningstider

Telefonisk henvendelse:

Mandag - fredag kl 8.30-10.00

.............................................

Personlig henvendelse:

Kun efter forudgående aftale (bestil tid)

## Personale

### Jacob Clausen

Driftsleder

### Hans-Henrik Friis Jørgensen

Driftslederassistent

### Gitte Jacobsen

Kontormedarbejder

### Per Larsen

Ejendomsfunktionær

### Sigurdur R. Gislason

Ejendomsfunktionær

### Morten Ambus

Ejendomsfunktionær

### Benny Jensen

Ejendomsfunktionær

### Claus Ove Pedersen

Ejendomsfunktionær

### Jens-Jørgen Klausen

Ejendomsfunktionær

### Bo Pedersen

Ejendomsfunktionær

## Bestyrelsen

Navn

Titel

Christian A. L. Bundgaard

Formand

Per Ole Schovsbo

Medlem

Linnea Marie Schovsbo Høyer

Medlem

Zeid Zafer Ramli

Medlem

Sanne Holm Olsen

Medlem

## Repræsentantskab

Navn

Titel

Per Ole Schovsbo

Medlem

Linnea Marie Schovsbo Høyer

Medlem

Christian A. L. Bundgaard

Medlem

## Afdelingsmøde

Her finder du nyttig information afdelingsmøder, såsom forslag, referater m.m.

###

                                                Forretningsorden

[Forretningsorden.pdf](https://bolignaestved.dk/p/Files/Boligdata/AfdelingsdokumenterFraEG/01_005/Afdelingsm&#xF8;de/Forretningsorden/Forretningsorden.pdf)

###

                                                Indkaldelse

[2025-09-23 Indkaldelse.pdf](https://bolignaestved.dk/p/Files/Boligdata/AfdelingsdokumenterFraEG/01_005/Afdelingsm&#xF8;de/Indkaldelse/2025-09-23-Indkaldelse.pdf)
                                            [2024-09-19 Indkaldelse.pdf](https://bolignaestved.dk/p/Files/Boligdata/AfdelingsdokumenterFraEG/01_005/Afdelingsm&#xF8;de/Indkaldelse/2024-09-19-Indkaldelse.pdf)
                                            [2024-02-06 Indkaldelse ekstraordinært afd. møde.pdf](https://bolignaestved.dk/p/Files/Boligdata/AfdelingsdokumenterFraEG/01_005/Afdelingsm&#xF8;de/Indkaldelse/2024-02-06-Indkaldelse-ekstraordin&#xE6;rt-afd.-m&#xF8;de.pdf)
                                            [2023-09-26 Indkaldelse.pdf](https://bolignaestved.dk/p/Files/Boligdata/AfdelingsdokumenterFraEG/01_005/Afdelingsm&#xF8;de/Indkaldelse/2023-09-26-Indkaldelse.pdf)
                                            [2022-09-20 Indkaldelse.pdf](https://bolignaestved.dk/p/Files/Boligdata/AfdelingsdokumenterFraEG/01_005/Afdelingsm&#xF8;de/Indkaldelse/2022-09-20-Indkaldelse.pdf)
                                            [2021-09-15 Indkaldelse.pdf](https://bolignaestved.dk/p/Files/Boligdata/AfdelingsdokumenterFraEG/01_005/Afdelingsm&#xF8;de/Indkaldelse/2021-09-15-Indkaldelse.pdf)
                                            [2020-09-17 Indkaldelse.pdf](https://bolignaestved.dk/p/Files/Boligdata/AfdelingsdokumenterFraEG/01_005/Afdelingsm&#xF8;de/Indkaldelse/2020-09-17-Indkaldelse.pdf)

###

                                                Forslag

[2025-09-23 Forslag.pdf](https://bolignaestved.dk/p/Files/Boligdata/AfdelingsdokumenterFraEG/01_005/Afdelingsm&#xF8;de/Forslag/2025-09-23-Forslag.pdf)
                                            [2024-09-19 Forslag.pdf](https://bolignaestved.dk/p/Files/Boligdata/AfdelingsdokumenterFraEG/01_005/Afdelingsm&#xF8;de/Forslag/2024-09-19-Forslag.pdf)
                                            [2023-09-26 Forslag.pdf](https://bolignaestved.dk/p/Files/Boligdata/AfdelingsdokumenterFraEG/01_005/Afdelingsm&#xF8;de/Forslag/2023-09-26-Forslag.pdf)
                                            [2022-09-20 Forslag.pdf](https://bolignaestved.dk/p/Files/Boligdata/AfdelingsdokumenterFraEG/01_005/Afdelingsm&#xF8;de/Forslag/2022-09-20-Forslag.pdf)
                                            [2021-09-15 Forslag.pdf](https://bolignaestved.dk/p/Files/Boligdata/AfdelingsdokumenterFraEG/01_005/Afdelingsm&#xF8;de/Forslag/2021-09-15-Forslag.pdf)
                                            [2020-09-17 Forslag.pdf](https://bolignaestved.dk/p/Files/Boligdata/AfdelingsdokumenterFraEG/01_005/Afdelingsm&#xF8;de/Forslag/2020-09-17-Forslag.pdf)

###

                                                Referat

[2025-09-23 Referat.pdf](https://bolignaestved.dk/p/Files/Boligdata/AfdelingsdokumenterFraEG/01_005/Afdelingsm&#xF8;de/Referat/2025-09-23-Referat.pdf)
                                            [2025-06-12 Referat.pdf](https://bolignaestved.dk/p/Files/Boligdata/AfdelingsdokumenterFraEG/01_005/Afdelingsm&#xF8;de/Referat/2025-06-12-Referat.pdf)
                                            [2024-09-19 Referat.pdf](https://bolignaestved.dk/p/Files/Boligdata/AfdelingsdokumenterFraEG/01_005/Afdelingsm&#xF8;de/Referat/2024-09-19-Referat.pdf)
                                            [2024-02-06 Referat.pdf](https://bolignaestved.dk/p/Files/Boligdata/AfdelingsdokumenterFraEG/01_005/Afdelingsm&#xF8;de/Referat/2024-02-06-Referat.pdf)
                                            [2023-09-29 Referat.pdf](https://bolignaestved.dk/p/Files/Boligdata/AfdelingsdokumenterFraEG/01_005/Afdelingsm&#xF8;de/Referat/2023-09-29-Referat.pdf)
                                            [2022-09-20 Referat.pdf](https://bolignaestved.dk/p/Files/Boligdata/AfdelingsdokumenterFraEG/01_005/Afdelingsm&#xF8;de/Referat/2022-09-20-Referat.pdf)
                                            [2021-09-15 Referat.pdf](https://bolignaestved.dk/p/Files/Boligdata/AfdelingsdokumenterFraEG/01_005/Afdelingsm&#xF8;de/Referat/2021-09-15-Referat.pdf)
                                            [2020-09-17 Referat.pdf](https://bolignaestved.dk/p/Files/Boligdata/AfdelingsdokumenterFraEG/01_005/Afdelingsm&#xF8;de/Referat/2020-09-17-Referat.pdf)

## Afdelingens dokumenter

Her finder du nyttig information fra din afdeling, såsom budget, regnskab, ordensreglement m.m.

###

                                                Budget

[Budget 2026.pdf](https://bolignaestved.dk/p/Files/Boligdata/AfdelingsdokumenterFraEG/01_005/Afdelingens%20dokumenter/Budget/Budget-2026.pdf)
                                            [Budget 2025.pdf](https://bolignaestved.dk/p/Files/Boligdata/AfdelingsdokumenterFraEG/01_005/Afdelingens%20dokumenter/Budget/Budget-2025.pdf)
                                            [Budget 2024.pdf](https://bolignaestved.dk/p/Files/Boligdata/AfdelingsdokumenterFraEG/01_005/Afdelingens%20dokumenter/Budget/Budget-2024.pdf)
                                            [Budget 2023.pdf](https://bolignaestved.dk/p/Files/Boligdata/AfdelingsdokumenterFraEG/01_005/Afdelingens%20dokumenter/Budget/Budget-2023.pdf)
                                            [Budget 2022.pdf](https://bolignaestved.dk/p/Files/Boligdata/AfdelingsdokumenterFraEG/01_005/Afdelingens%20dokumenter/Budget/Budget-2022.pdf)

###

                                                Årsregnskab

[Årsregnskab 2025.pdf](https://bolignaestved.dk/p/Files/Boligdata/AfdelingsdokumenterFraEG/01_005/Afdelingens%20dokumenter/&#xC5;rsregnskab/&#xC5;rsregnskab-2025.pdf)
                                            [Årsregnskab 2024.pdf](https://bolignaestved.dk/p/Files/Boligdata/AfdelingsdokumenterFraEG/01_005/Afdelingens%20dokumenter/&#xC5;rsregnskab/&#xC5;rsregnskab-2024.pdf)
                                            [Årsregnskab 2023.pdf](https://bolignaestved.dk/p/Files/Boligdata/AfdelingsdokumenterFraEG/01_005/Afdelingens%20dokumenter/&#xC5;rsregnskab/&#xC5;rsregnskab-2023.pdf)
                                            [Årsregnskab 2022.pdf](https://bolignaestved.dk/p/Files/Boligdata/AfdelingsdokumenterFraEG/01_005/Afdelingens%20dokumenter/&#xC5;rsregnskab/&#xC5;rsregnskab-2022.pdf)
                                            [Årsregnskab 2021.pdf](https://bolignaestved.dk/p/Files/Boligdata/AfdelingsdokumenterFraEG/01_005/Afdelingens%20dokumenter/&#xC5;rsregnskab/&#xC5;rsregnskab-2021.pdf)

###

                                                Ordensreglement

[Ordensreglement.pdf](https://bolignaestved.dk/p/Files/Boligdata/AfdelingsdokumenterFraEG/01_005/Afdelingens%20dokumenter/Ordensreglement/Ordensreglement.pdf)

###

                                                Vedligeholdelsesreglement

[Vedligeholdelsesreglement.pdf](https://bolignaestved.dk/p/Files/Boligdata/AfdelingsdokumenterFraEG/01_005/Afdelingens%20dokumenter/Vedligeholdelsesreglement/Vedligeholdelsesreglement.pdf)

###

                                                Energimærke

[Energimærke - Mølleparken.pdf](https://bolignaestved.dk/p/Files/Boligdata/AfdelingsdokumenterFraEG/01_005/Afdelingens%20dokumenter/Energim&#xE6;rke/Energim&#xE6;rke---M&#xF8;lleparken.pdf)

###

                                                Andre dokumenter

[Vejledning ILOQ låsesystem.pdf](https://bolignaestved.dk/p/Files/Boligdata/AfdelingsdokumenterFraEG/01_005/Afdelingens%20dokumenter/Andre%20dokumenter/Vejledning-ILOQ-l&#xE5;sesystem.pdf)
                                            [Velkomstpjece.pdf](https://bolignaestved.dk/p/Files/Boligdata/AfdelingsdokumenterFraEG/01_005/Afdelingens%20dokumenter/Andre%20dokumenter/Velkomstpjece.pdf)

###

                                                Nyheder

[2026 Nyhedsbrev Helhedsplan - februar.pdf](https://bolignaestved.dk/p/Files/Boligdata/AfdelingsdokumenterFraEG/01_005/Afdelingens%20dokumenter/Nyheder/2026-Nyhedsbrev-Helhedsplan---februar.pdf)
                                            [2026 Nyhedsbrev afdelingsbestyrelsen - marts.pdf](https://bolignaestved.dk/p/Files/Boligdata/AfdelingsdokumenterFraEG/01_005/Afdelingens%20dokumenter/Nyheder/2026-Nyhedsbrev-afdelingsbestyrelsen---marts.pdf)
                                            [2025 Nyhedsbrev Helhedsplan - maj.pdf](https://bolignaestved.dk/p/Files/Boligdata/AfdelingsdokumenterFraEG/01_005/Afdelingens%20dokumenter/Nyheder/2025-Nyhedsbrev-Helhedsplan---maj.pdf)
                                            [2025 Nyhedsbrev afdelingsbestyrelsen - marts.pdf](https://bolignaestved.dk/p/Files/Boligdata/AfdelingsdokumenterFraEG/01_005/Afdelingens%20dokumenter/Nyheder/2025-Nyhedsbrev-afdelingsbestyrelsen---marts.pdf)
                                            [2025 Nyhedsbrev afdelingsbestyrelsen - januar.pdf](https://bolignaestved.dk/p/Files/Boligdata/AfdelingsdokumenterFraEG/01_005/Afdelingens%20dokumenter/Nyheder/2025-Nyhedsbrev-afdelingsbestyrelsen---januar.pdf)
                                            [2024 Nyhedsbrev Helhedsplan - februar.pdf](https://bolignaestved.dk/p/Files/Boligdata/AfdelingsdokumenterFraEG/01_005/Afdelingens%20dokumenter/Nyheder/2024-Nyhedsbrev-Helhedsplan---februar.pdf)
                                            [2024 Nyhedsbrev Helhedsplan - august.pdf](https://bolignaestved.dk/p/Files/Boligdata/AfdelingsdokumenterFraEG/01_005/Afdelingens%20dokumenter/Nyheder/2024-Nyhedsbrev-Helhedsplan---august.pdf)
                                            [2024 Nyhedsbrev afdelingsbestyrelsen - januar.pdf](https://bolignaestved.dk/p/Files/Boligdata/AfdelingsdokumenterFraEG/01_005/Afdelingens%20dokumenter/Nyheder/2024-Nyhedsbrev-afdelingsbestyrelsen---januar.pdf)
                                            [2024 Nyhedsbrev afdelingsbestyrelsen - februar.pdf](https://bolignaestved.dk/p/Files/Boligdata/AfdelingsdokumenterFraEG/01_005/Afdelingens%20dokumenter/Nyheder/2024-Nyhedsbrev-afdelingsbestyrelsen---februar.pdf)
                                            [2024 Nyhedsbrev afdelingsbestyrelsen - august.pdf](https://bolignaestved.dk/p/Files/Boligdata/AfdelingsdokumenterFraEG/01_005/Afdelingens%20dokumenter/Nyheder/2024-Nyhedsbrev-afdelingsbestyrelsen---august.pdf)
                                            [2023 Nyhedsbrev Helhedsplan - juli.pdf](https://bolignaestved.dk/p/Files/Boligdata/AfdelingsdokumenterFraEG/01_005/Afdelingens%20dokumenter/Nyheder/2023-Nyhedsbrev-Helhedsplan---juli.pdf)
                                            [2022 Nyhedsbrev Helhedsplan - januar.pdf](https://bolignaestved.dk/p/Files/Boligdata/AfdelingsdokumenterFraEG/01_005/Afdelingens%20dokumenter/Nyheder/2022-Nyhedsbrev-Helhedsplan---januar.pdf)
                                            [2022 Nyhedsbrev Helhedsplan - december.pdf](https://bolignaestved.dk/p/Files/Boligdata/AfdelingsdokumenterFraEG/01_005/Afdelingens%20dokumenter/Nyheder/2022-Nyhedsbrev-Helhedsplan---december.pdf)
                                            [2021 Nyhedsbrev Helhedsplan - oktober.pdf](https://bolignaestved.dk/p/Files/Boligdata/AfdelingsdokumenterFraEG/01_005/Afdelingens%20dokumenter/Nyheder/2021-Nyhedsbrev-Helhedsplan---oktober.pdf)
                                            [2021 Nyhedsbrev Helhedsplan - marts.pdf](https://bolignaestved.dk/p/Files/Boligdata/AfdelingsdokumenterFraEG/01_005/Afdelingens%20dokumenter/Nyheder/2021-Nyhedsbrev-Helhedsplan---marts.pdf)

## Afdelingsbestyrelse

Her finder du nyttig information fra afdelinsbestyrelse i din afdeling.

###

                                                Forretningsorden

[Forretningsorden for afdelingsbestyrelsen 11-02-2024.pdf](https://bolignaestved.dk/p/Files/Boligdata/AfdelingsdokumenterFraEG/01_005/Afdelingsbestyrelse/Forretningsorden/Forretningsorden-for-afdelingsbestyrelsen-11-02-2024.pdf)

###

                                                Referat

[2026-05-09 Referat.pdf](https://bolignaestved.dk/p/Files/Boligdata/AfdelingsdokumenterFraEG/01_005/Afdelingsbestyrelse/Referat/2026-05-09-Referat.pdf)
                                            [2026-03-07 Referat.pdf](https://bolignaestved.dk/p/Files/Boligdata/AfdelingsdokumenterFraEG/01_005/Afdelingsbestyrelse/Referat/2026-03-07-Referat.pdf)
                                            [2026-01-11 Referat.pdf](https://bolignaestved.dk/p/Files/Boligdata/AfdelingsdokumenterFraEG/01_005/Afdelingsbestyrelse/Referat/2026-01-11-Referat.pdf)
                                            [2025-12-07 Referat.pdf](https://bolignaestved.dk/p/Files/Boligdata/AfdelingsdokumenterFraEG/01_005/Afdelingsbestyrelse/Referat/2025-12-07-Referat.pdf)
                                            [2025-11-09 Referat.pdf](https://bolignaestved.dk/p/Files/Boligdata/AfdelingsdokumenterFraEG/01_005/Afdelingsbestyrelse/Referat/2025-11-09-Referat.pdf)
                                            [2025-10-19 Referat.pdf](https://bolignaestved.dk/p/Files/Boligdata/AfdelingsdokumenterFraEG/01_005/Afdelingsbestyrelse/Referat/2025-10-19-Referat.pdf)
                                            [2025-09-12 Referat.pdf](https://bolignaestved.dk/p/Files/Boligdata/AfdelingsdokumenterFraEG/01_005/Afdelingsbestyrelse/Referat/2025-09-12-Referat.pdf)
                                            [2025-08-09 Referat.pdf](https://bolignaestved.dk/p/Files/Boligdata/AfdelingsdokumenterFraEG/01_005/Afdelingsbestyrelse/Referat/2025-08-09-Referat.pdf)
                                            [2025-07-12 Referat.pdf](https://bolignaestved.dk/p/Files/Boligdata/AfdelingsdokumenterFraEG/01_005/Afdelingsbestyrelse/Referat/2025-07-12-Referat.pdf)
                                            [2025-05-10 Referat.pdf](https://bolignaestved.dk/p/Files/Boligdata/AfdelingsdokumenterFraEG/01_005/Afdelingsbestyrelse/Referat/2025-05-10-Referat.pdf)
                                            [2025-04-12 Referat.pdf](https://bolignaestved.dk/p/Files/Boligdata/AfdelingsdokumenterFraEG/01_005/Afdelingsbestyrelse/Referat/2025-04-12-Referat.pdf)
                                            [2025-03-02 Referat.pdf](https://bolignaestved.dk/p/Files/Boligdata/AfdelingsdokumenterFraEG/01_005/Afdelingsbestyrelse/Referat/2025-03-02-Referat.pdf)
                                            [2025-02-02 Referat.pdf](https://bolignaestved.dk/p/Files/Boligdata/AfdelingsdokumenterFraEG/01_005/Afdelingsbestyrelse/Referat/2025-02-02-Referat.pdf)
                                            [2025-01-05 Referat.pdf](https://bolignaestved.dk/p/Files/Boligdata/AfdelingsdokumenterFraEG/01_005/Afdelingsbestyrelse/Referat/2025-01-05-Referat.pdf)
                                            [2024-11-03 Referat.pdf](https://bolignaestved.dk/p/Files/Boligdata/AfdelingsdokumenterFraEG/01_005/Afdelingsbestyrelse/Referat/2024-11-03-Referat.pdf)
                                            [2024-10-06 Referat.pdf](https://bolignaestved.dk/p/Files/Boligdata/AfdelingsdokumenterFraEG/01_005/Afdelingsbestyrelse/Referat/2024-10-06-Referat.pdf)
                                            [2024-07-28 Referat.pdf](https://bolignaestved.dk/p/Files/Boligdata/AfdelingsdokumenterFraEG/01_005/Afdelingsbestyrelse/Referat/2024-07-28-Referat.pdf)
                                            [2024-06-01 Referat.pdf](https://bolignaestved.dk/p/Files/Boligdata/AfdelingsdokumenterFraEG/01_005/Afdelingsbestyrelse/Referat/2024-06-01-Referat.pdf)
                                            [2024-05-05 Referat.pdf](https://bolignaestved.dk/p/Files/Boligdata/AfdelingsdokumenterFraEG/01_005/Afdelingsbestyrelse/Referat/2024-05-05-Referat.pdf)
                                            [2024-04-07 Referat.pdf](https://bolignaestved.dk/p/Files/Boligdata/AfdelingsdokumenterFraEG/01_005/Afdelingsbestyrelse/Referat/2024-04-07-Referat.pdf)
                                            [2024-03-03 Referat.pdf](https://bolignaestved.dk/p/Files/Boligdata/AfdelingsdokumenterFraEG/01_005/Afdelingsbestyrelse/Referat/2024-03-03-Referat.pdf)
                                            [2024-02-11 Referat.pdf](https://bolignaestved.dk/p/Files/Boligdata/AfdelingsdokumenterFraEG/01_005/Afdelingsbestyrelse/Referat/2024-02-11-Referat.pdf)
                                            [2024-01-04 Referat.pdf](https://bolignaestved.dk/p/Files/Boligdata/AfdelingsdokumenterFraEG/01_005/Afdelingsbestyrelse/Referat/2024-01-04-Referat.pdf)
                                            [2023-12-07 Referat.pdf](https://bolignaestved.dk/p/Files/Boligdata/AfdelingsdokumenterFraEG/01_005/Afdelingsbestyrelse/Referat/2023-12-07-Referat.pdf)
                                            [2023-11-08 Referat.pdf](https://bolignaestved.dk/p/Files/Boligdata/AfdelingsdokumenterFraEG/01_005/Afdelingsbestyrelse/Referat/2023-11-08-Referat.pdf)
                                            [2023-10-11 Referat.pdf](https://bolignaestved.dk/p/Files/Boligdata/AfdelingsdokumenterFraEG/01_005/Afdelingsbestyrelse/Referat/2023-10-11-Referat.pdf)
                                            [2023-06-14 Referat.pdf](https://bolignaestved.dk/p/Files/Boligdata/AfdelingsdokumenterFraEG/01_005/Afdelingsbestyrelse/Referat/2023-06-14-Referat.pdf)
                                            [2023-05-17 Referat.pdf](https://bolignaestved.dk/p/Files/Boligdata/AfdelingsdokumenterFraEG/01_005/Afdelingsbestyrelse/Referat/2023-05-17-Referat.pdf)
                                            [2023-04-12 Referat.pdf](https://bolignaestved.dk/p/Files/Boligdata/AfdelingsdokumenterFraEG/01_005/Afdelingsbestyrelse/Referat/2023-04-12-Referat.pdf)
                                            [2023-03-08 Referat.pdf](https://bolignaestved.dk/p/Files/Boligdata/AfdelingsdokumenterFraEG/01_005/Afdelingsbestyrelse/Referat/2023-03-08-Referat.pdf)
                                            [2023-02-08 Referat.pdf](https://bolignaestved.dk/p/Files/Boligdata/AfdelingsdokumenterFraEG/01_005/Afdelingsbestyrelse/Referat/2023-02-08-Referat.pdf)
                                            [2023-01-11 Referat.pdf](https://bolignaestved.dk/p/Files/Boligdata/AfdelingsdokumenterFraEG/01_005/Afdelingsbestyrelse/Referat/2023-01-11-Referat.pdf)
                                            [2022-12-07 Referat.pdf](https://bolignaestved.dk/p/Files/Boligdata/AfdelingsdokumenterFraEG/01_005/Afdelingsbestyrelse/Referat/2022-12-07-Referat.pdf)
                                            [2022-11-16 Referat.pdf](https://bolignaestved.dk/p/Files/Boligdata/AfdelingsdokumenterFraEG/01_005/Afdelingsbestyrelse/Referat/2022-11-16-Referat.pdf)
                                            [2022-10-12 Referat.pdf](https://bolignaestved.dk/p/Files/Boligdata/AfdelingsdokumenterFraEG/01_005/Afdelingsbestyrelse/Referat/2022-10-12-Referat.pdf)
                                            [2022-09-14 Referat.pdf](https://bolignaestved.dk/p/Files/Boligdata/AfdelingsdokumenterFraEG/01_005/Afdelingsbestyrelse/Referat/2022-09-14-Referat.pdf)
                                            [2022-08-15 Referat.pdf](https://bolignaestved.dk/p/Files/Boligdata/AfdelingsdokumenterFraEG/01_005/Afdelingsbestyrelse/Referat/2022-08-15-Referat.pdf)
                                            [2022-06-14 Referat.pdf](https://bolignaestved.dk/p/Files/Boligdata/AfdelingsdokumenterFraEG/01_005/Afdelingsbestyrelse/Referat/2022-06-14-Referat.pdf)
                                            [2022-05-11 Referat.pdf](https://bolignaestved.dk/p/Files/Boligdata/AfdelingsdokumenterFraEG/01_005/Afdelingsbestyrelse/Referat/2022-05-11-Referat.pdf)
                                            [2022-02-09 Referat.pdf](https://bolignaestved.dk/p/Files/Boligdata/AfdelingsdokumenterFraEG/01_005/Afdelingsbestyrelse/Referat/2022-02-09-Referat.pdf)
                                            [2021-11-10 Referat.pdf](https://bolignaestved.dk/p/Files/Boligdata/AfdelingsdokumenterFraEG/01_005/Afdelingsbestyrelse/Referat/2021-11-10-Referat.pdf)
                                            [2021-10-13 Referat.pdf](https://bolignaestved.dk/p/Files/Boligdata/AfdelingsdokumenterFraEG/01_005/Afdelingsbestyrelse/Referat/2021-10-13-Referat.pdf)
                                            [2021-04-21 Referat.pdf](https://bolignaestved.dk/p/Files/Boligdata/AfdelingsdokumenterFraEG/01_005/Afdelingsbestyrelse/Referat/2021-04-21-Referat.pdf)
                                            [2021-03-10 Referat.pdf](https://bolignaestved.dk/p/Files/Boligdata/AfdelingsdokumenterFraEG/01_005/Afdelingsbestyrelse/Referat/2021-03-10-Referat.pdf)
                                            [2021-02-10 Referat.pdf](https://bolignaestved.dk/p/Files/Boligdata/AfdelingsdokumenterFraEG/01_005/Afdelingsbestyrelse/Referat/2021-02-10-Referat.pdf)
                                            [2021-01-13 Referat.pdf](https://bolignaestved.dk/p/Files/Boligdata/AfdelingsdokumenterFraEG/01_005/Afdelingsbestyrelse/Referat/2021-01-13-Referat.pdf)
                                            [2020-08-12 Referat.pdf](https://bolignaestved.dk/p/Files/Boligdata/AfdelingsdokumenterFraEG/01_005/Afdelingsbestyrelse/Referat/2020-08-12-Referat.pdf)
                                            [2020-06-10 Referat.pdf](https://bolignaestved.dk/p/Files/Boligdata/AfdelingsdokumenterFraEG/01_005/Afdelingsbestyrelse/Referat/2020-06-10-Referat.pdf)

## Placering
