---
title: "Afdeling 002 Banekanten/Jyllandsvej"
description: "1-2"
date: "2026-05-28"
created: "2025-09-25"
---

-
-
-
-
-
-
-
-
-
-

https://maps.google.dk/?q=55.2341138,11.769016

# Afdeling 002 Banekanten/Jyllandsvej

Afdeling 2

## Velkommen til Afdeling 002 Banekanten/Jyllandsvej

Afdelingen består af en gl. og en ny afdeling. Gammel afdeling: Falstersvej 2-4, Lollandsvej 1-7 og Rugvænget 13-19 er opført som etagebyggeri, bestående af flere boligblokke med i alt 90 boliger fordelt som 2 og 3 vær. Ny afdeling: Jyllandsvej 2-4 er opført som etagebyggeri bestående af 1 boligblok med i alt 11 boliger som 2 vær. Afdelingen ligger i et alsidigt boligkvarter tæt ved skoler, institutioner og dagligvarebutikker. Næstved centrum, stationen og det rekreative/historiske område Munkebakken er i gåafstand via gangbro. Boligerne indeholder køle/fryseskab, komfur, emhætte og ikke andre hårde hvidevarer.

## Fakta for afdelingen...

Altan/have

Nej

Antal/størrelse

Se mere

30 stk 2 rums 52-58 m2, 60 stk 3 rums 57-65 m2, 11 stk 2 rums 64 m2

Beboerhus

Nej

Byggeår

1940-1944 og 1993

Carport/garage

Nej

Elevator

Nej

Husdyrhold

Se mere

2 katte og 1 hund

Hårde hvidevarer

Ja

Komfur, køleskab, emhætte og ikke andre hårde hvidevarer.

Kælderrum/udhus

Ja

Kælderrum

Legeplads

Ja

Tv/Internet

Ja

Frit valg blandt udbydere af tv/internet

Vaskeri

Ja

Ja, beliggende på Lollandsvej

Ventetider

Se mere

2 til 5 år

Ældreboliger/ungdomsboliger

Nej/Nej

                        Se flere

## Boliger i afdelingen

Familiebolig

2 værelses

Familiebolig

Familiebolig

3 værelses

Familiebolig

Boligtype

Værelser

Størrelse

Husleje u. forbrug

Indskud

Plantegning

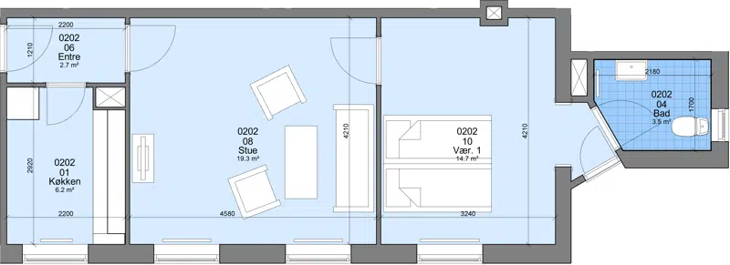
Familiebolig

2

64 m²

4425 kr.

17856 kr.

![](https://bolignaestved.dk/i/MOLIRIMEDIA/da76ebcd-d288-44a4-0877-08ddde57396d?width=800)

Familiebolig

2

58 m²

4221 kr.

16182 kr.

![](https://bolignaestved.dk/i/MOLIRIMEDIA/64b035ac-be0e-476f-09b1-08ddde57396d?width=800)

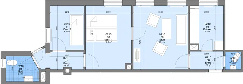
Familiebolig

3

64 m²

4143 kr.

17856 kr.

![](https://bolignaestved.dk/i/MOLIRIMEDIA/0e2a6e61-d602-46d5-10be-08ddde57396d?width=800)

## Driftscenter

### Kontakt dit driftscenter

Adresse:

Ejlersvej 34

4700 Næstved

55739357

ejlersvej@bolignaestved.dk

### Åbningstider

Telefonisk henvendelse:

Mandag - fredag kl 8.30-10.00

.............................................

Personlig henvendelse:

Kun efter forudgående aftale (bestil tid)

## Personale

### Claus Kuhre

Driftsleder

### David Mick Nielsen

Driftslederassistent

### Lene F. Nielsen

Kontormedarbejder

### Carsten Kirkebjerg

Ejendomsfunktionær

### Brian Søe Larsen

Ejendomsfunktionær

### Serhij Talatynnik

Ejendomsfunktionær

### Dariusz Jan Rybacki

Ejendomsfunktionær

### Henrik Jørgensen

Ejendomsfunktionær

## Bestyrelsen

Navn

Titel

Tina Bager

Formand

Ann Birgitte Jensen

Medlem

Lene Skovgaard

Medlem

Jesper Brynje Hansen

Suppleant 1

Tonny Guldmann

Suppleant 2

## Repræsentantskab

Navn

Titel

Tina Bager

Medlem

## Afdelingsmøde

Her finder du nyttig information afdelingsmøder, såsom forslag, referater m.m.

###

                                                Forretningsorden

[Forretningsorden.pdf](https://bolignaestved.dk/p/Files/Boligdata/AfdelingsdokumenterFraEG/01_002/Afdelingsm&#xF8;de/Forretningsorden/Forretningsorden.pdf)

###

                                                Indkaldelse

[2025-09-04 Indkaldelse.pdf](https://bolignaestved.dk/p/Files/Boligdata/AfdelingsdokumenterFraEG/01_002/Afdelingsm&#xF8;de/Indkaldelse/2025-09-04-Indkaldelse.pdf)
                                            [2024-09-03 Indkaldelse.pdf](https://bolignaestved.dk/p/Files/Boligdata/AfdelingsdokumenterFraEG/01_002/Afdelingsm&#xF8;de/Indkaldelse/2024-09-03-Indkaldelse.pdf)
                                            [2023-09-14 Indkaldelse.pdf](https://bolignaestved.dk/p/Files/Boligdata/AfdelingsdokumenterFraEG/01_002/Afdelingsm&#xF8;de/Indkaldelse/2023-09-14-Indkaldelse.pdf)
                                            [2022-09-15 Indkaldelse.pdf](https://bolignaestved.dk/p/Files/Boligdata/AfdelingsdokumenterFraEG/01_002/Afdelingsm&#xF8;de/Indkaldelse/2022-09-15-Indkaldelse.pdf)
                                            [2021-09-14 Indkaldelse.pdf](https://bolignaestved.dk/p/Files/Boligdata/AfdelingsdokumenterFraEG/01_002/Afdelingsm&#xF8;de/Indkaldelse/2021-09-14-Indkaldelse.pdf)
                                            [2020-09-09 Indkaldelse.pdf](https://bolignaestved.dk/p/Files/Boligdata/AfdelingsdokumenterFraEG/01_002/Afdelingsm&#xF8;de/Indkaldelse/2020-09-09-Indkaldelse.pdf)

###

                                                Forslag

[2025-09-04 Forslag.pdf](https://bolignaestved.dk/p/Files/Boligdata/AfdelingsdokumenterFraEG/01_002/Afdelingsm&#xF8;de/Forslag/2025-09-04-Forslag.pdf)
                                            [2024-09-03 Forslag.pdf](https://bolignaestved.dk/p/Files/Boligdata/AfdelingsdokumenterFraEG/01_002/Afdelingsm&#xF8;de/Forslag/2024-09-03-Forslag.pdf)
                                            [2023-09-14 Forslag.pdf](https://bolignaestved.dk/p/Files/Boligdata/AfdelingsdokumenterFraEG/01_002/Afdelingsm&#xF8;de/Forslag/2023-09-14-Forslag.pdf)
                                            [2022-09-15 Forslag.pdf](https://bolignaestved.dk/p/Files/Boligdata/AfdelingsdokumenterFraEG/01_002/Afdelingsm&#xF8;de/Forslag/2022-09-15-Forslag.pdf)
                                            [2021-09-14 Forslag.pdf](https://bolignaestved.dk/p/Files/Boligdata/AfdelingsdokumenterFraEG/01_002/Afdelingsm&#xF8;de/Forslag/2021-09-14-Forslag.pdf)
                                            [2020-09-09 Forslag.pdf](https://bolignaestved.dk/p/Files/Boligdata/AfdelingsdokumenterFraEG/01_002/Afdelingsm&#xF8;de/Forslag/2020-09-09-Forslag.pdf)

###

                                                Referat

[2025-09-04 Referat.pdf](https://bolignaestved.dk/p/Files/Boligdata/AfdelingsdokumenterFraEG/01_002/Afdelingsm&#xF8;de/Referat/2025-09-04-Referat.pdf)
                                            [2024-09-03 Referat.pdf](https://bolignaestved.dk/p/Files/Boligdata/AfdelingsdokumenterFraEG/01_002/Afdelingsm&#xF8;de/Referat/2024-09-03-Referat.pdf)
                                            [2023-09-14 Referat.pdf](https://bolignaestved.dk/p/Files/Boligdata/AfdelingsdokumenterFraEG/01_002/Afdelingsm&#xF8;de/Referat/2023-09-14-Referat.pdf)
                                            [2022-09-15 Referat.pdf](https://bolignaestved.dk/p/Files/Boligdata/AfdelingsdokumenterFraEG/01_002/Afdelingsm&#xF8;de/Referat/2022-09-15-Referat.pdf)
                                            [2021-09-14 Referat.pdf](https://bolignaestved.dk/p/Files/Boligdata/AfdelingsdokumenterFraEG/01_002/Afdelingsm&#xF8;de/Referat/2021-09-14-Referat.pdf)
                                            [2020-09-09 Referat.pdf](https://bolignaestved.dk/p/Files/Boligdata/AfdelingsdokumenterFraEG/01_002/Afdelingsm&#xF8;de/Referat/2020-09-09-Referat.pdf)

## Afdelingens dokumenter

Her finder du nyttig information fra din afdeling, såsom budget, regnskab, ordensreglement m.m.

###

                                                Budget

[Budget 2026.pdf](https://bolignaestved.dk/p/Files/Boligdata/AfdelingsdokumenterFraEG/01_002/Afdelingens%20dokumenter/Budget/Budget-2026.pdf)
                                            [Budget 2025.pdf](https://bolignaestved.dk/p/Files/Boligdata/AfdelingsdokumenterFraEG/01_002/Afdelingens%20dokumenter/Budget/Budget-2025.pdf)
                                            [Budget 2024.pdf](https://bolignaestved.dk/p/Files/Boligdata/AfdelingsdokumenterFraEG/01_002/Afdelingens%20dokumenter/Budget/Budget-2024.pdf)
                                            [Budget 2023.pdf](https://bolignaestved.dk/p/Files/Boligdata/AfdelingsdokumenterFraEG/01_002/Afdelingens%20dokumenter/Budget/Budget-2023.pdf)
                                            [Budget 2022.pdf](https://bolignaestved.dk/p/Files/Boligdata/AfdelingsdokumenterFraEG/01_002/Afdelingens%20dokumenter/Budget/Budget-2022.pdf)

###

                                                Årsregnskab

[Årsregnskab 2025.pdf](https://bolignaestved.dk/p/Files/Boligdata/AfdelingsdokumenterFraEG/01_002/Afdelingens%20dokumenter/&#xC5;rsregnskab/&#xC5;rsregnskab-2025.pdf)
                                            [Årsregnskab 2024.pdf](https://bolignaestved.dk/p/Files/Boligdata/AfdelingsdokumenterFraEG/01_002/Afdelingens%20dokumenter/&#xC5;rsregnskab/&#xC5;rsregnskab-2024.pdf)
                                            [Årsregnskab 2023.pdf](https://bolignaestved.dk/p/Files/Boligdata/AfdelingsdokumenterFraEG/01_002/Afdelingens%20dokumenter/&#xC5;rsregnskab/&#xC5;rsregnskab-2023.pdf)
                                            [Årsregnskab 2022.pdf](https://bolignaestved.dk/p/Files/Boligdata/AfdelingsdokumenterFraEG/01_002/Afdelingens%20dokumenter/&#xC5;rsregnskab/&#xC5;rsregnskab-2022.pdf)
                                            [Årsregnskab 2021.pdf](https://bolignaestved.dk/p/Files/Boligdata/AfdelingsdokumenterFraEG/01_002/Afdelingens%20dokumenter/&#xC5;rsregnskab/&#xC5;rsregnskab-2021.pdf)

###

                                                Ordensreglement

[Ordensreglement.pdf](https://bolignaestved.dk/p/Files/Boligdata/AfdelingsdokumenterFraEG/01_002/Afdelingens%20dokumenter/Ordensreglement/Ordensreglement.pdf)

###

                                                Vedligeholdelsesreglement

[Vedligeholdelsesreglement.pdf](https://bolignaestved.dk/p/Files/Boligdata/AfdelingsdokumenterFraEG/01_002/Afdelingens%20dokumenter/Vedligeholdelsesreglement/Vedligeholdelsesreglement.pdf)

###

                                                Energimærke

[Energimærke - Banekanten.pdf](https://bolignaestved.dk/p/Files/Boligdata/AfdelingsdokumenterFraEG/01_002/Afdelingens%20dokumenter/Energim&#xE6;rke/Energim&#xE6;rke---Banekanten.pdf)
                                            [Energimærke - Jyllandsvej.pdf](https://bolignaestved.dk/p/Files/Boligdata/AfdelingsdokumenterFraEG/01_002/Afdelingens%20dokumenter/Energim&#xE6;rke/Energim&#xE6;rke---Jyllandsvej.pdf)

###

                                                Andre dokumenter

[Vejledning ILOQ låsesystem.pdf](https://bolignaestved.dk/p/Files/Boligdata/AfdelingsdokumenterFraEG/01_002/Afdelingens%20dokumenter/Andre%20dokumenter/Vejledning-ILOQ-l&#xE5;sesystem.pdf)
                                            [Velkomstbrev Pay Per Wash.pdf](https://bolignaestved.dk/p/Files/Boligdata/AfdelingsdokumenterFraEG/01_002/Afdelingens%20dokumenter/Andre%20dokumenter/Velkomstbrev-Pay-Per-Wash.pdf)
                                            [Velkomstpjece.pdf](https://bolignaestved.dk/p/Files/Boligdata/AfdelingsdokumenterFraEG/01_002/Afdelingens%20dokumenter/Andre%20dokumenter/Velkomstpjece.pdf)

## Afdelingsbestyrelse

Her finder du nyttig information fra afdelinsbestyrelse i din afdeling.

## Placering
